A0061 - Complex of bungalows in Fasoula area, Limassol
Property status:
Project delivered
Location:
Cyprus, Limassol, Fasoula (a village located 8 km north of Limassol)
The development is located near Fasoula village, in the very quiet location. The project comprises of 3 spacious house.They will have a provision of climate control system, provision for electrical heating, photovoltaic, provision for A/C, provision for the electrical shutters in the bedrooms.The houses will have big plots. ...
The development is located near Fasoula village, in the very quiet location. The project comprises of 3 spacious house.
They will have a provision of climate control system, provision for electrical heating, photovoltaic, provision for A/C, provision for the electrical shutters in the bedrooms.
The houses will have big plots.
The complex is close to the restaurants, park, publick and private schools.
The Project has EPC certificate with "B" Energy Efficiency Rating.
Area & Prices
All units sold or reserved.
Sold & Reserved Properties
1
- Bungalow
Beds:
3
Area:
302 m2
Reserved
2
- Bungalow
Beds:
3
Area:
302 m2
Sold
3
- Bungalow
Beds:
3
Area:
371 m2
Reserved
4
- Bungalow
Beds:
3
Area:
350 m2
Sold
Map Location
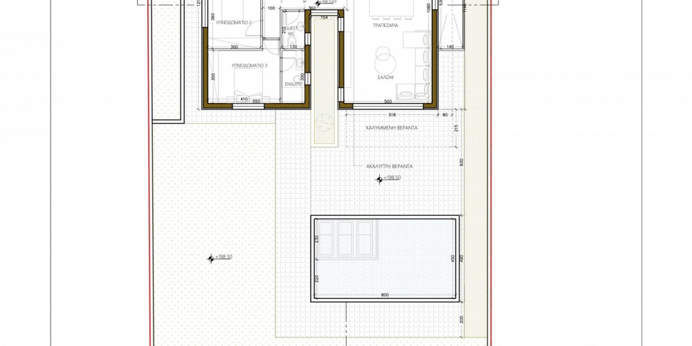
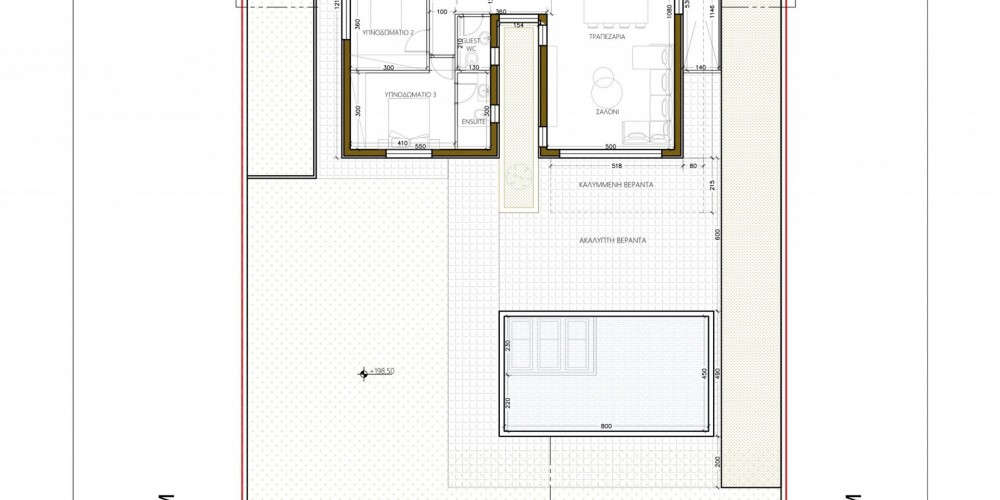
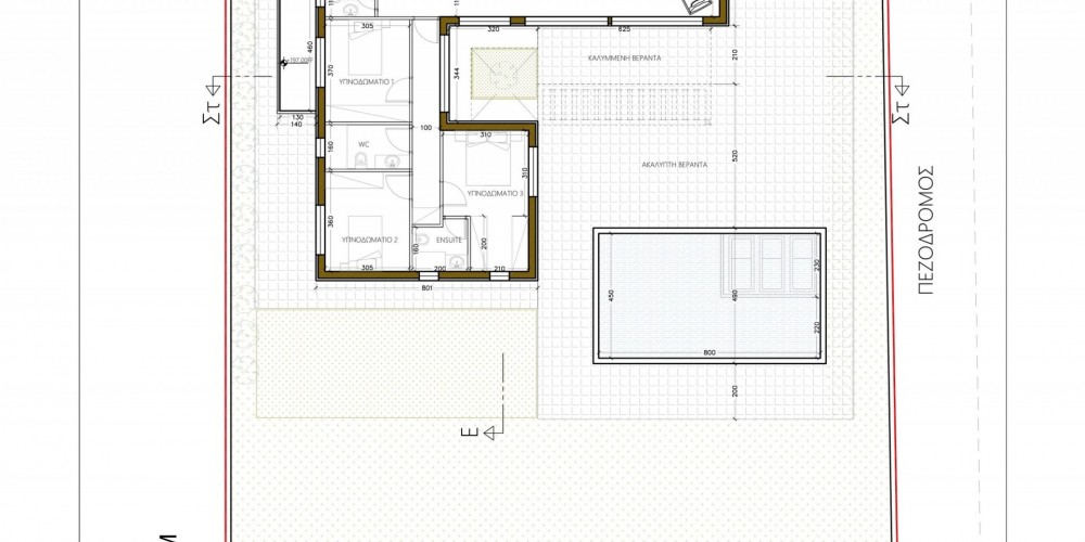
Site Map & Floor Plans














