A0063 - Villas on the hillside in Tsada, Paphos
Property status:
Delivery - June 2026
Location:
Cyprus, Paphos, Tsada (north of Paphos). Panoramic view of the sea
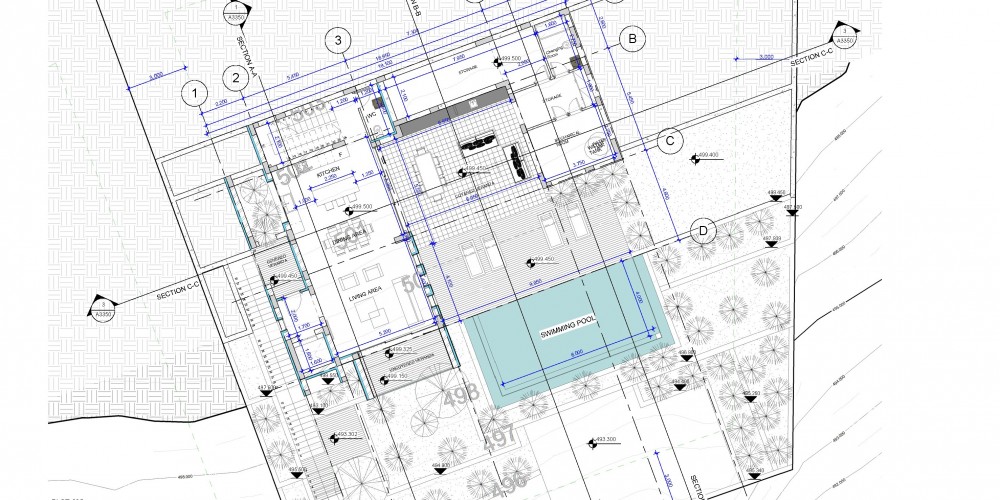
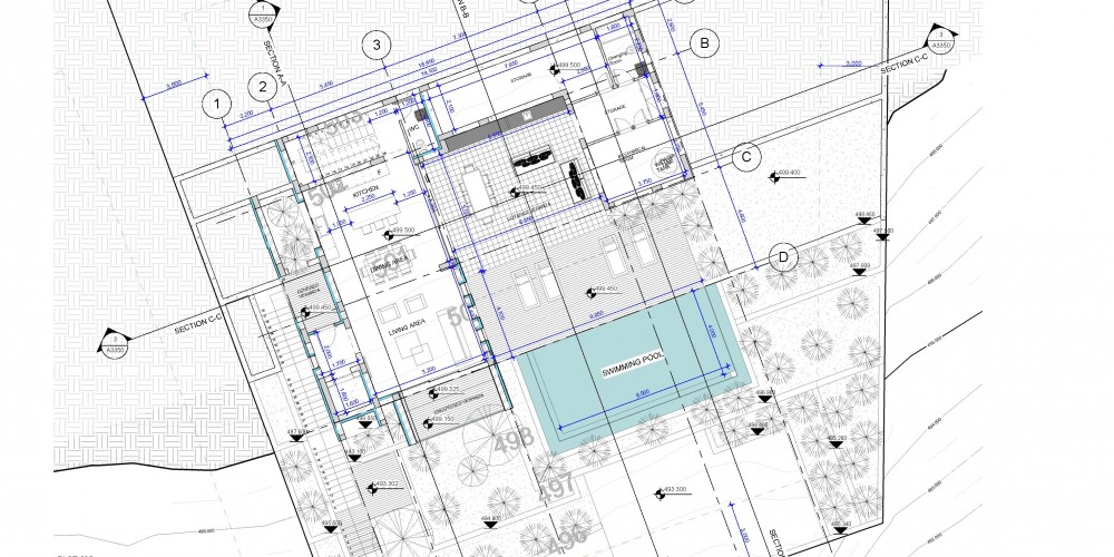
This development comprises two modern 3 bedroom villas and one 4 bedroom villa, set in the picturesque hills of Tsada village, just a short drive from Paphos town centre. This magnificent development boasts unrivalled sea views and is just 4.5km from one of Cyprus' finest 18 hole championship golf courses. These modern villas with integrated smart home te...
This development comprises two modern 3 bedroom villas and one 4 bedroom villa, set in the picturesque hills of Tsada village, just a short drive from Paphos town centre. This magnificent development boasts unrivalled sea views and is just 4.5km from one of Cyprus' finest 18 hole championship golf courses. These modern villas with integrated smart home technology have been carefully designed to take full advantage of the magnificent sea views and majestic sunsets. All properties feature spacious living areas, infinity pools, lush landscaped gardens and exquisite finishes.
The Project has EPC certificate with "B" Energy Efficiency Rating.
Area & Prices
1
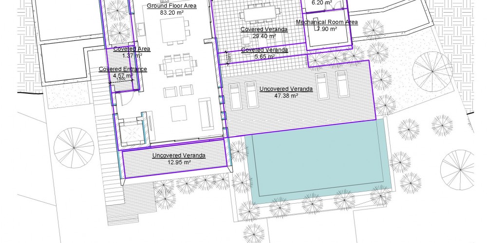
- Villa
Beds:
3
Area:
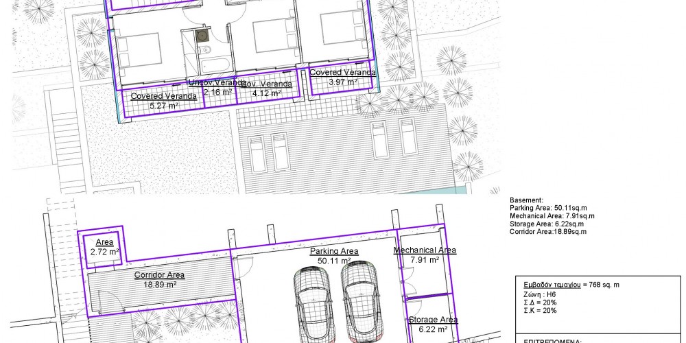
293 m2
Plot:
789 m2
€ 1,600,000 + VAT
Inside Area:
156 m2
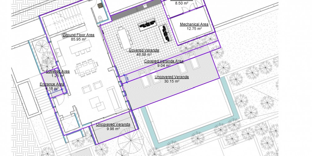
Covered Veranda:
63 m2
Uncovered Veranda:
53 m2
Basement:
21 m2
Price per sq.m:
€ 5,461
Storage Room:
Yes
Parking Place:
1
Swimming Pool:
private
Additional Information
×
2
- Villa
Beds:
3
Area:
292 m2
Plot:
768 m2
€ 1,560,000 + VAT
Inside Area:
154 m2
Covered Veranda:
54 m2
Uncovered Veranda:
62 m2
Basement:
22 m2
Price per sq.m:
€ 5,342
Storage Room:
Yes
Parking Place:
1
Swimming Pool:
private
Additional Information
×
Sold & Reserved Properties
3
- Villa
Beds:
4
Area:
325 m2
Sold
Map Location
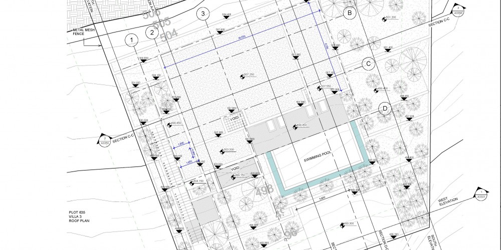
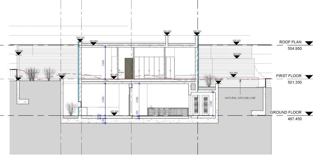
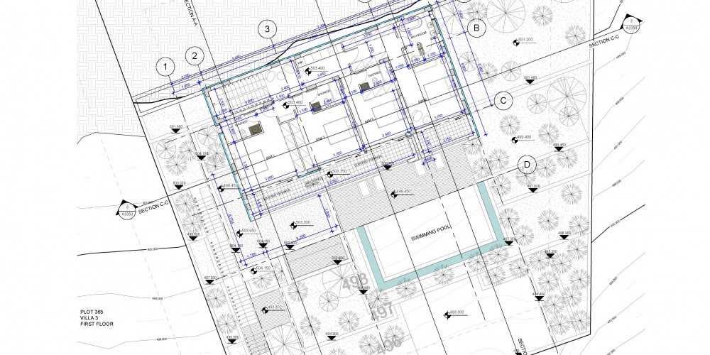
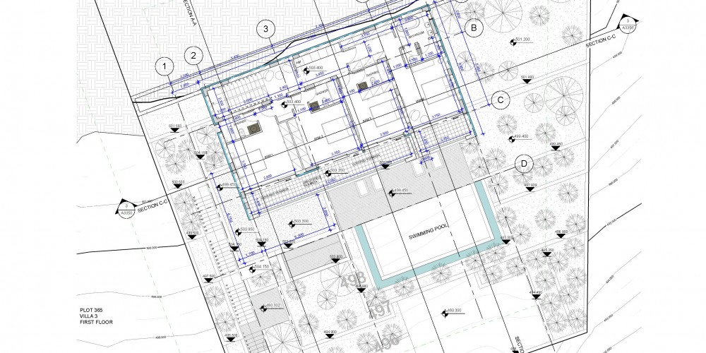
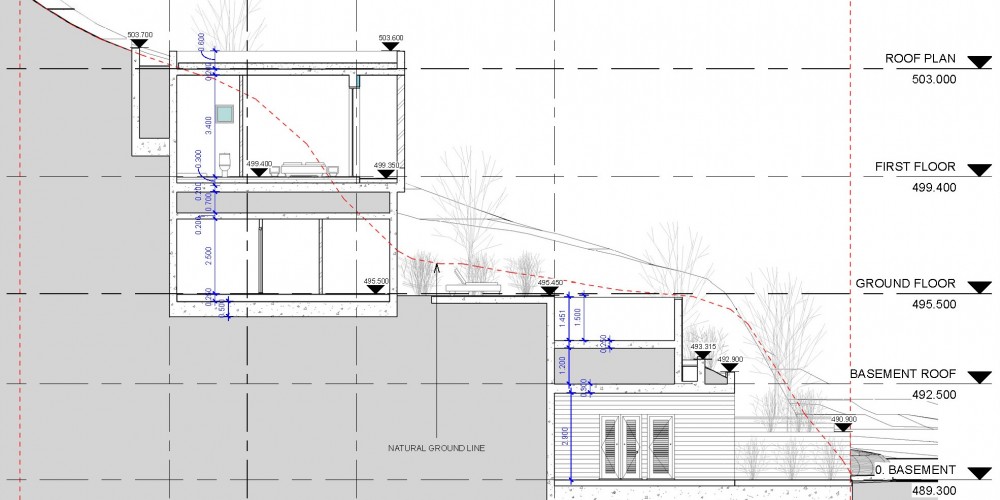
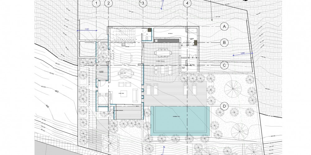
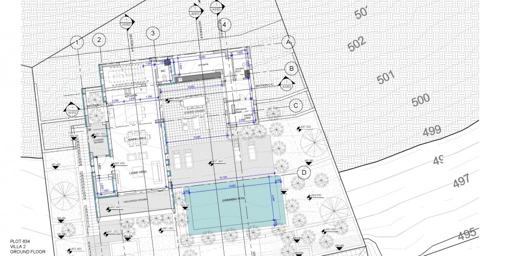
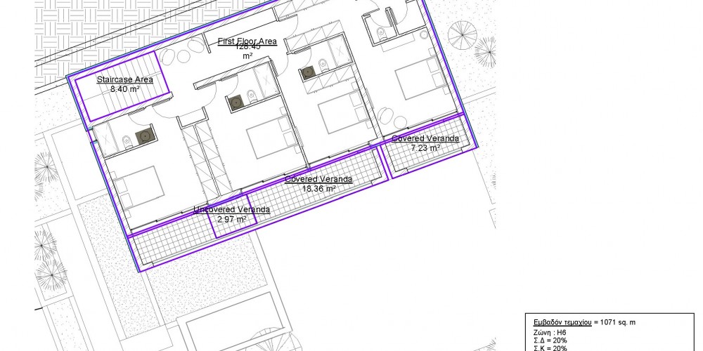
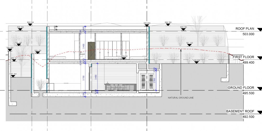
Site Map & Floor Plans







































