O19 - Apartments and penthouses on a quiet hillside on the eastern area of Limassol
The project comprises four buildings atop the quiet hillside on the eastern part of Limassol. The buildings create a façade that is both attractive aesthetically, but also highly functional and practical. Its prime location on an elevated plane in one of Limassol’s most exclusive areas, surrounded by the views of the Mediterranean Sea and the rolling green hills of Amathounta, embodies the contemporary island living.
Each apartment is designed and positioned in such a way as to allow unobstructed views of the surrounding large open spaces, which feature a wealth of greenery and the ancient ruins of Amathounta nearby. Just beyond, the azure blue waters of the Mediterranean Sea sparkle within view, visible through the large windows and ample balconies, which stream in an abundance of natural light. Ensuring utmost privacy and convenience, the apartments are securely gated and accessible from two separate roads and offer easy access to the highway.
All four buildings will be surrounded by lush botanical landscape gardens. These gardens will add an element of rich greenery that will indulge the senses with fresh scents and colours.
Residents of the project can enjoy modern living, relaxing and unwinding at the communal outdoor pool, situated among the landscaped gardens. Sunbeds are available around the pool area for lounging, while there are also areas that are shaded by a pergola for those hours of the day when the sun gets a little bit too hot. Secure, controlled access adds an extra layer of safety and security to the premises.
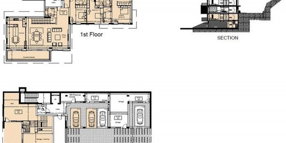
The left block of the project can be sold as whole.
The Project has EPC certificate with "B" Energy Efficiency Rating














