P05 - Apartments in Limassol, Columbia area
Property status:
Project delivered
Location:
Cyprus, Limassol, Columbia (Eastern district of Limassol)
Area & Prices
All units sold or reserved.
Sold & Reserved Properties
1
- Apartment
Beds:
2
Area:
110 m2
Reserved
2
- Apartment
Beds:
2
Area:
108 m2
Reserved
3
- Apartment
Beds:
2
Area:
100 m2
Reserved
4
- Apartment
Beds:
2
Area:
110 m2
Reserved
5
- Apartment
Beds:
3
Area:
144 m2
Reserved
6
- Apartment
Beds:
1
Area:
63 m2
Reserved
7
- Apartment
Beds:
3
Area:
300 m2
Reserved
Map Location
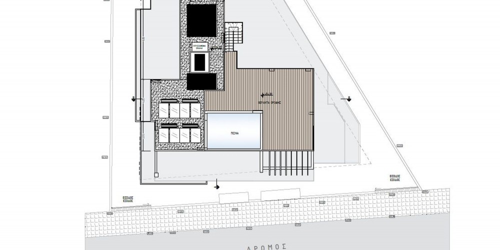
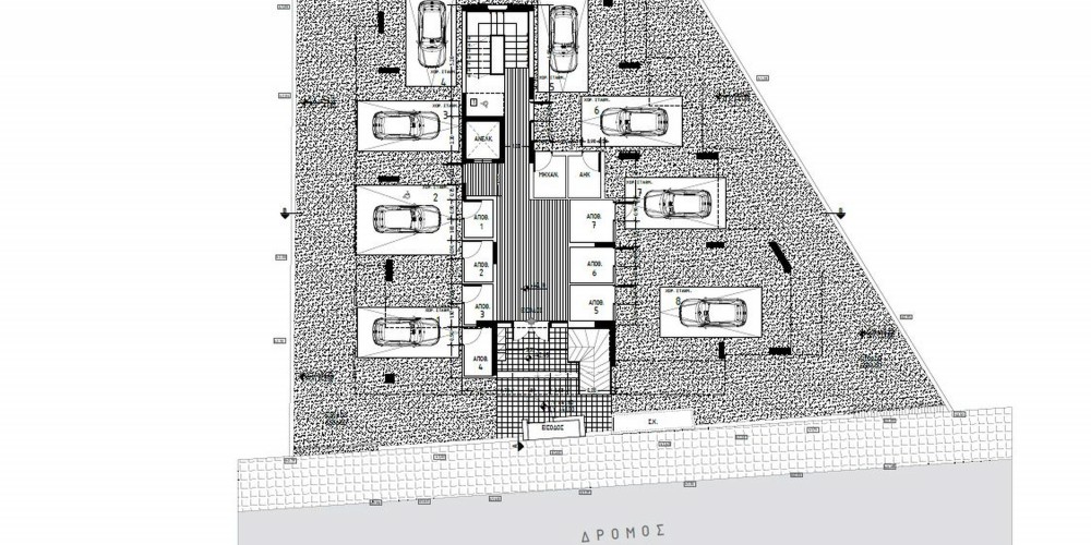
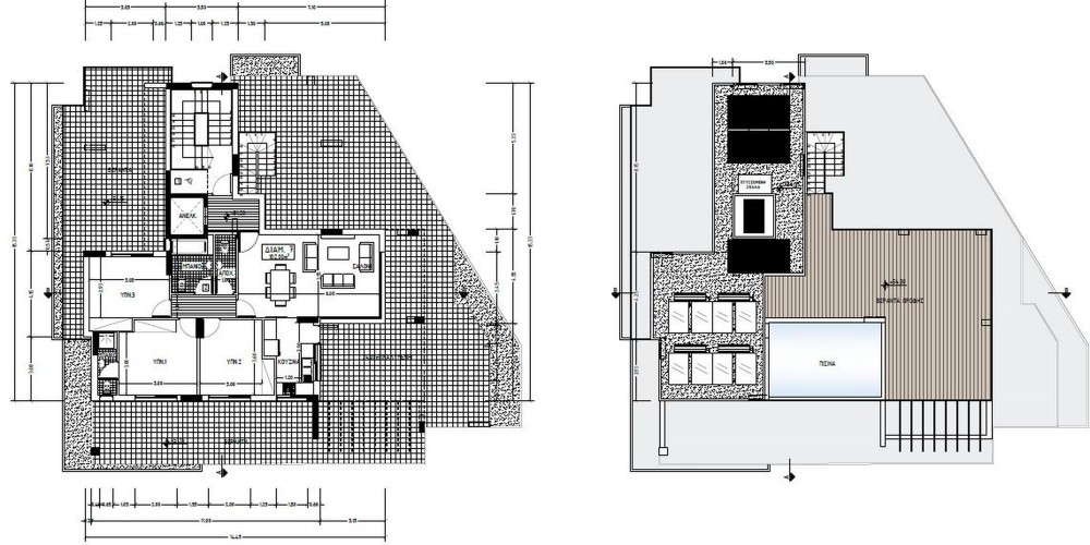
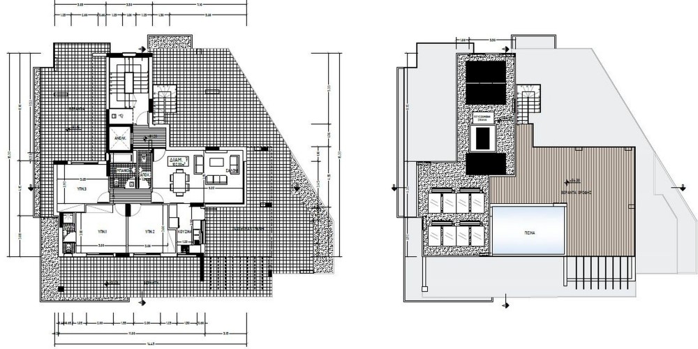
Site Map & Floor Plans













