R45 - Full sea view villa in Larnaca, Dhekelia
A modern, detached villa located in a quiet green area on Dekelia road, walking distance from one of the many Blue Flag beaches that can be found here.
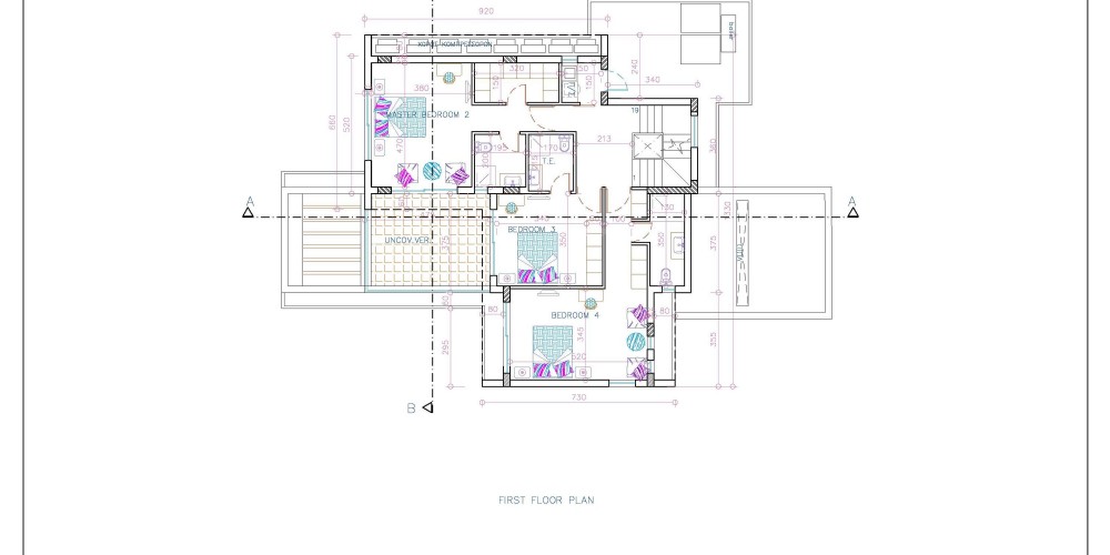
The villa is made up of three living levels, sea views from all floors and bedrooms! The ground floor hosts the open plan kitchen and living room, 1 ensuite bedroom and guest wc. The remaining 3 ensuite bedrooms (master with walk-in closet) can be found on the first floor, all with sea view. There is also a small kitchenette/laundry area.
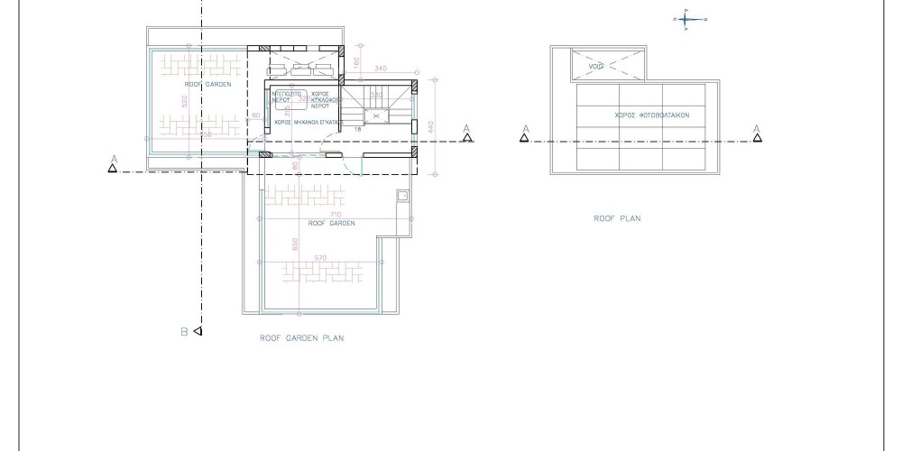
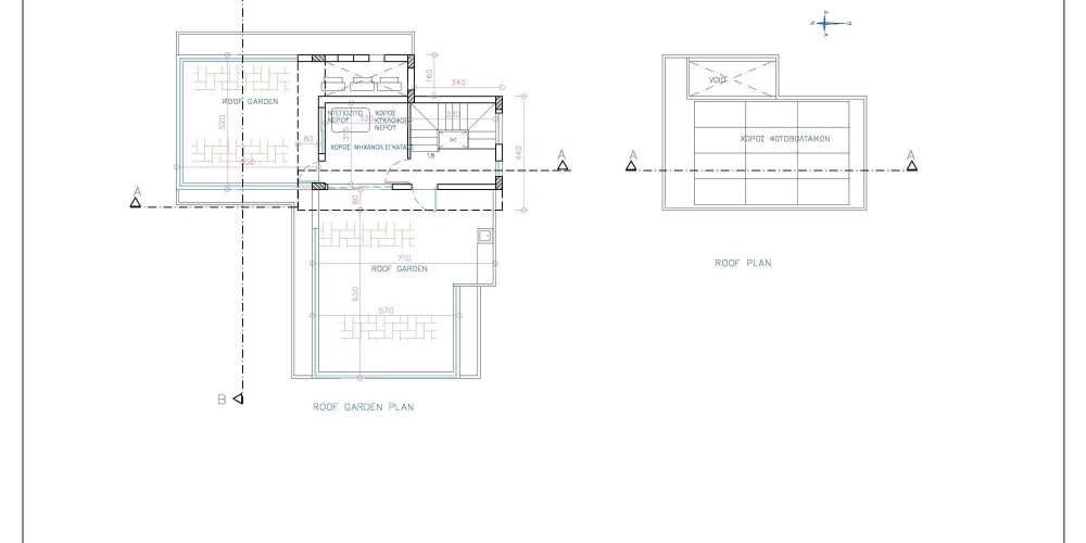
From this level there is access to the substantial roof garden, with full sea view and sink/bbq area.
Outside there is a huge garden area and a swimming pool.
Location benefits:
- Huge land opposite belongs to the Church, meaning that it will not be constructed, thus maintaining the “openness” of the area;
- A 25% build factor is imposed in the area, thus eliminating the possibility for blocks of flats to be constructed in the future and block the sea views from the property.
The Project has EPC certificate with "B" Energy Efficiency Rating.
All units sold or reserved.











