S366 - Commercial building for investment purposes in Limassol's central area, walking distance to the sea
Property status:
Project delivered
Location:
Cyprus, Limassol, Kolonakiou (Eastern district of Limassol)
This commercial building with office spaces presents an ideal solution for companies seeking a prominent address in a high profile suburb of the city.
Aesthetically appealing, this modern low-rise building has been designed to suit one or more occupiers – highly suitable as a corporate headquarters, a regional office, or for boutique busines...
This commercial building with office spaces presents an ideal solution for companies seeking a prominent address in a high profile suburb of the city.
Aesthetically appealing, this modern low-rise building has been designed to suit one or more occupiers – highly suitable as a corporate headquarters, a regional office, or for boutique businesses looking to enhance their company’s image with contemporary, functional office accommodation.
The Project has EPC certificate with "A" Energy Efficiency Rating.
Area & Prices
All units sold or reserved.
Sold & Reserved Properties
Bld
- Commercial building
Beds:
Area:
823 m2
Sold
Map Location
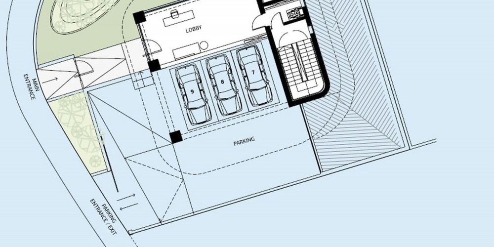
Site Map & Floor Plans
Weather
16
November
2025









