T146 - Apartments in just a 10-minutes drive from Finikoudes promenade and the Blue Flag beach in Larnaca
This contemporary residential apartment building in Larnaca combines modern design, comfort and everyday functionality in one elegant structure. Featuring clean architectural lines and a neutral color palette, the building offers aesthetic that blends seamlessly with the surrounding greenery.
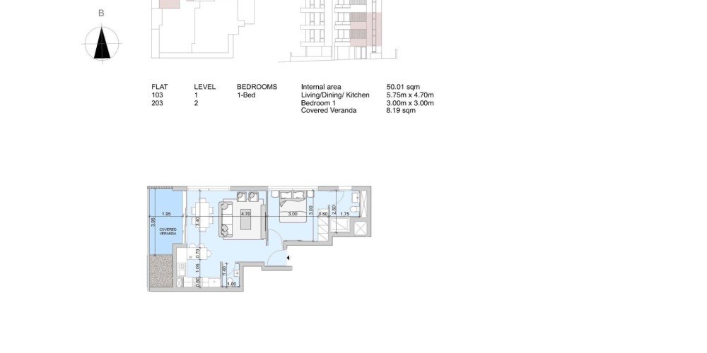
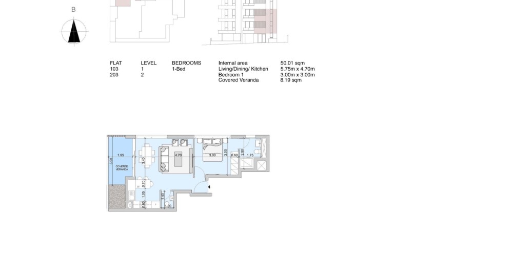
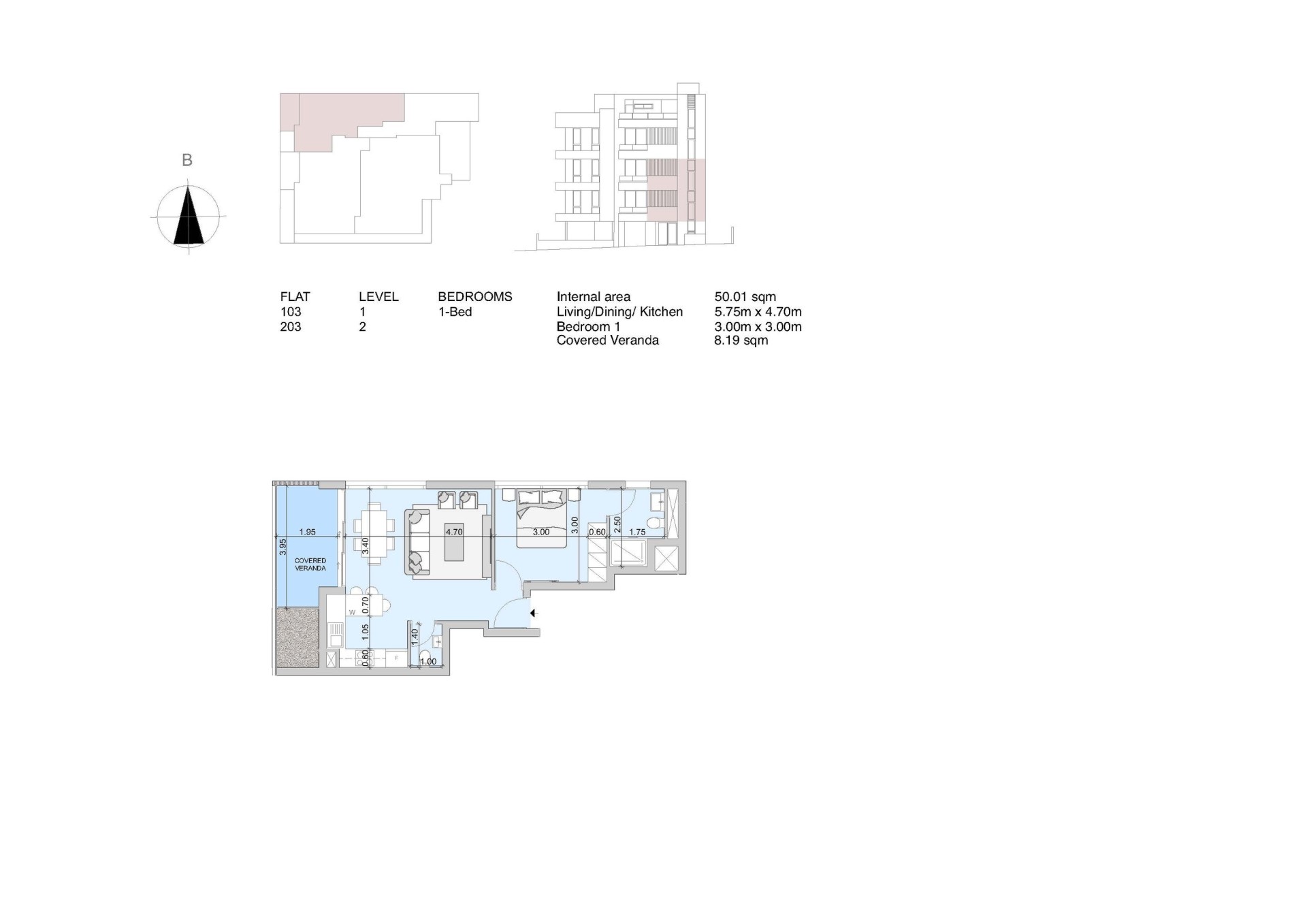
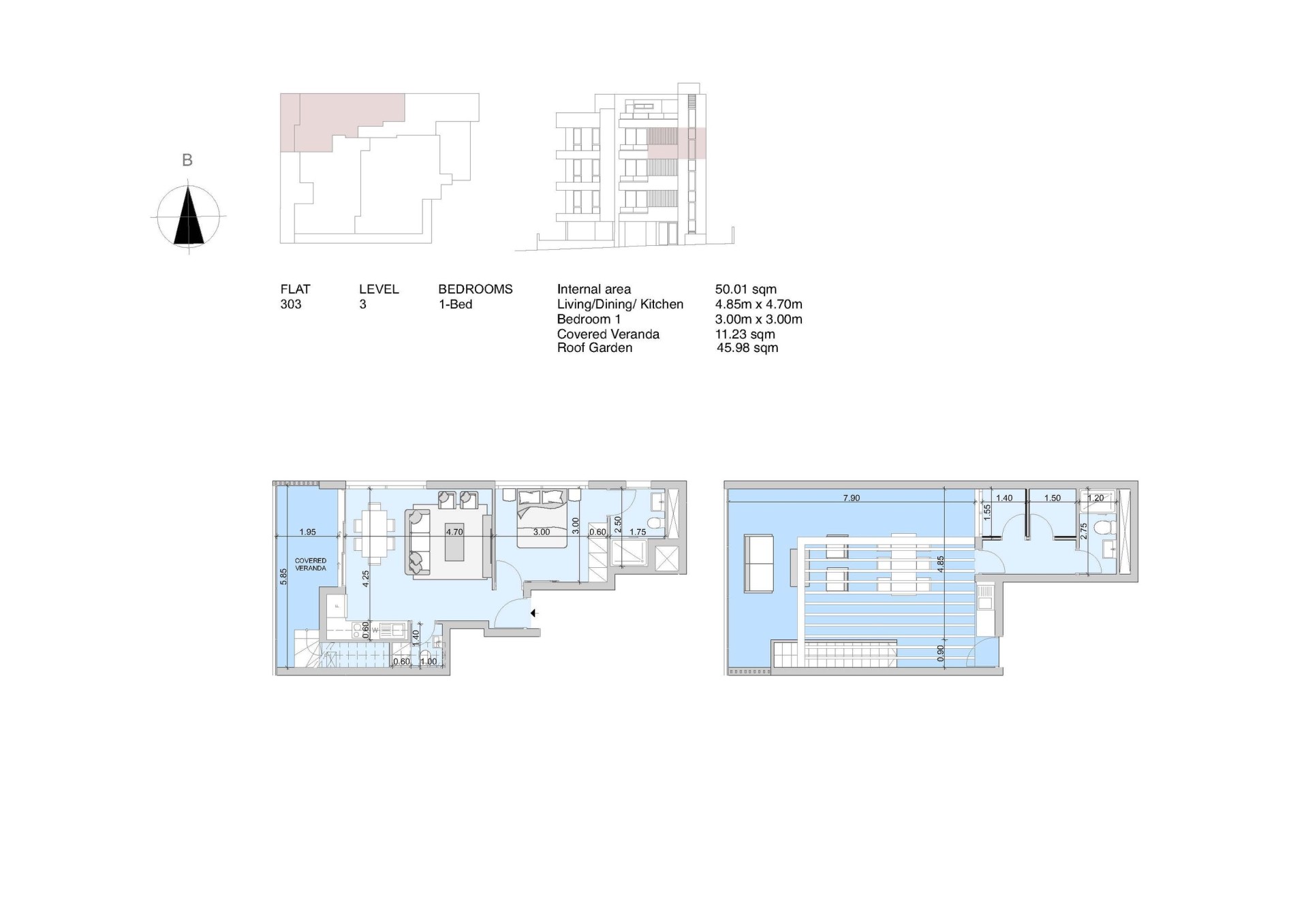
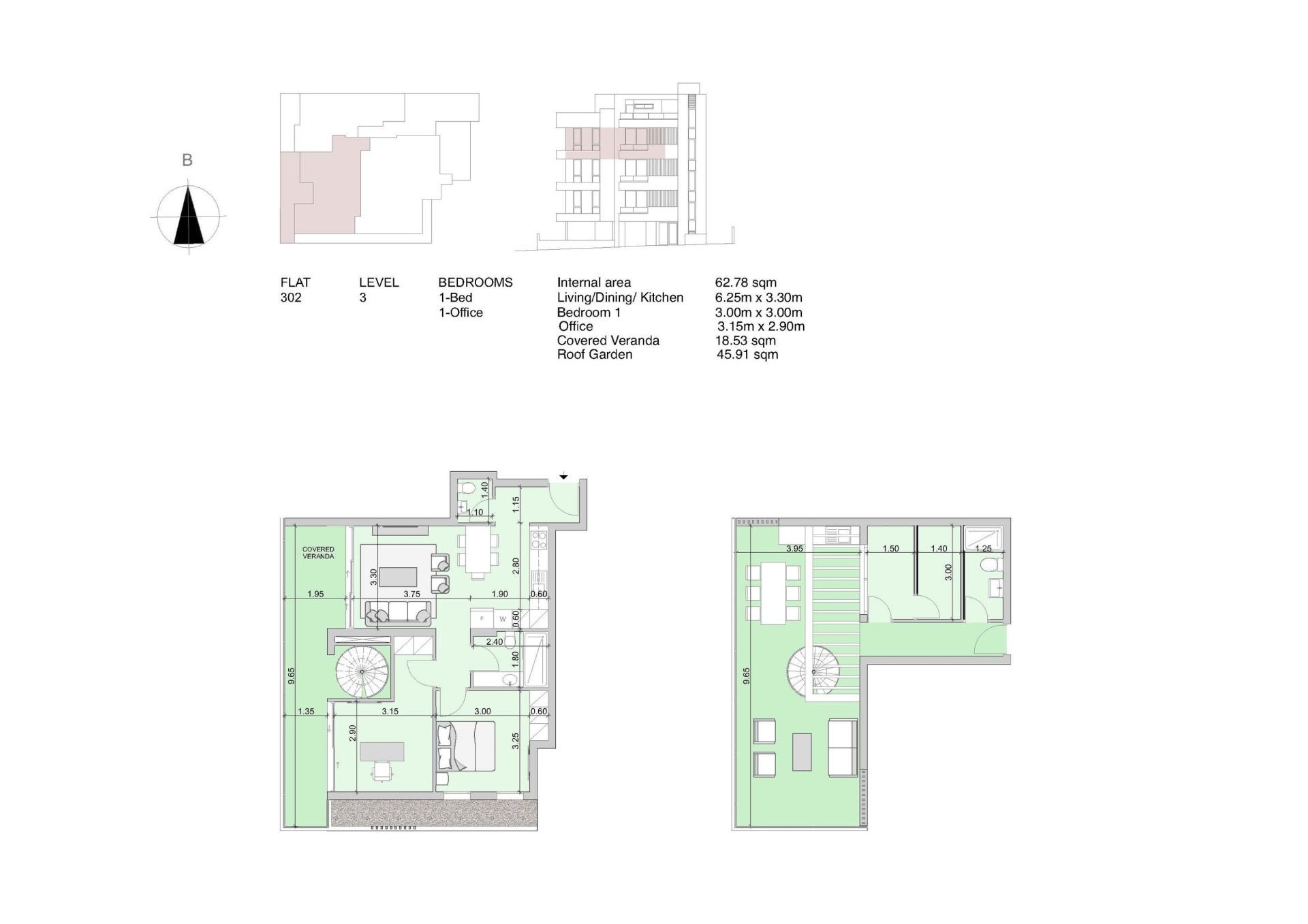
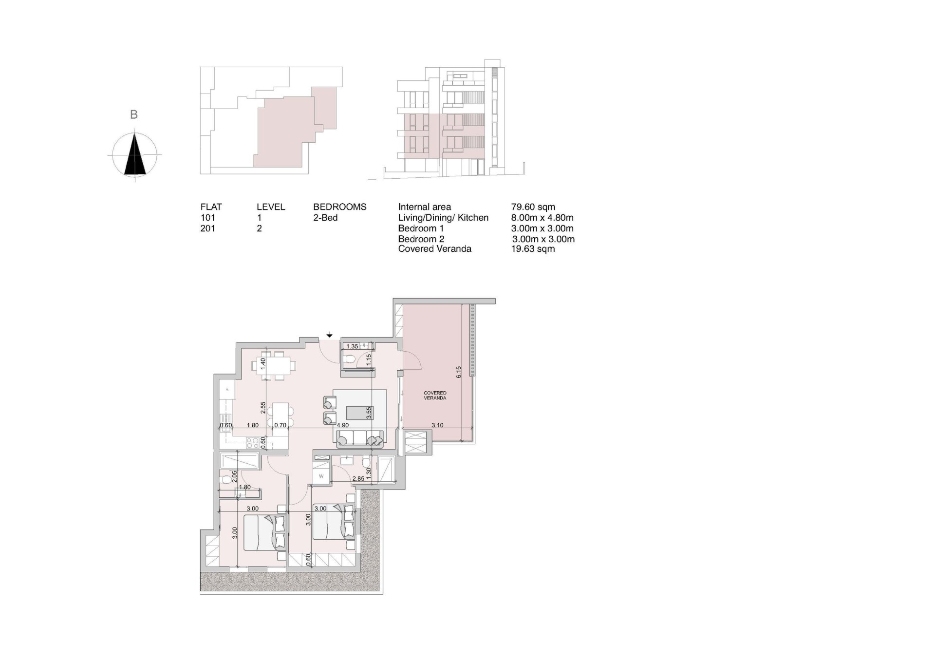
The development consists of four floors of spacious modern apartments, designed to maximize natural light and indoor-outdoor living. Large windows and wide balconies create bright, airy interiors with views of the neighborhood and nearby nature. Located just a 10-minute drive from Finikoudes promenade and the Blue Flag beach, these apartments are ideal for permanent residence, holiday living or property investment in Larnaca.
Main features:
- Modern, refined architectural design
- Premium finishes with attention to detail
- Surrounded by two green areas
- Open views facing the Salt Lake
- Balanced urban living with nature and light.
The Project has EPC certificate with "A" Energy Efficiency Rating.





















