A0197 - Виллы с панорамным видом в Mouttayiaka, Лимассол
Статус недвижимости:
Завершение строительства - Май 2026г.
Расположение:
Кипр, Лимассол, Муттайака (район в восточной части Лимассола)
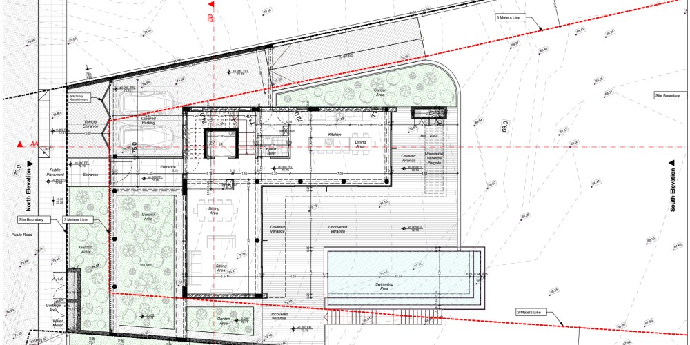
Этот проект состоит из 8 отдельно стоящих вилл, расположенных в районе Mouttayiaka, в нескольких минутах езды от пляжа и основных удобств, таких как магазины, супермаркеты и рестораны. Кроме того, отсюда легко добраться до автомагистрали, по которой можно легко добраться до различных районов и городов Кипра. Из окон открывается захватывающий вид на море и...
Этот проект состоит из 8 отдельно стоящих вилл, расположенных в районе Mouttayiaka, в нескольких минутах езды от пляжа и основных удобств, таких как магазины, супермаркеты и рестораны. Кроме того, отсюда легко добраться до автомагистрали, по которой можно легко добраться до различных районов и городов Кипра. Из окон открывается захватывающий вид на море и город.
Основные характеристики проекта :
- Материалы высшего качества
- Просторные и продуманные планировки
- Фотоэлектрические панели
- Напольное водяное отопление
- Система VRV
- Частный ландшафтный сад
- Частный плавательный бассейн
- Зона барбекю
- Просторные парковочные места: От 2 до 4 парковочных мест на резиденцию
- Живописные виды
Проект имеет сертификат энергоэффективности Class "A"
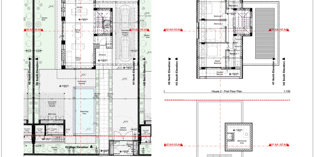
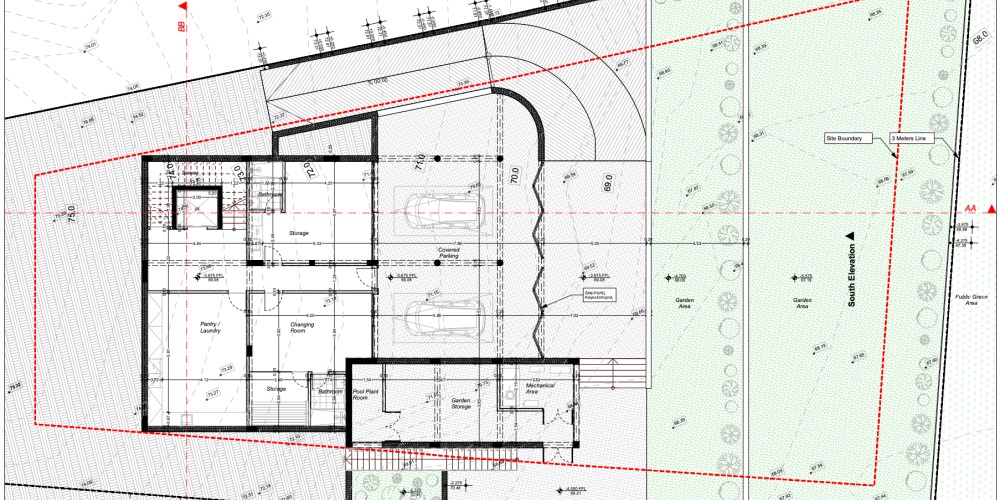
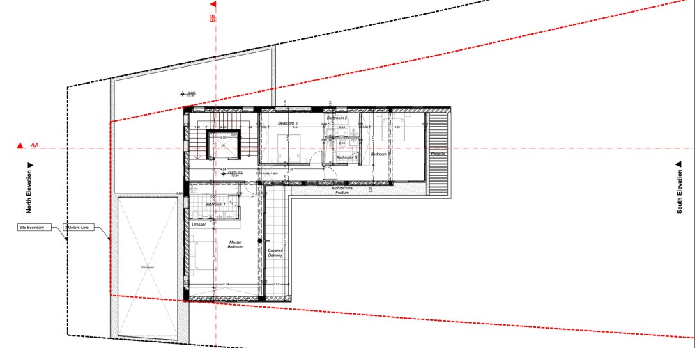
Площади и Цены
1
- Вилла
Спальни:
3
Площадь:
236 m2
Участок:
517 m2
€ 1,350,000 + НДС
Внутренняя Площадь:
190 m2
Крытая веранда:
46 m2
Цена за кв.м:
€ 5,720
Парковка:
2
Бассейн:
собственный
Дополнительная информация
×
2
- Вилла
Спальни:
3
Площадь:
202 m2
Участок:
481 m2
€ 950,000 + НДС
Внутренняя Площадь:
170 m2
Крытая веранда:
32 m2
Цена за кв.м:
€ 4,703
Парковка:
2
Бассейн:
собственный
Дополнительная информация
×
3
- Вилла
Спальни:
3
Площадь:
202 m2
Участок:
480 m2
€ 950,000 + НДС
Внутренняя Площадь:
170 m2
Крытая веранда:
32 m2
Цена за кв.м:
€ 4,703
Парковка:
2
Бассейн:
собственный
Дополнительная информация
×
4
- Вилла
Спальни:
3
Площадь:
202 m2
Участок:
479 m2
€ 950,000 + НДС
Внутренняя Площадь:
170 m2
Крытая веранда:
32 m2
Цена за кв.м:
€ 4,703
Парковка:
2
Бассейн:
собственный
Дополнительная информация
×
5
- Вилла
Спальни:
3
Площадь:
202 m2
Участок:
479 m2
€ 950,000 + НДС
Внутренняя Площадь:
170 m2
Крытая веранда:
32 m2
Цена за кв.м:
€ 4,703
Парковка:
2
Бассейн:
собственный
Дополнительная информация
×
Продано & Зарезервировано
6
- Вилла
Спальни:
3
Площадь:
202 m2
Зарезервировано
7
- Вилла
Спальни:
4
Площадь:
492 m2
Зарезервировано
8
- Вилла
Спальни:
4
Площадь:
561 m2
Зарезервировано
Расположение на карте
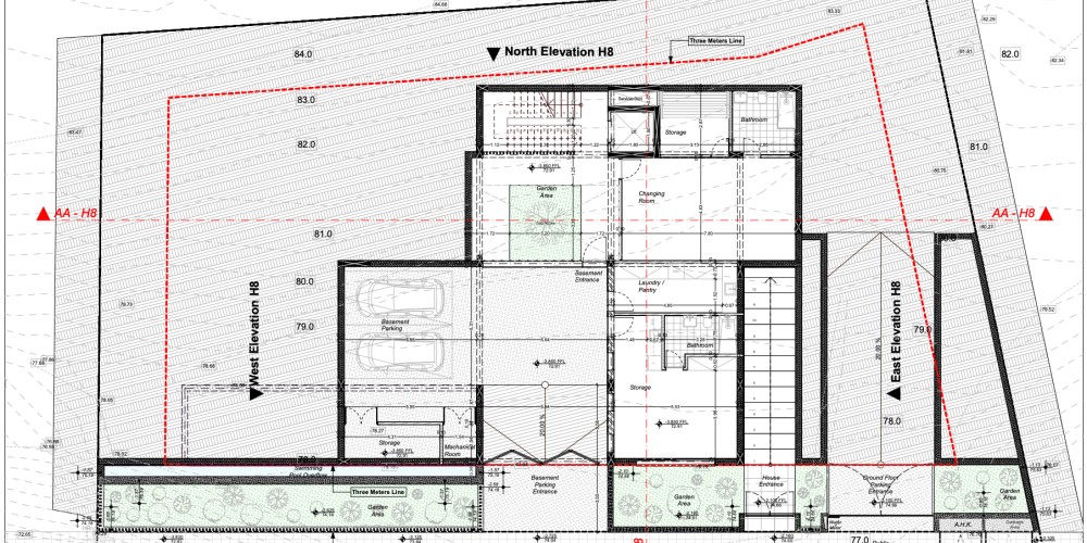
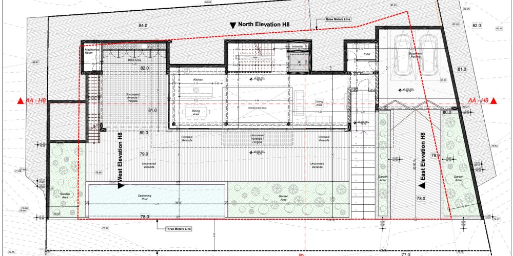
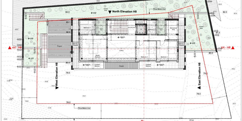
Схемы и планы
Погода
26
Октября
2025

















