A0292 - Современные виллы в популярном пригороде Лимассола, Асоматос
Статус недвижимости:
Завершение строительства - Апрель 2026г.
Расположение:
Кипр, Лимасол, Асоматос (юго-западная часть Лимассола)
Этот проект расположен в прекрасном районе Асоматос, рядом с живописным озером Лимассол. Он идеально сочетает природу и удобство, обеспечивая легкий доступ к необходимым удобствам для комфортной и приятной жизни. Каждая вилла имеет частный бассейн, собственное парковочное место и просторный участок. Эти роскошные виллы выделяются своим непревзойденным диз...
Этот проект расположен в прекрасном районе Асоматос, рядом с живописным озером Лимассол. Он идеально сочетает природу и удобство, обеспечивая легкий доступ к необходимым удобствам для комфортной и приятной жизни. Каждая вилла имеет частный бассейн, собственное парковочное место и просторный участок. Эти роскошные виллы выделяются своим непревзойденным дизайном.
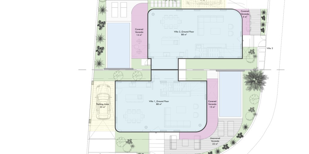
Площади и Цены
1
- Вилла
Спальни:
3
Площадь:
199 m2
Участок:
200 m2
€ 800,000 + НДС
Внутренняя Площадь:
160 m2
Крытая веранда:
39 m2
Открытая веранда:
55 m2
Цена за кв.м:
€ 4,020
Кладовая:
Да
Парковка:
1
Бассейн:
собственный
Дополнительная информация
×
2
- Вилла
Спальни:
3
Площадь:
201 m2
Участок:
200 m2
€ 800,000 + НДС
Внутренняя Площадь:
160 m2
Крытая веранда:
41 m2
Открытая веранда:
34 m2
Цена за кв.м:
€ 3,980
Кладовая:
Да
Парковка:
1
Бассейн:
собственный
Дополнительная информация
×
Расположение на карте
Схемы и планы

































