A0299 - Виллы в пригороде Лимассола (Монагрулли)
Статус недвижимости:
Завершение строительства - 12-15 месяцев после подписания контракта
Расположение:
Кипр, Лимассол, Месовунья (престижный район на северо-востоке Лимассола)
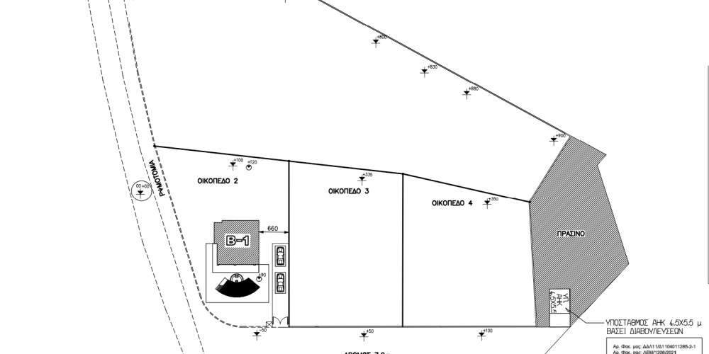
Проект состоит из 6 роскошных вилл в Монагрулли, Лимассол. Каждая вилла имеет просторный участок, включает 3-4 спальни, гостевой санузел, бассейн-инфинити, террасу с зоной барбекю и домиком у бассейна. Виллы оснащены системой "умный дом", подогревом полов, электрическими солнцезащитными жалюзи, системой видеонаблюдения и сигнализацией. Два сьюта с ванной ...
Проект состоит из 6 роскошных вилл в Монагрулли, Лимассол. Каждая вилла имеет просторный участок, включает 3-4 спальни, гостевой санузел, бассейн-инфинити, террасу с зоной барбекю и домиком у бассейна. Виллы оснащены системой "умный дом", подогревом полов, электрическими солнцезащитными жалюзи, системой видеонаблюдения и сигнализацией. Два сьюта с ванной комнатой и гардеробной. Современный дизайн, высокое качество строительства, потрясающий вид на горы и море. Идеально подходят для основного проживания или отдыха.
Проект имеет сертификат энергоэффективности Class "A".
Площади и Цены
R1
- Вилла
Спальни:
4
Площадь:
241 m2
Участок:
800 m2
€ 920,000 + НДС
Внутренняя Площадь:
241 m2
Цена за кв.м:
€ 3,817
Кладовая:
Да
Парковка:
2
Бассейн:
собственный
Дополнительная информация
×
Q1
- Вилла
Спальни:
3
Площадь:
217 m2
Участок:
886 m2
€ 725,000 + НДС
Внутренняя Площадь:
217 m2
Цена за кв.м:
€ 3,341
Кладовая:
Да
Парковка:
2
Бассейн:
собственный
Дополнительная информация
×
Q2
- Вилла
Спальни:
3
Площадь:
217 m2
Участок:
886 m2
€ 715,000 + НДС
Внутренняя Площадь:
217 m2
Цена за кв.м:
€ 3,295
Кладовая:
Да
Парковка:
2
Бассейн:
собственный
Дополнительная информация
×
Q3
- Вилла
Спальни:
3
Площадь:
217 m2
Участок:
886 m2
€ 735,000 + НДС
Внутренняя Площадь:
217 m2
Цена за кв.м:
€ 3,387
Кладовая:
Да
Парковка:
2
Бассейн:
собственный
Дополнительная информация
×
Продано & Зарезервировано
R2
- Вилла
Спальни:
4
Площадь:
210 m2
Продано
R3
- Вилла
Спальни:
3
Площадь:
192 m2
Продано
Расположение на карте
Схемы и планы
Погода
30
Октября
2025





















