A0360 - Современные и уютные квартиры в районе Апостолос Андреас, Лимассол
Этот проект расположен в районе Агиос Иоаннис, который является самым активно развивающимся деловым центром Лимассола. Его удачное расположение обеспечивает близость к крупнейшим бизнес-центрам города, что делает его привлекательным как для комфортного проживания, так и для инвестиций.
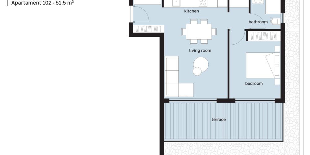
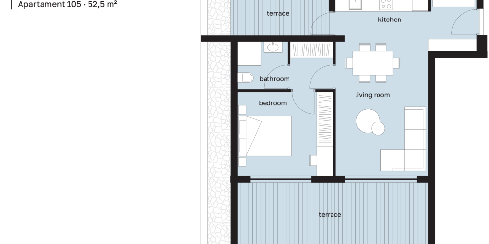
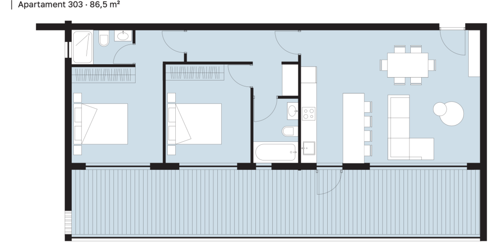
Комплекс состоит из 20 квартир: 14 однокомнатных и 6 двухкомнатных. Первый и второй этажи идентичны, а на третьем и четвёртом этажах предусмотрены отличающиеся по размеру веранды.
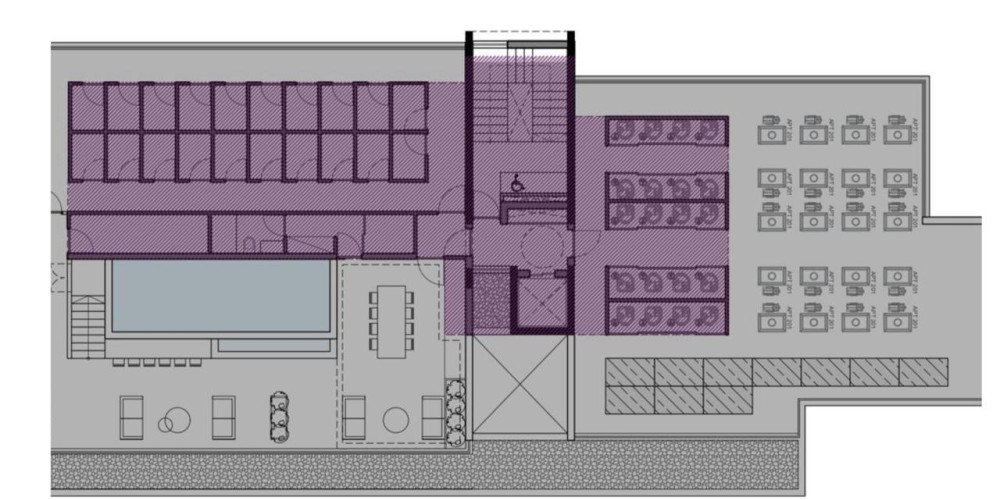
Для удобства жильцов предусмотрены разнообразные зоны отдыха и инфраструктура: бассейн, спортзал, сауна, сад на крыше, а также общие пространства для работы и досуга, включая коворкинг и зону барбекю. Дополнительным преимуществом является то, что это единственное здание в квартале выше двух этажей, что гарантирует приватность и отсутствие вида "окна в окна".
Проект имеет сертификат энергоэффективности Class "B"


















