B162 - Апартаменты с 2 спальнями в Лакатамии, рядом с Nicosia Mall
Жилой комплекс расположен в новом районе Лакатамии, в пешей доступности от торгового центра Nicosia Mall. Удобное расположение обеспечивает лёгкий доступ к городской инфраструктуре, сохраняя при этом жилой и спокойный характер района. При проектировании особое внимание было уделено практичным планировкам, энергоэффективности и современным функциональным решениям.
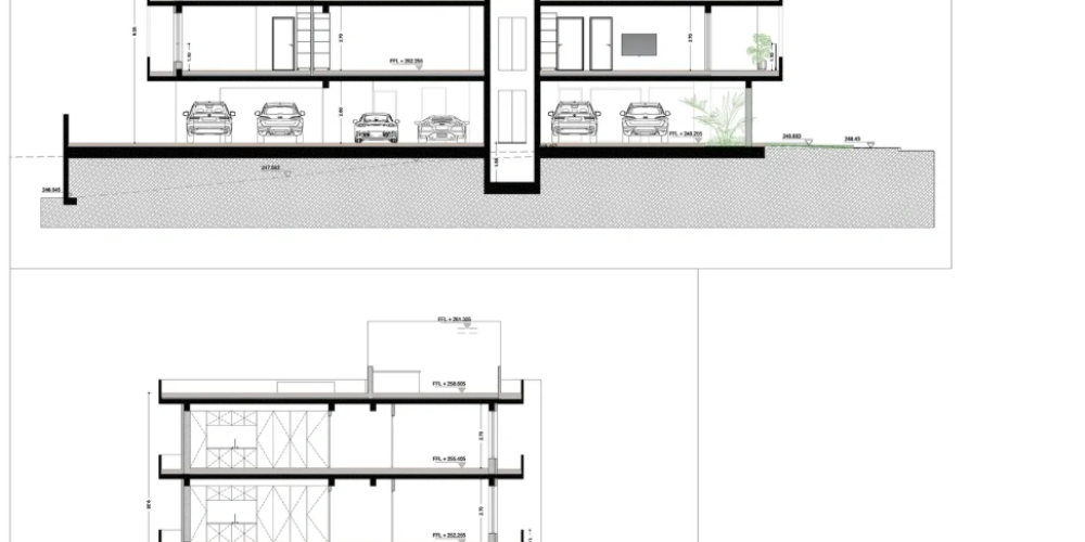
Здание состоит из двух жилых этажей. На первом уровне предусмотрена крытая парковка с инфраструктурой для зарядки электромобилей, индивидуальные кладовые для каждой квартиры, зона приёма гостей, озеленённое пространство и пандус для людей с ограниченными возможностями.
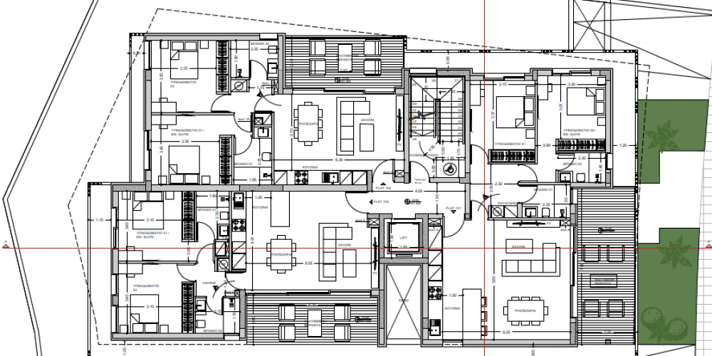
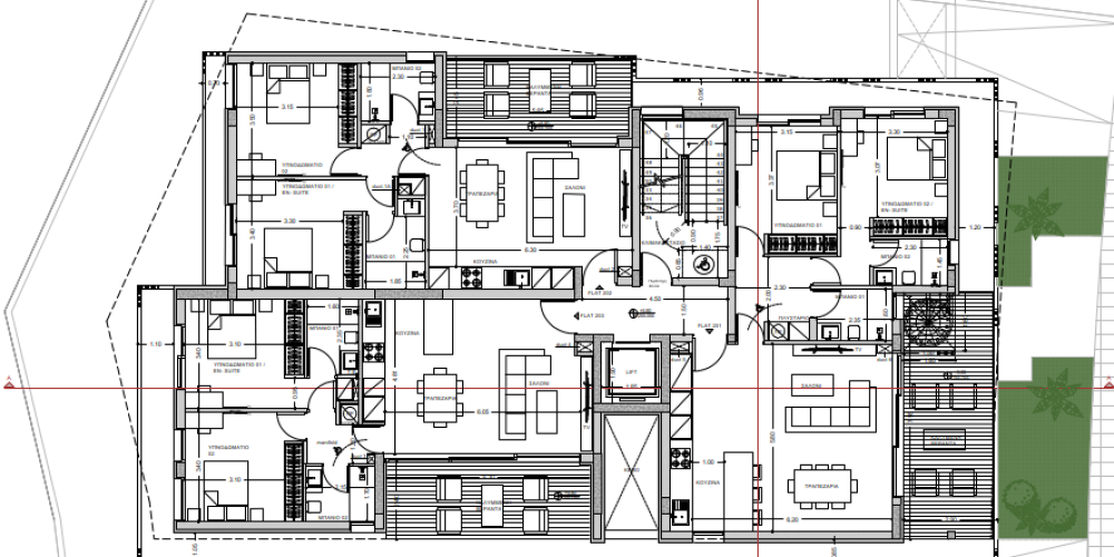
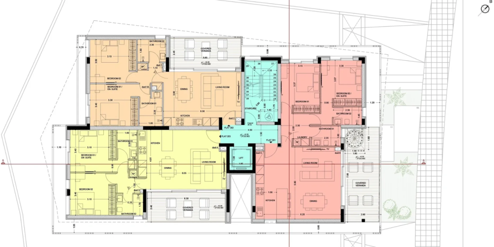
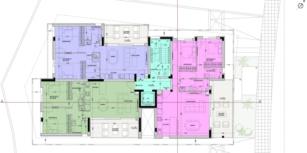
На первом и втором этажах расположены шесть квартир — каждая с двумя спальнями и двумя ванными комнатами. Планировки включают объединённые зону гостиной и столовой, кухню, прачечную и просторную крытую веранду. Квартира 201 дополнительно располагает частным выходом на сад на крыше. Во всех квартирах предусмотрены технические решения для последующей установки солнечных панелей.
Здание имеет энергетический сертификат класса «A», что обеспечивает низкие эксплуатационные расходы и устойчивость в долгосрочной перспективе.
Основные характеристики проекта и квартир:
- Строительство в процессе
- Расположение в Лакатамии, рядом с Nicosia Mall
- Квартиры с двумя спальнями и двумя ванными
- Каждая квартира с крытой верандой
- Квартира 201 с частным садом на крыше
- Крытое парковочное место на каждую квартиру
- Индивидуальная кладовая на каждую квартиру
- Полностью установленное кондиционирование (сплит-система)
- Солнечные панели для общих зон
- Подготовка к установке солнечных панелей в каждой квартире
- Подготовка к зарядке электромобилей на парковке
- Высокие потолки
- Пандус и доступная входная зона
Проект имеет энергетический сертификат класса «A».























