B219 - Квартира с 2 спальнями в районе Арадиппу в Ларнаке








Жилой комплекс в районе Арадиппу в Ларнаке предлагает шесть квартир, расположенных в пешей доступности от крупного супермаркета и всего в 1 км от торгового центра Metropolis Mall.
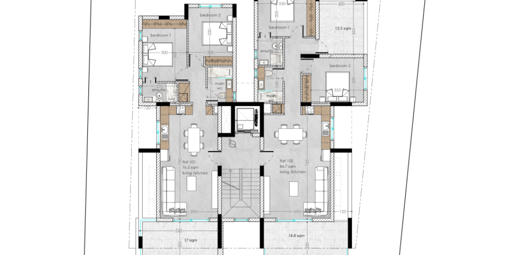
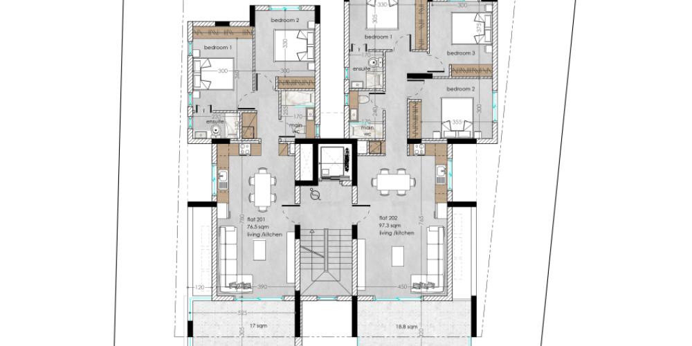
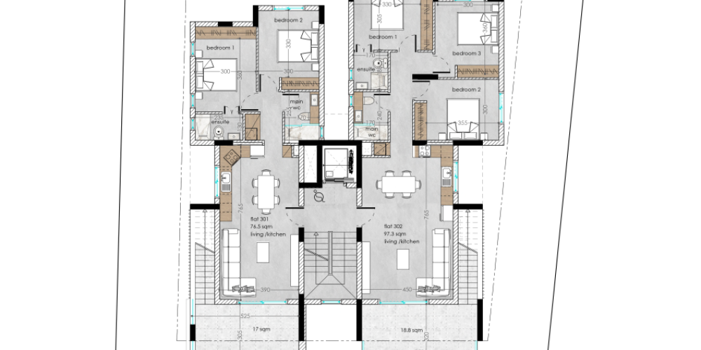
В левой части комплекса — двухкомнатные квартиры с двумя спальнями: одна из них с собственной ванной комнатой, а также отдельная гостевая ванная. В квартирах предусмотрена кухня открытой планировки, совмещённая с гостиной. Общая площадь помещений составляет 78 м², а к каждой квартире примыкает крытая веранда площадью 20 м².
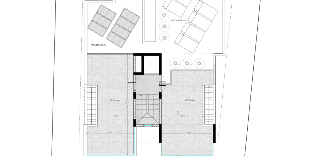
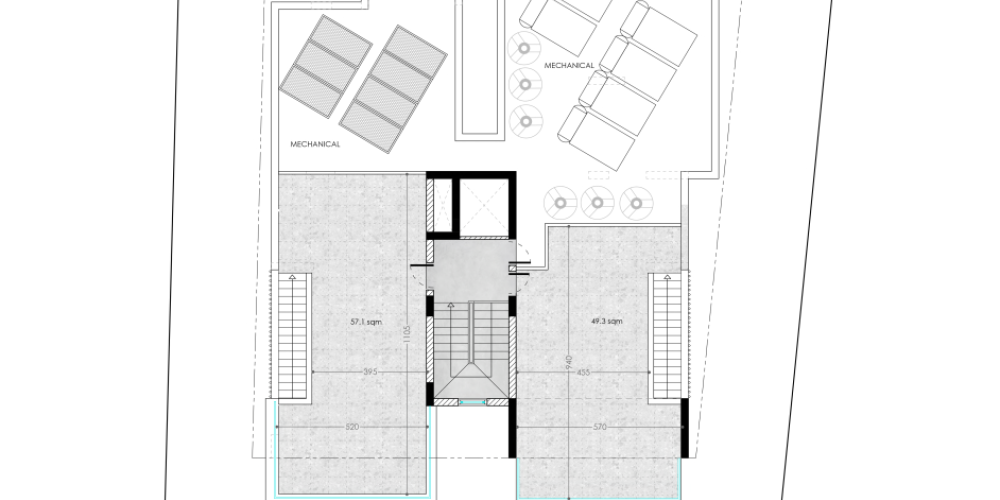
В правой части комплекса представлены трёхкомнатные квартиры площадью 96 м² с крытой верандой 20 м². Апартаменты на верхнем этаже обеих сторон оборудованы приватными террасами на крыше площадью 50 м² — идеальным местом для отдыха на свежем воздухе.
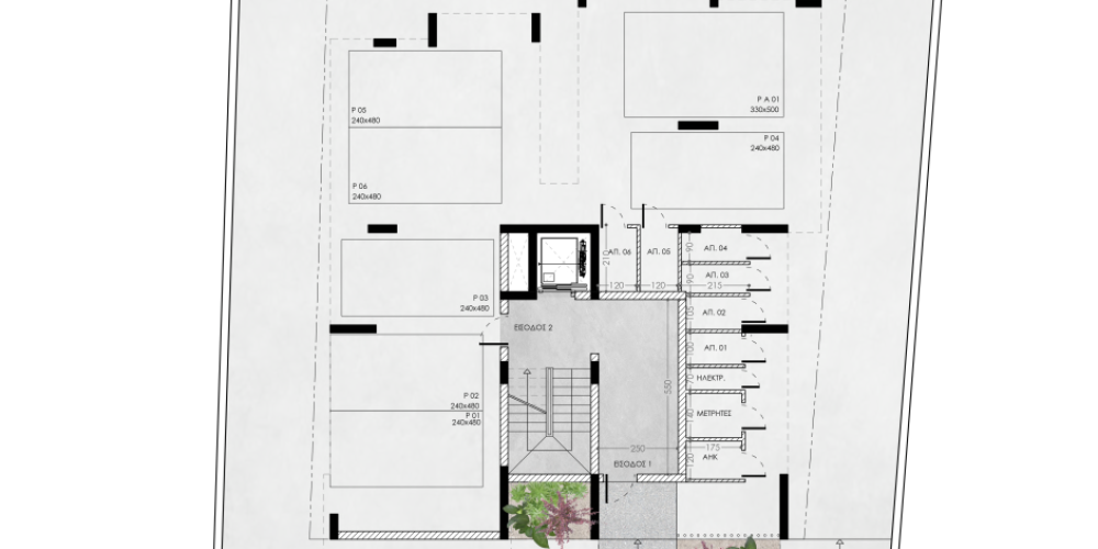
Каждая квартира оснащена собственным крытым парковочным местом и кладовым помещением.
Комплекс расположен рядом с частными школами, такими как American Academy, и имеет удобный прямой выезд на основные трассы, ведущие в Никосию, Лимассол, Пафос и Аммохостос.
Проект разработан командой профессиональных архитекторов и инженеров с акцентом на качество и комфорт: использованы итальянские керамические покрытия, стеклянные балконы, продуманные планировки с учетом приватности и эффективного использования пространства. Для повышения энергоэффективности в доме будет установлена фотогальваническая система с возможностью учета произведенной энергии (net metering), что позволит значительно снизить затраты на электроэнергию.
Основные характеристики проекта и квартир:
- Район: Арадиппу, Ларнака
- Всего квартир: 6
- Двухкомнатные квартиры: 78 м² + веранда 20 м²
- Трёхкомнатные квартиры: 96 м² + веранда 20 м²
- Верхние этажи — приватные террасы на крыше площадью 50 м²
- Крытые парковочные места и кладовые для каждой квартиры
- Пешая доступность до Lidl и 1 км до Metropolis Mall
- Близость к частным школам и основным трассам
Энергоэффективность класса «А» с системой фотогальваники и net metering
Юниты проданы либо зарезервированы.
S690 - Жилое здание, предлагающее квартиры с 2 и 3 спальнями, а также коммерческие помещения, в Арадиппу, Ларнака
S950 - Просторные квартиры с 2 и 3 спальнями, наполненные естественным светом и практичной планировкой в Арадиппу, Ларнака





