B246 - Многофункциональный дом с 6 спальнями, видом на море и адаптивной планировкой в Като Пафосе
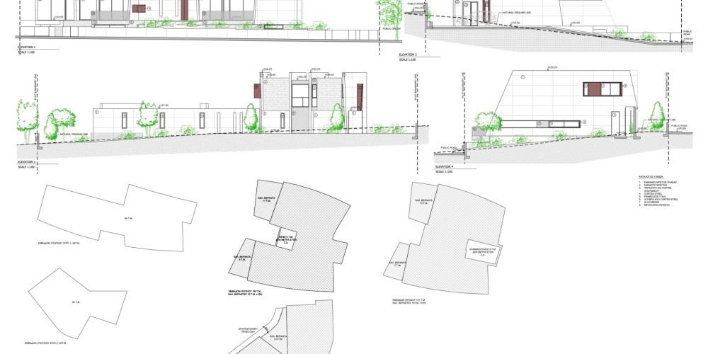
Этот жилой объект общей крытой площадью 475 м² сочетает в себе продуманную планировку, комфорт и приватность. Расположенный на участке площадью 980 м², он включает основной дом, отдельный гостевой дом (annex), а также различные внутренние и внешние пространства. Подходит как для проживания большой семьи, так и для сдачи в аренду или размещения гостей.
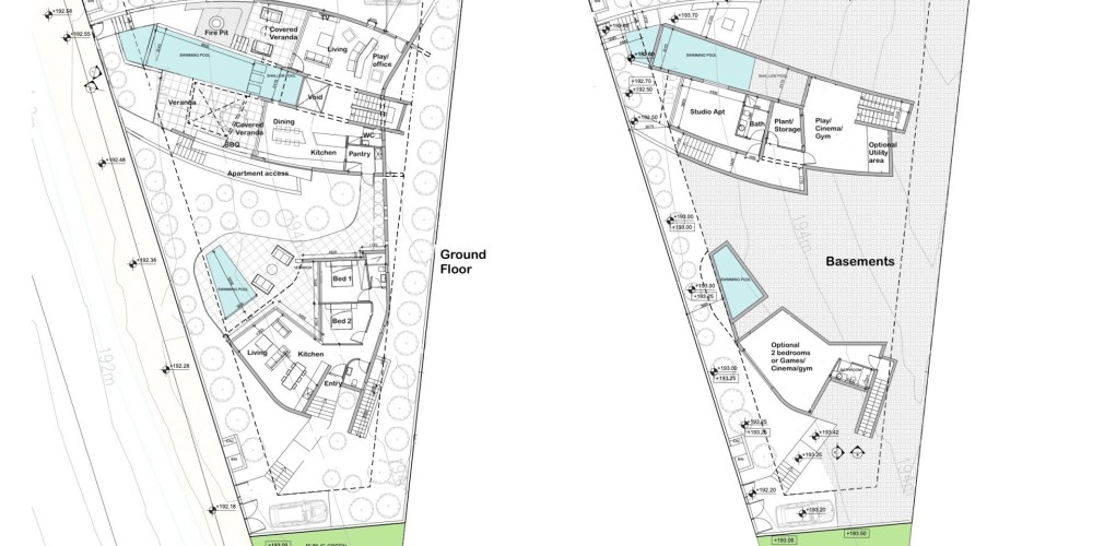
Основной дом занимает несколько уровней и включает три просторные спальни, кабинет и открытую кухню-гостиную-столовую с панорамным остеклением и видом на море. Главная спальня оборудована гардеробной и ванной комнатой. Из холла открывается выход к панорамному инфинити-бассейну с видом на море. На нижнем уровне — домашний кинотеатр/тренажерный зал и отдельные апартаменты с одной спальней и собственным входом, которые можно использовать для гостей или персонала.
Отдельный гостевой дом включает две спальни, ванную комнату, открытую кухню-гостиную-столовую и собственный бассейн с садом. В подвале предусмотрена возможность обустройства еще двух спален или игровой комнаты. Современные инженерные решения, включая VRV-систему охлаждения и энергоэффективные материалы, обеспечивают комфорт в любое время года.
На участке также обустроены углубленная зона отдыха с камином, несколько обеденных зон, зона для барбекю и плавающие ступени у бассейна. Из дома открываются панорамные виды на море и закат. Участок граничит с общественной зелёной зоной и имеет два отдельных въезда, что позволяет при необходимости продать гостевой дом как самостоятельный объект.
Основные характеристики:
- Общая крытая площадь: 475 м²
- Площадь участка: 980 м²
- Основной дом: 3 спальни + кабинет
- Главная спальня с гардеробной и ванной комнатой
- Кухня, столовая и гостиная открытой планировки с видом на море
- Подсобное помещение, кладовая и гостевой санузел
- Инфинити-бассейн с плавающими ступенями
- Кинотеатр/тренажерный зал в подвале
- Гостевые/служебные апартаменты с отдельным входом (1 спальня)
- Отдельный гостевой дом: 2 спальни, 1 ванная
- Гостевой дом с собственным бассейном и садом
- Подвал гостевого дома с возможностью обустройства 2 дополнительных спален или игровой комнаты
- Уличная кухня и зона для барбекю
- Углубленная зона отдыха с камином
- VRV-система охлаждения и система теплого пола
- Пассивное охлаждение за счет вентиляционных каналов (эффект дымохода)
- Система фильтрации воды на весь дом
- Примыкает к общественной зеленой зоне
- Два въезда на участок
- Панорамный вид на море и закат
- Энергоэффективный дизайн с системами вентиляции и защиты от солнца
- Балюстрады без стекла для лучшей вентиляции и простоты ухода
- Индивидуальный дизайн кухни и мебели
- Возможность применения сниженной ставки НДС 5%
Проект имеет сертификат энергоэффективности класса “A”.
 
                
 
                                     
                                     
                                     
                                     
                                     
                                     
                                     
                                     
                                     
                                     
                                     
                                     
                                     
                                     
                                     
                                     
                                     
                                     
                                     
                                    























 
                                 
                                 
                                 
                                 
                                     
                                     
                                     
                                     
                                     
                                     
                                     
                                     
                                     
                                     
                                     
                                     
                                     
                                     
                                     
                                     
                                     
                                     
                                     
                                     
                                     
                                     
                                     
                                     
                                     
                                     
                                     
                                     
                                     
                                     
                                     
                                     
                                     
                                     
                                     
                                     
                                     
                                     
                                     
                                     
                                     
                                     
                                     
                                     
                                     
                                     
                                    