B259 - Виллы с 3 спальнями и панорамным видом на море и горы в Пареклисии, Лимассол
Расположенные в развивающемся жилом районе Пареклисия в Лимассоле, эти полностью готовые виллы являются частью комплекса на склоне холма, включающего 17 резиденций. Район сочетает спокойную природную обстановку с удобным доступом к городским удобствам — дорога до центра Лимассола занимает всего несколько минут. В пешей доступности находятся магазины, кафе, медицинские и спортивные учреждения, а также пляжи с «Голубым флагом», такие как Пареклисия и Сент-Рафаэль.
Комплекс занимает одно из самых высоких мест в округе и открывает захватывающие виды на Средиземное море и горы. Благодаря возвышенному расположению здесь обеспечивается естественная вентиляция и приватность — участок физически отделён от соседних застроек.
Каждая вилла имеет индивидуальный дизайн, разработанный в рамках общей архитектурной концепции. Участки продуманы с учетом организации зелёных зон, бассейна и просторной террасы. Внутри комплекса предусмотрены тупиковые дороги, предназначенные исключительно для резидентов, что повышает уровень уединения и безопасности.
Инфраструктура комплекса полностью завершена: подземные коммуникации, асфальтированные дороги и тротуары, система ливневой канализации, уличное освещение и противопожарные меры. При строительстве использовалась опалубка тоннельного типа, обеспечивающая повышенную сейсмостойкость. Стены выложены кирпичом, а почва под фундаментом укреплена методом инъекционного армирования, что повышает надежность конструкции.
Виллы сертифицированы по классу энергоэффективности «А». Архитектура и планировка учитывают ориентацию по сторонам света, применяются современные технологии теплоизоляции и энергоэффективные материалы. В отделке использованы высококачественные материалы, включая стеклянные и мраморные ограждения, керамическое покрытие двора и крытые парковочные места.
Основные характеристики проекта и объектов:
- Расположение: Пареклисия, Лимассол
- Комплекс из 17 вилл на склоне холма
- Панорамные виды на море и горы
- Рядом пляжи с «Голубым флагом»
- Полностью завершённая инфраструктура: дороги, ливневая канализация, освещение
- Частные тупиковые проезды только для резидентов
- Индивидуальный архитектурный проект каждой виллы
- Собственный бассейн и просторная терраса
- Ограждения из стекла и мрамора
- Кирпичная кладка и усиленный фундамент
- Крытая парковка
- Озеленение на каждом участке
Энергетический сертификат класса A
Дополнительная информация
Готовая вилла с 3 спальнями расположена в жилом комплексе на одном из самых высоких участков Параклисии, Лимассол. Проект включает 17 домов и предлагает панорамные виды на Средиземное море и горы Троодос. Район активно развивается, наблюдается устойчивый интерес к жилой недвижимости и инфраструктуре.
Вилла находится во внутренней части комплекса, что обеспечивает как уединённость, так и удобный доступ. В частном владении — участок с озеленёнными зонами и бассейном. Территория огорожена, во внутреннем дворике — стеклянные и мраморные ограждения. В пределах комплекса уже завершено строительство дорог, тротуаров, дренажной системы и уличного освещения. Все инженерные сети подключены.
На первом уровне расположены кухня открытого плана, обеденная зона и гостиная с выходом на крытую веранду и участок, который можно использовать, например, под зону барбекю. Здесь же находятся ванная комната и крытая парковка с отдельным входом в дом.
На втором уровне — мастер-спальня с панорамным видом, две дополнительные спальни и две ванные комнаты. Просторный сад на крыше представляет собой дополнительную жилую зону с видами на море и горы. Участок полностью огорожен, двор выложен плиткой и дополнен озеленёнными зонами.
Строительство велось с использованием туннельной опалубки, обеспечивающей высокую прочность конструкции, с дополнительными подземными армированными элементами. Наружные и внутренние стены выполнены из энергоэффективного кирпича. Дом имеет сертификат энергетической эффективности класса A, оптимально ориентирован по сторонам света, оснащён теплоизоляционными материалами и современными стеклопакетами.
В непосредственной близости — вся необходимая инфраструктура: школы, кафе, медицинские учреждения и пляжи с сертификатом качества «Голубой флаг». До центра Лимассола — всего несколько минут езды.
Основные характеристики:
- Вид: Средиземное море и горы Троодос
- Энергоэффективность: класс A, получен сертификат (EPC)
- Благоустройство жилого комплекса: построены дороги и тротуары, подключено уличное освещение
- Площадь участка: 416,5 кв.м
- Ограждение участка: по всему периметру
- Внутреннее ограждение: стекло и мрамор
- Покрытие двора: плитка
- Озеленение: предусмотрено в плане участка
- Бассейн: да
- Крытая парковка: да
- Общая крытая площадь: 184 кв.м
- Спальни: 3
- Ванные комнаты: 3
- Первый этаж (97 кв.м): кухня, столовая, гостиная, ванная, крытая веранда, крытая парковка
- Второй этаж (75 кв.м): мастер-спальня, 2 спальни, 2 ванные комнаты
- Сад на крыше (75 кв.м): включает 12 кв.м крытой площади; ограждение из стекла и мрамора
Дополнительная информация
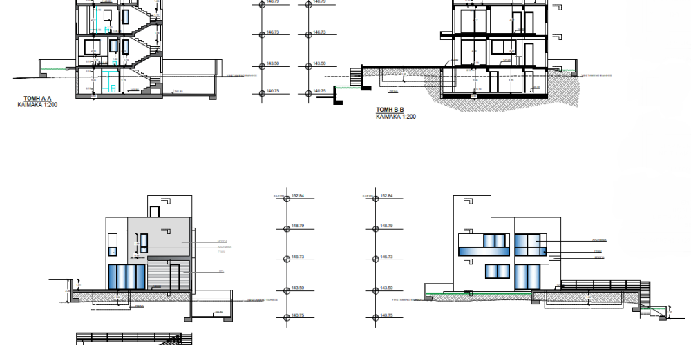
Трёхуровневая вилла с садом на крыше расположена в жилом комплексе на холмах Параклисии, Лимассол. Участок площадью 416,5 кв.м предлагает открытые виды на Средиземное море и горы Троодос. Дом находится на самой высокой точке комплекса, сочетая уединение с удобной близостью к городу.
Жилой комплекс состоит из 17 вилл, выполненных в едином архитектурном стиле. Каждое здание имеет индивидуальную планировку и особенности. Вся инфраструктура уже завершена — построены дороги, тротуары, системы водоотвода, установлены пожарные гидранты и подключены инженерные сети. Внутренние дороги имеют формат тупиков, доступ к которым открыт только для жителей комплекса.
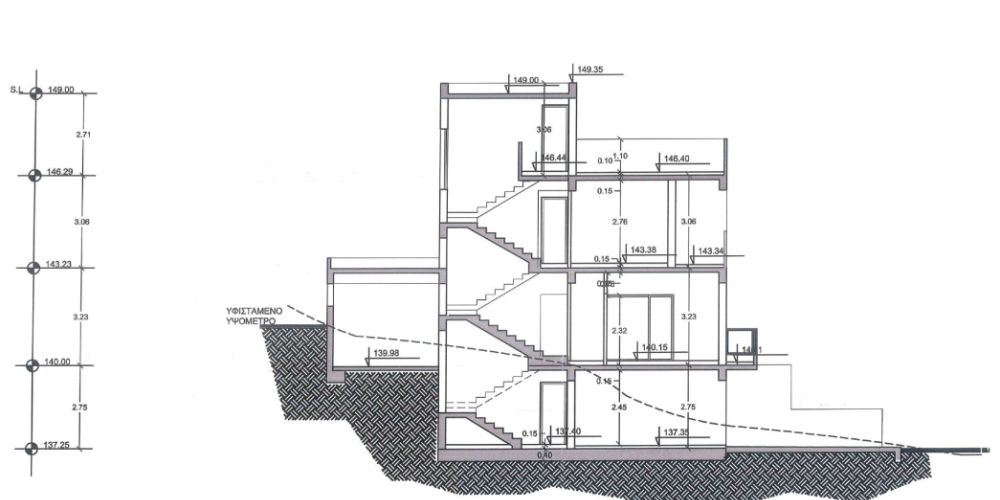
Вилла включает цокольный уровень с отдельным входом, предназначенный для многофункционального использования. Здесь размещены помещение, ванная комната и гараж. Планировка первого этажа объединяет кухню открытого плана, столовую и гостиную зону, а также ванную комнату и две крытые веранды. На втором этаже расположены мастер-спальня, две дополнительные спальни, две ванные комнаты и крытая веранда.
Сад на крыше представляет собой дополнительную жилую зону с крытым пространством, включающим кухню. Уличные зоны огорожены стеклом и мрамором, открывая виды на окружающий ландшафт. Двор выложен плиткой, озеленён и включает частный бассейн.
Здание построено по технологии туннельной опалубки, с применением армированного бетона, обеспечивающего высокую сейсмостойкость. Под фундаментом и бассейном использована технология инъекционного упрочнения грунта. Внутренние и наружные стены выполнены из кирпича.
Дом сертифицирован по классу энергоэффективности A (EPC). Архитектурное решение обеспечивает оптимальную ориентацию по сторонам света, рациональную форму здания и площадь остекления, а также использование теплоизоляционных материалов и систем, снижающих энергопотребление.
Основные характеристики:
- Вид: Средиземное море и горы Троодос
- Энергоэффективность: класс A, получен сертификат (EPC)
- Инфраструктура комплекса: дороги и тротуары построены, подключено уличное освещение
- Площадь участка: 416,5 кв.м.
- Ограждение по периметру: есть
- Внутреннее ограждение: стекло и мрамор
- Покрытие двора: плитка
- Озеленение: предусмотрено в плане участка
- Бассейн: да
- Крытая парковка: да
- Общая крытая площадь: 254 кв.м
- Спальни: 3
- Ванные комнаты: 4
- Цокольный этаж (76 кв.м): помещение, ванная, гараж
- Первый этаж (83 кв.м): кухня, столовая, гостиная, ванная, 2 крытые веранды
- Второй этаж (78 кв.м): мастер-спальня, 2 спальни, 2 ванные комнаты, крытая веранда
- Сад на крыше (78 кв.м): включает 17 кв.м крытой площади с кухней; ограждение из стекла и мрамора
Дополнительная информация
Может применяться пониженная ставка НДС.
Трёхуровневая вилла с садом на крыше расположена в жилом комплексе в районе Параклисия, Лимассол. Дом находится внутри комплекса на участке площадью 416,5 кв.м и имеет два въезда для автомобилей, что обеспечивает гибкость в планировке и использовании. Расположение на холме сочетает тишину и живописные виды на Средиземное море и горы Троодос с удобным доступом к городской инфраструктуре.
Жилой комплекс состоит из 17 вилл с индивидуальными особенностями, выполненных в едином архитектурном стиле. Внутренние дороги комплекса — частные, с форматом тупиков, используемых только жителями. Вся инфраструктура завершена: подземные коммуникации, система водоотведения, уличное освещение и пожарные гидранты. Все инженерные сети официально подключены.
Общая крытая площадь виллы составляет 286 кв.м — значительно больше разрешённой строительными нормативами (131 кв.м). На участке предусмотрен бассейн и озеленённые зоны, а для оформления и зонирования внешнего пространства используются ограждения из стекла и мрамора.
Цокольный этаж с отдельным входом включает многофункциональное помещение, ванную комнату и гараж. Этот уровень может использоваться для различных целей и обеспечивает дополнительную приватность.
На первом этаже расположены кухня открытого плана, гостиная и столовая зона, ванная комната, две крытые веранды, балкон и крытая парковка с прямым доступом в дом.
На втором этаже — мастер-спальня с видом на море и горы, две дополнительные спальни, две ванные комнаты и две веранды: крытая и открытая. Открытая веранда (7 кв.м) не входит в официальную крытую площадь.
Сад на крыше представляет собой зону отдыха площадью 82 кв.м, включая 17 кв.м крытого пространства с кухней. По периметру установлены стеклянные и мраморные ограждения, что делает террасу комфортной для использования в течение всего года.
Вилла построена с применением технологии туннельной опалубки, обеспечивающей монолитную железобетонную конструкцию с высокой сейсмостойкостью. Стены выполнены из кирпича. Под основанием и бассейном проведено инъекционное упрочнение грунта для повышения стабильности.
Дом сертифицирован по классу энергоэффективности A (EPC) — проект ориентирован на снижение энергопотребления за счёт правильной ориентации здания, эффективного остекления и современных теплоизоляционных материалов.
Основные характеристики:
- Вид: Средиземное море и горы Троодос
- Энергоэффективность: класс A, получен сертификат (EPC)
- Инфраструктура комплекса: построены дороги и тротуары, подключено уличное освещение
- Площадь участка: 416,5 кв.м
- Ограждение по периметру: есть
- Внутреннее ограждение: стекло и мрамор
- Покрытие двора: плитка
- Озеленение: предусмотрено в проекте
- Бассейн: да
- Крытая парковка: да
- Общая крытая площадь: 286 кв.м
- Спальни: 3
- Ванные комнаты: 4
- Цокольный этаж (70 кв.м): помещение, ванная, гараж
- Первый этаж (117 кв.м): кухня, столовая, гостиная, ванная, балкон, 2 крытые веранды, крытая парковка
- Второй этаж (82 кв.м): мастер-спальня, 2 спальни, 2 ванные комнаты, крытая веранда; открытая веранда (7 кв.м не входит в общую площадь)
- Сад на крыше (82 кв.м): включает 17 кв.м крытого пространства с кухней; ограждение из стекла и мрамора
































