B295 - Отдельный дом с 3 спальнями в Дали, Никосия
Проект расположен в районе Калитея, Дали — к юго-востоку от Никосии, недалеко от археологического памятника древнего города Идалион. Это жилое строительство сочетает удобный доступ к городской инфраструктуре с близостью к природным и историческим достопримечательностям. До ближайшего пляжа в Ларнаке — всего 25 минут.
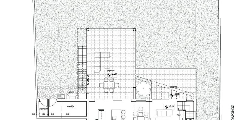
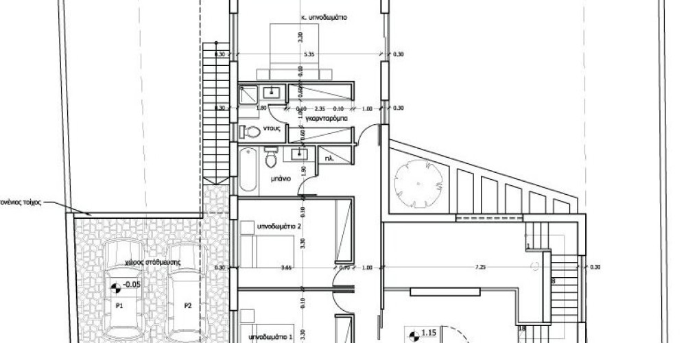
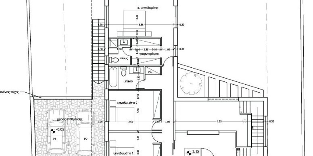
Каждый дом построен в два уровня и включает три спальни и три ванных комнаты, при этом главная спальня имеет отдельный санузел. Отделку интерьера, включая кухню, можно выбрать по своему вкусу. В домах установлены видеодомофон, камеры видеонаблюдения и охранная сигнализация. В планировке предусмотрены две крытые веранды, два крытых парковочных места, а также отдельное помещение для хранения и бойлерная.
Покупатели могут дополнительно выбрать отопление (природный газ, дизель, тёплые полы или накопительные радиаторы), систему охлаждения, бытовую технику и полную меблировку. Общая внутренняя площадь составляет 186,5 кв.м, площадь кладовой — 14 кв.м, площадь участка — 527 кв.м.
Проект поддерживает систему Net Metering и предусматривает установку фотоэлектрических панелей. Все дома сертифицированы по классу энергоэффективности A и поставляются с двухлетней гарантией от застройщика.
Основные характеристики:
- Расположение: Калитея, Дали
- Общая внутренняя площадь: 186,5 кв.м
- Площадь участка: 527 кв.м
- Этажность: 2
- Спальни: 3 (главная — с отдельным санузлом)
- Ванные комнаты: 3
- Веранды: 2 крытые
- Парковка: 2 крытых места
- Кладовая и бойлерная: 14 кв.м
- Кухня: на выбор покупателя
- Дополнительно: отопление, охлаждение, техника, мебель
- Безопасность: сигнализация, видеодомофон, камеры
- Солнечный водонагреватель
- Фотоэлектрическая система: поддержка Net Metering
- Гарантия: 2 года
Проект имеет сертификат энергоэффективности класса «A».
Юниты проданы либо зарезервированы.








