B297 - Таунхаус с 3 спальнями в районе Гери, Никосия
Проект расположен на границе районов Гери и Лациа, в тихом, новом жилом районе рядом с зелёной зоной. Локация сочетает уединение с удобной доступностью — до центра Никосии легко добраться, а поездка на автомагистраль займёт всего 5 минут.
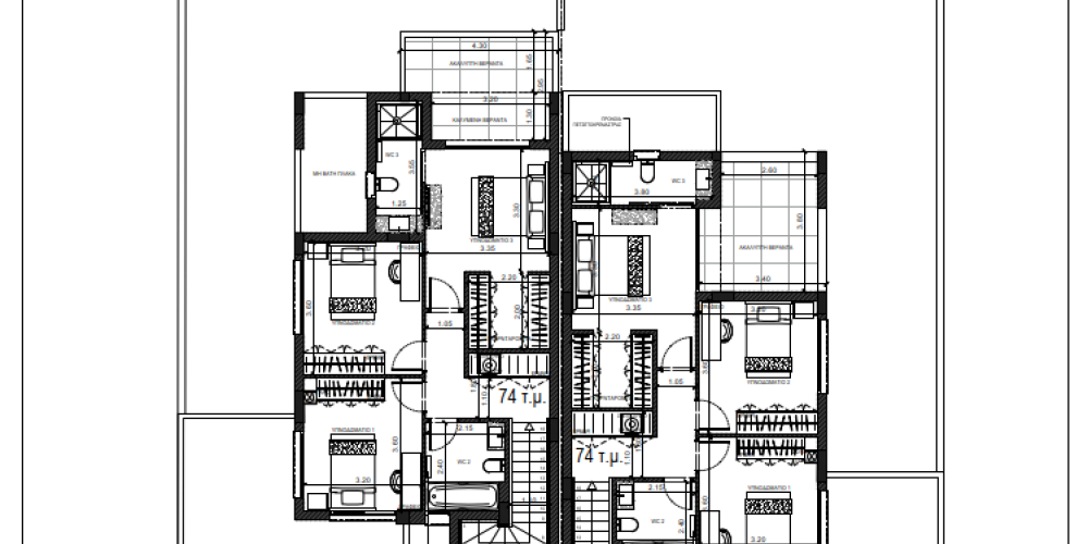
Каждый дом построен в два уровня и включает три спальни, при этом в главной спальне предусмотрена ванная комната. Планировка также включает гостевой туалет на первом этаже, две крытые веранды и два крытых парковочных места. Застройщик предоставляет гарантию сроком на 2 года.
Кухни изготавливаются по индивидуальному заказу покупателя из древесины пеликан. В стандартную комплектацию входят видеодомофон, охранная сигнализация и камеры видеонаблюдения. Дополнительно можно установить водяной тёплый пол с тепловым насосом, кондиционеры скрытого монтажа на первом этаже и сплит-системы во всех комнатах.
В проект включены фотоэлектрические панели. Дома строятся из теплоизоляционных кирпичей и снабжены сертифицированной внешней системой теплоизоляции на основе полистирола, что обеспечивает энергоэффективность зданий.
Основные характеристики:
- Расположение: на границе районов Гери и Лациа, рядом с зелёной зоной
- Удобный доступ до центра Никосии и автомагистрали (5 минут)
- Спальни: 3 (главная спальня с собственной ванной)
- Ванные комнаты: 2 + 1 гостевой туалет
- Этажность: 2
- Веранды: 2 крытые
- Парковка: 2 крытых парковочных места
- Кухня: на выбор покупателя (древесина пеликан)
- Система безопасности: сигнализация, видеодомофон, камеры
- Дополнительно: тёплый пол с тепловым насосом, кондиционеры скрытого монтажа (1 этаж), сплит-системы
- Фотоэлектрическая система: включена
- Теплоизоляция: сертифицированная система на основе полистирола
- Гарантия: 2 года
Энергоэффективность: сертификат EPC класса «A»
Юниты проданы либо зарезервированы.







