L65 - Современная 4-х спальная вилла с видами на море в Sfalatziotissa, Лимассол
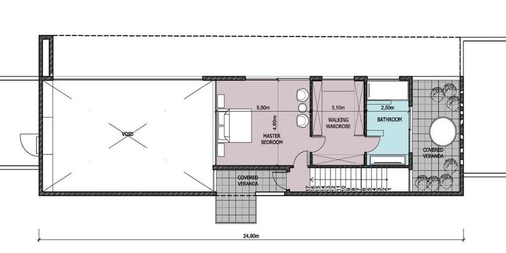
Эта вилла современного стиля расположена на холмах с видом на залив Лимассола. Она находится всего в 10 минутах езды от побережья и имеет легкий доступ к центру города и шоссе. Вилла будет спроектирована таким образом, чтобы соответствовала потребностям частного, современного образа жизни в современной обстановке. Доминируют просторные жилые помещения и главная спальня. Гостиная буде спроектирована с высокими потолками и видом на море. Построенная по высоким стандартам с использованием новейших технологий и качественных строительных материалов, внешний дизайн и отделка прекрасно сочетаются. В доме будут отопленные полы, автоматизация и кондиционеры. Вилла будет состоять из просторных спален, гостиной, закрытой солнечной террасы и балкона на первом этаже. Снаружи будет бассейн, окруженный садом и местом для барбекю.
Юниты проданы либо зарезервированы.
























