M29 - Квартиры в тихом жилом районе в Никосии
Статус недвижимости:
Строительство завершено
Расположение:
Кипр, Никосия, Агиос Дометиос, западная часть Никосии
Проект расположен в тихом жилом районе в Никосии. Это здание из двух отдельных блоков, предлагающее просторные квартиры от 1 до 4 спален. Лобби расположено в центре здания. Проект использует свой план для каждой из квартир, чтобы создать как длинные, так и просторные веранды. На крытой парковке есть легкий доступ ко всем складским помещениям квартир....
Проект расположен в тихом жилом районе в Никосии. Это здание из двух отдельных блоков, предлагающее просторные квартиры от 1 до 4 спален. Лобби расположено в центре здания. Проект использует свой план для каждой из квартир, чтобы создать как длинные, так и просторные веранды. На крытой парковке есть легкий доступ ко всем складским помещениям квартир.
Проект имеет сертификат энергоэффективности Class "A".
Площади и Цены
Юниты проданы либо зарезервированы.
Продано & Зарезервировано
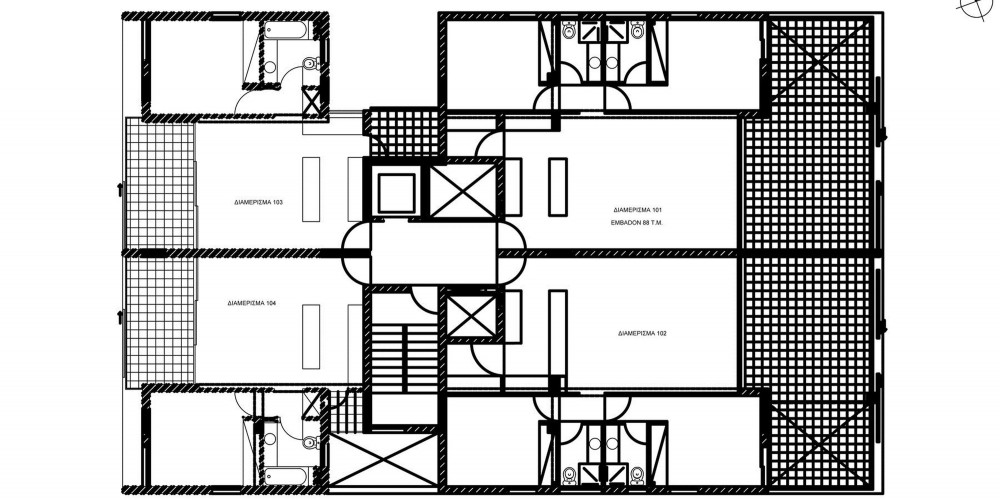
101
- Апартаменты
Спальни:
2
Площадь:
122 m2
Продано
102
- Апартаменты
Спальни:
2
Площадь:
122 m2
Продано
103
- Апартаменты
Спальни:
1
Площадь:
68 m2
Продано
104
- Апартаменты
Спальни:
1
Площадь:
66 m2
Продано
204
- Апартаменты
Спальни:
1
Площадь:
66 m2
Продано
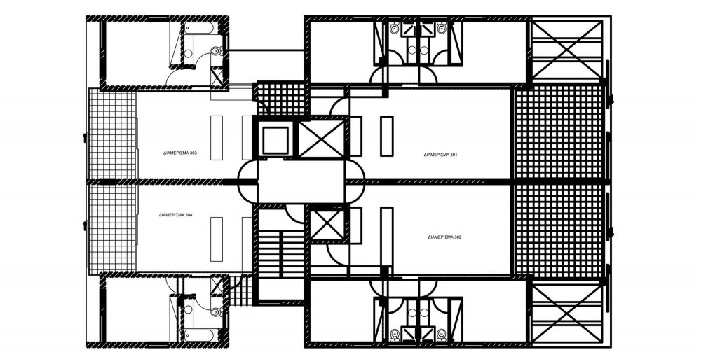
301
- Апартаменты
Спальни:
2
Площадь:
111 m2
Продано
302
- Апартаменты
Спальни:
2
Площадь:
111 m2
Продано
303
- Апартаменты
Спальни:
3
Площадь:
148 m2
Продано
304
- Апартаменты
Спальни:
1
Площадь:
66 m2
Продано
401
- Апартаменты
Спальни:
4
Площадь:
248 m2
Продано
Расположение на карте
Схемы и планы
















