M47 - 3-х спальный дом в жилом районе, в 300 метрах до моря
Статус недвижимости:
Строительство завершено
Расположение:
Кипр, Лимассол (восточная часть Лимассола).
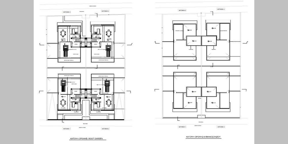
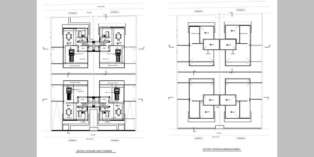
Этот проект из четырех 3-спальных домов расположен в районе Агиос Афанасиос. Дома состоят из гостиной, кухни с гостиной на первом этаже и 3 спален (одна с душем), ванной комнаты (туалетов для гостей) и балконов на 1 этаже. Есть крытая и открытая парковка.
Площади и Цены
Юниты проданы либо зарезервированы.
Продано & Зарезервировано
1
- Дом
Спальни:
3
Площадь:
154 m2
Продано
2
- Дом
Спальни:
3
Площадь:
154 m2
Продано
3
- Дом
Спальни:
3
Площадь:
154 m2
Продано
4
- Дом
Спальни:
3
Площадь:
160 m2
Продано
Расположение на карте
Схемы и планы
Погода
27
Октября
2025







