N19 - Квартиры на весь этаж в 800 метрах от парка Дасуди
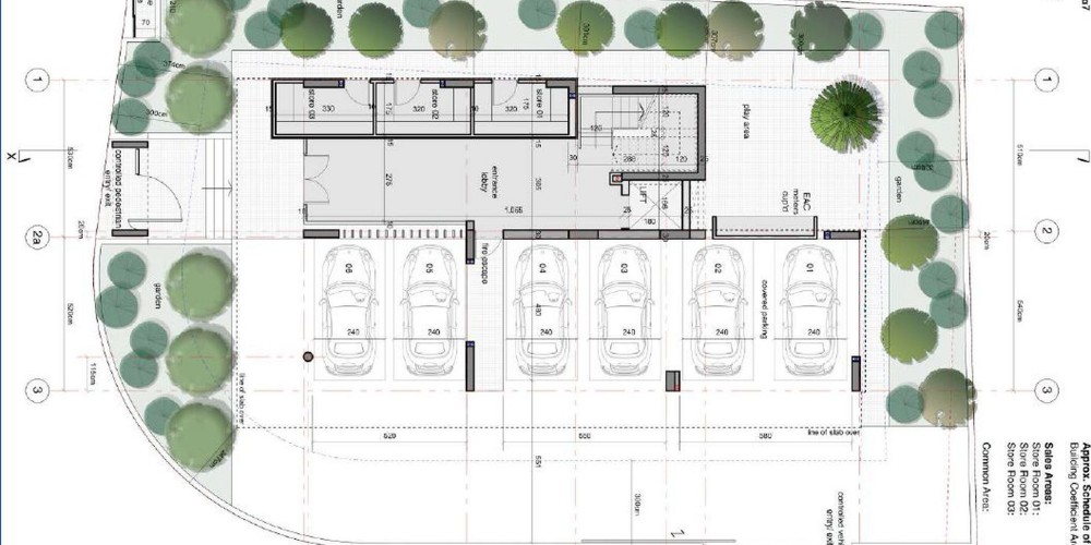
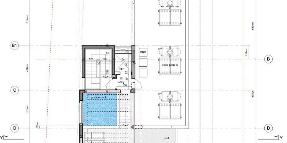
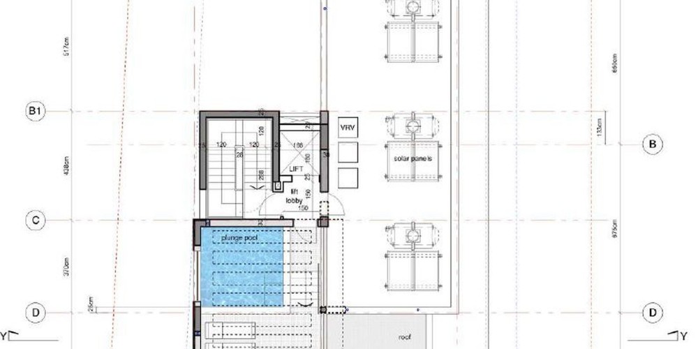
Проект расположен в тихом районе в Айос Афанасиос, рядом с удобствами (супермаркеты, рестораны, школы и т. д.) и в нескольких минутах ходьбы от пляжа и парка «Дасуди» вдоль набережной и торговых точек и ресторанов на улице Колонакиу. Проект обеспечивает легкий доступ к центру города Лимассола и шоссе, которое, в свою очередь, обеспечивает быструю связь с аэропортами и остальной частью острова. В непосредственной близости находится большая ухоженная общественная зеленая зона, расположенная по диагонали через улицу к юго-востоку от проекта, что обеспечивает непрерывный вид на море с верхних этажей здания. Сам проект состоит из трех этажей. На первом этаже будет просторный вестибюль, крытая парковка на 6 автомобилей (2 парковочных места на квартиру) и 3 кладовые. Контролируемые точки входа/выхода в/из здания расположены как для транспорта, так и для пешеходов. На этажах выше расположены 3 квартиры. По одной просторной квартире с тремя спальнями на этаж. Квартира на третьем этаже имеет увеличенную высоту от пола до потолка в гостиной и обеденной зоне и сад на крыше, включая зону где можно полежать на солнце и бассейн.
Проект имеет сертификат энергоэффективности Class "B"Юниты проданы либо зарезервированы.
















