O53 - Односпальные квартиры недалеко от центра Никосии
Рядом с центром Никосии будет строится новое трехэтажное современное здание с современными квартирами. Квартиры идеально будут подходить для семей и отдельных лиц, которые хотят жить в оживленном районе, окруженном удобствами и услугами. Проект находится в непосредственной близости от школ, бизнес-центров и магазинов, с легким доступом ко всем районам города и особенно к центру города.
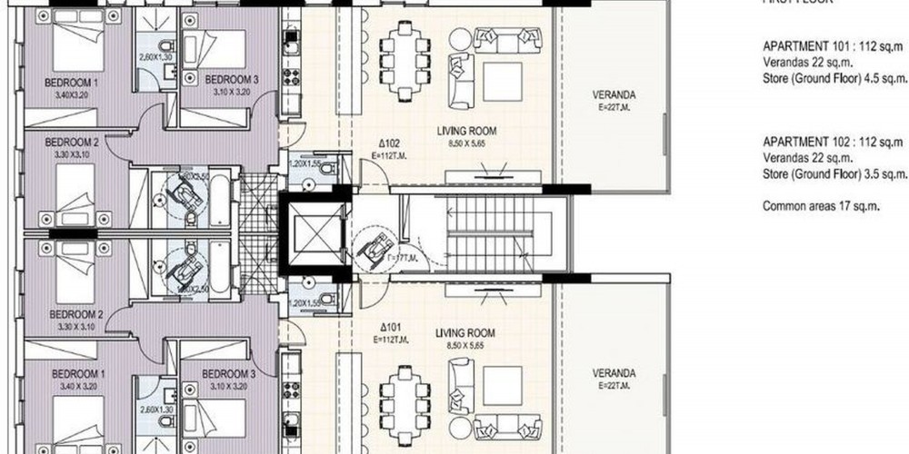
Здание состоит из односпальных квартир, которые имеют просторные жилые зоны, крытые веранды и парковку. Квартиры будут иметь центральное отопление полов (с тепловым насосом) и кондиционеры. Здание будет обслуживаться современным лифтом, а фасад здания будет отличаться декоративными алюминиевыми панелями, которые будут служить в качестве затенения.
Проект имеет сертификат энергоэффективности Class "A".
Юниты проданы либо зарезервированы.














