R47 - 2-х спальные квартиры в Лимассоле
Статус недвижимости:
Строительство завершено
Расположение:
Кипр, Лимассол, Район Айос Георгиос (перекресток в Троодос)
Проект расположен в районе Агиос Георгиос (где находится стадион Tsirio). Этот проект состоит из 8 квартир и 3 этажей.
Проект находится в удобном месте, рядом с Американской академией, медицинскими учреждениями и другими удобствами, необходимыми для комфортного проживания.
Проект имеет сертификат энергоэффективности Class "A+".
Площади и Цены
Юниты проданы либо зарезервированы.
Продано & Зарезервировано
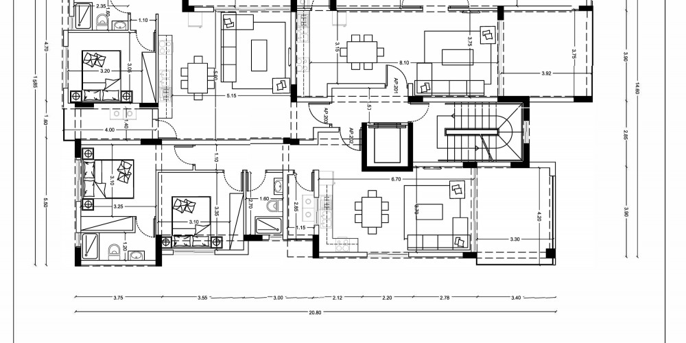
101
- Апартаменты
Спальни:
2
Площадь:
100 m2
Продано
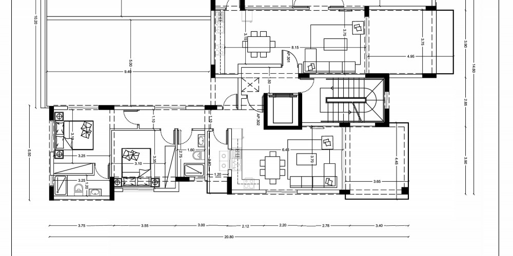
102
- Апартаменты
Спальни:
2
Площадь:
105 m2
Продано
103
- Апартаменты
Спальни:
2
Площадь:
99 m2
Продано
201
- Апартаменты
Спальни:
2
Площадь:
95 m2
Продано
202
- Апартаменты
Спальни:
2
Площадь:
97 m2
Продано
203
- Апартаменты
Спальни:
2
Площадь:
99 m2
Продано
301
- Пентхаус
Спальни:
2
Площадь:
151 m2
Продано
302
- Пентхаус
Спальни:
2
Площадь:
147 m2
Продано
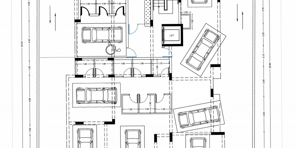
Расположение на карте
Схемы и планы











