R97 - Квартиры и офис в районе Полемидия, Лимассол
Статус недвижимости:
Строительство завершено
Расположение:
Кипр, Лимассол, Полемидия (северо-западный район Лимассола)
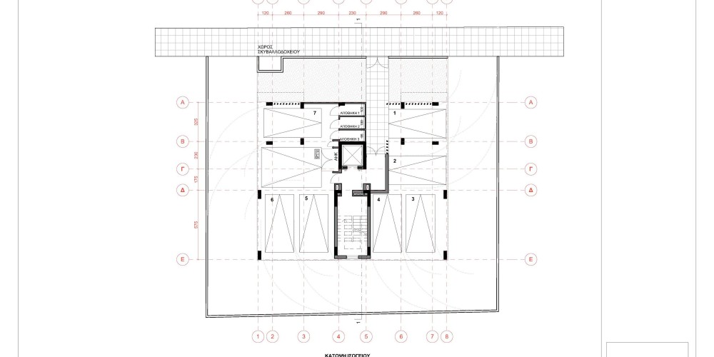
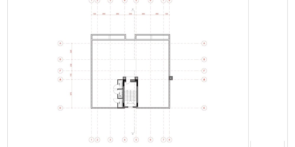
Проект расположен в непосредственной близости от торгового центра IKEA/JUMBO. Весь первый этаж состоит из 1 квартиры с 4 спальнями (также из квартиры можно сделать офис). На остальных этажах будут расположены квартиры с 1, 2 и 3 спальнями. Каждая квартира будет иметь 1 парковочное место и кладовую.
Здание будет обслуживаться общей лестницей, а так...
Проект расположен в непосредственной близости от торгового центра IKEA/JUMBO. Весь первый этаж состоит из 1 квартиры с 4 спальнями (также из квартиры можно сделать офис). На остальных этажах будут расположены квартиры с 1, 2 и 3 спальнями. Каждая квартира будет иметь 1 парковочное место и кладовую.
Здание будет обслуживаться общей лестницей, а также лифтом.
Проект имеет сертификат энергоэффективности Class "A".
Площади и Цены
Юниты проданы либо зарезервированы.
Продано & Зарезервировано
101
- Офис
Спальни:
Площадь:
192 m2
Продано
201
- Апартаменты
Спальни:
3
Площадь:
135 m2
Продано
202
- Апартаменты
Спальни:
1
Площадь:
84 m2
Продано
301
- Апартаменты
Спальни:
2
Площадь:
105 m2
Продано
302
- Апартаменты
Спальни:
2
Площадь:
105 m2
Продано
Расположение на карте
Схемы и планы












