S008 - Виллы в деревне Пила, Ларнака
Статус недвижимости:
Строительство завершено
Расположение:
Кипр, Ларнака, Pyla (северо-восточный пригород Ларнаки)
Эти дома расположены не более чем в 5 минутах езды от центра города Ларнака, в жилом районе.
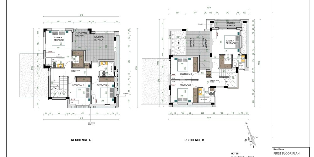
Дома будут иметь жилые помещения открытой планировки, которые могут быть изменены в соответствии с потребностями покупателя, кухню, гостинную, гостевой туалет, главную спальню с ванной комнатой и главную ванную комнату.
В проекте используется сочет...
Эти дома расположены не более чем в 5 минутах езды от центра города Ларнака, в жилом районе.
Дома будут иметь жилые помещения открытой планировки, которые могут быть изменены в соответствии с потребностями покупателя, кухню, гостинную, гостевой туалет, главную спальню с ванной комнатой и главную ванную комнату.
В проекте используется сочетание стекла, камня и дерева.
Проект имеет сертификат энергоэффективности Class "A".
Площади и Цены
Юниты проданы либо зарезервированы.
Продано & Зарезервировано
1
- Вилла
Спальни:
5
Площадь:
278 m2
Продано
2
- Вилла
Спальни:
5
Площадь:
287 m2
Зарезервировано
Расположение на карте
Схемы и планы
Погода
27
Октября
2025








