S147 - 4-х спальный дом в Лимассоле, район Экали
Статус недвижимости:
Строительство завершено
Расположение:
Кипр, Лимассол, Ekali (район в северной части Лимассола)
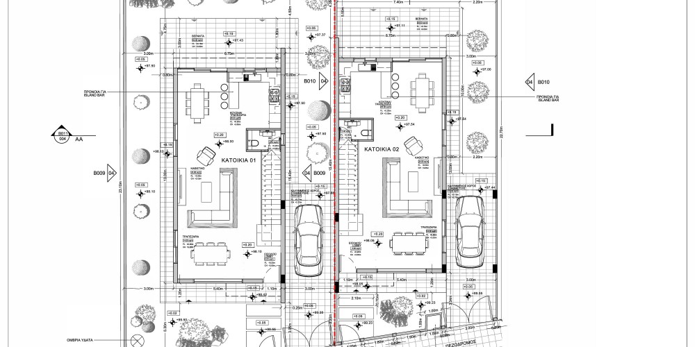
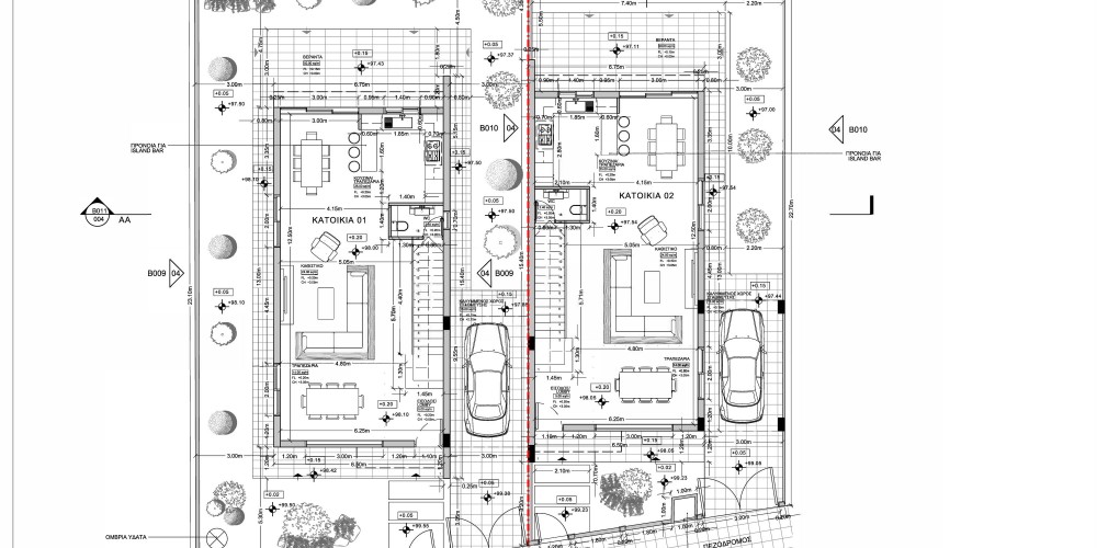
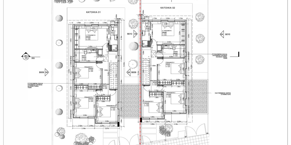
Дом расположен в районе Агия Фила, в Лимассоле. Он будет состоять из 4 спален.
Характеристики дома:
Снабжение для кондиционеров
Крытая парковка
Крытая веранда
Снабжение для электрических ворот
Предусмотрено электрическое отопление
Встроенные шкафы
Теплоизоляция
Сн...
Дом расположен в районе Агия Фила, в Лимассоле. Он будет состоять из 4 спален.
Характеристики дома:
- Снабжение для кондиционеров
- Крытая парковка
- Крытая веранда
- Снабжение для электрических ворот
- Предусмотрено электрическое отопление
- Встроенные шкафы
- Теплоизоляция
- Снабжение для интернета
- Снабжение для спутниковой антенны
- Домофон
Проект имеет сертификат энергоэффективности Class "B".
Площади и Цены
Юниты проданы либо зарезервированы.
Продано & Зарезервировано
2
- Дом
Спальни:
4
Площадь:
219 m2
Продано
Расположение на карте
Схемы и планы
Погода
26
Октября
2025








