S550 - Коммерческое здание премиум-класса в Лимассоле (район Като Полемидия)
Статус недвижимости:
Строительство завершено
Расположение:
Кипр, Лимассол, Като Полемидия (пригород к северо-западу от Лимассола)
Роскошное коммерческое здание премиум-класса в Пародос Анагностара, Като Полемидия.
Благодаря своей архитектуре и изысканному дизайну этот центр создает основу для успеха.
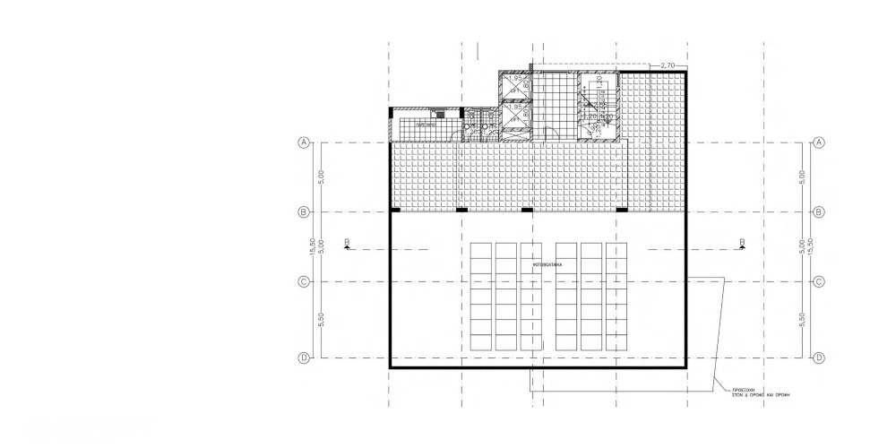
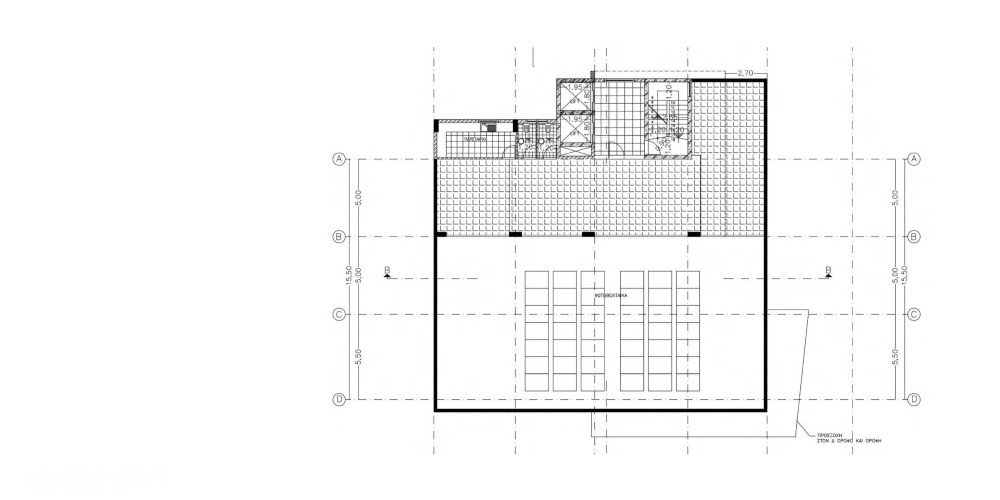
Имея 95 парковочных мест, все удобства под рукой, проект обеспечивает беспрепятственное посещение для ваших клиентов. Просторные и универсальные помещения площадью более...
Роскошное коммерческое здание премиум-класса в Пародос Анагностара, Като Полемидия.
Благодаря своей архитектуре и изысканному дизайну этот центр создает основу для успеха.
Имея 95 парковочных мест, все удобства под рукой, проект обеспечивает беспрепятственное посещение для ваших клиентов. Просторные и универсальные помещения площадью более 2500 кв.м. предоставляют достаточно места для процветания вашего бизнеса.
Проект имеет сертификат энергоэффективности Class "B".
Площади и Цены
Юниты проданы либо зарезервированы.
Продано & Зарезервировано
BC
- Коммерческое здание
Спальни:
Площадь:
2450 m2
Продано
1F
- Офис
Спальни:
Площадь:
467 m2
Продано
2F
- Офис
Спальни:
Площадь:
485 m2
Продано
3F
- Офис
Спальни:
Площадь:
480 m2
Продано
4F
- Офис
Спальни:
Площадь:
515 m2
Продано
5F
- Офис
Спальни:
Площадь:
488 m2
Продано
Расположение на карте
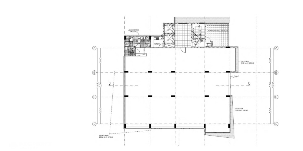
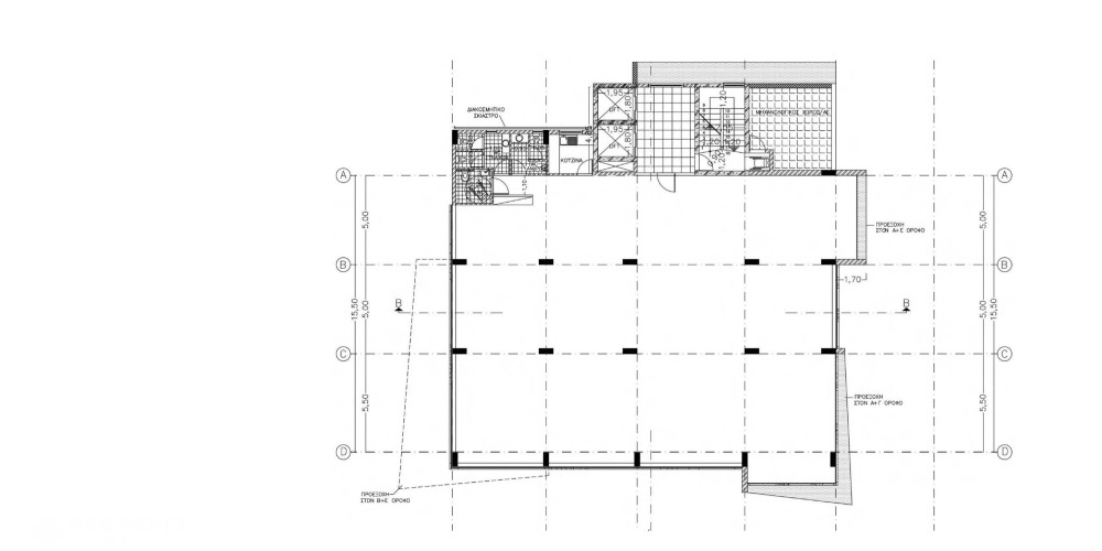
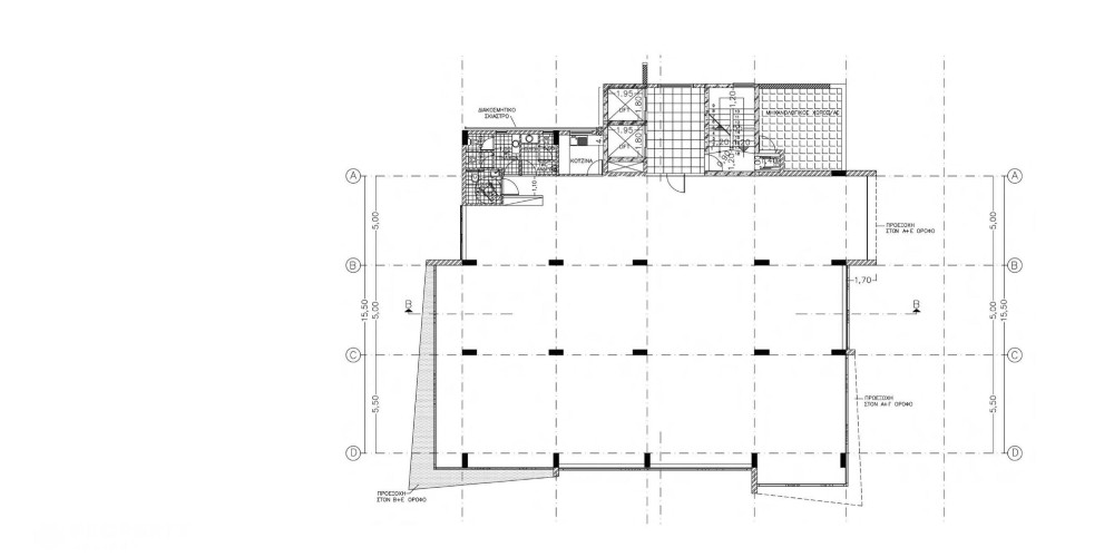
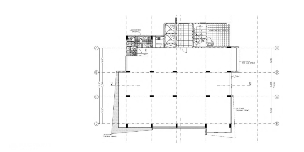
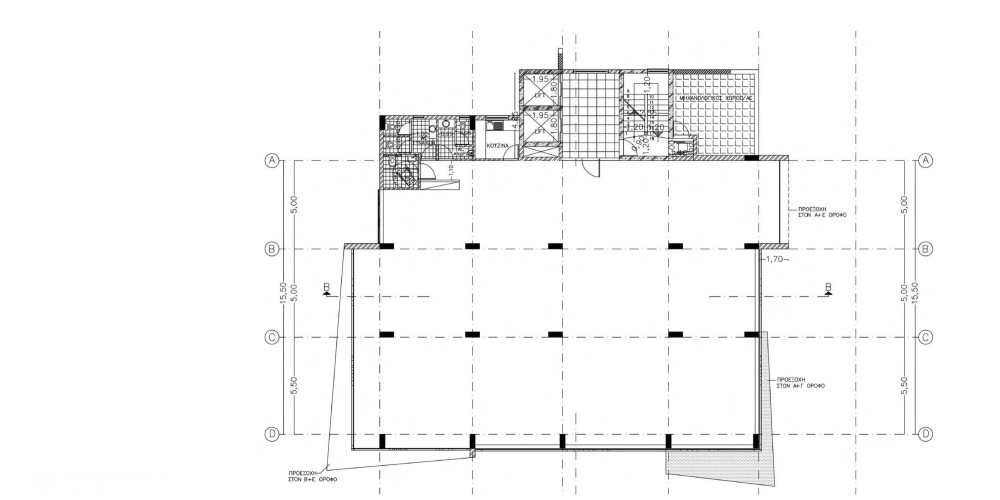
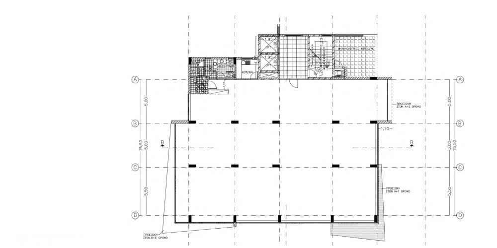
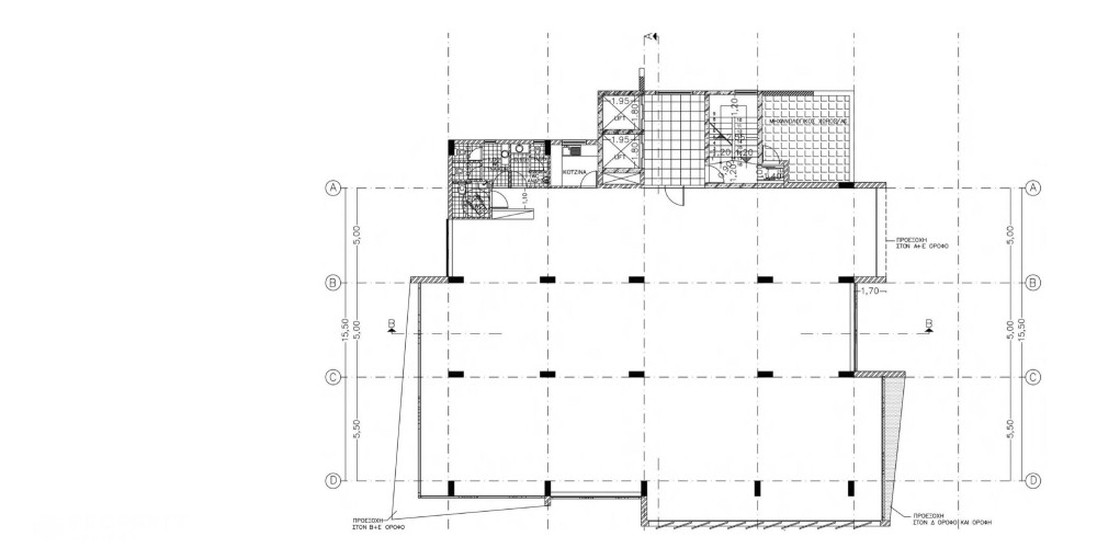
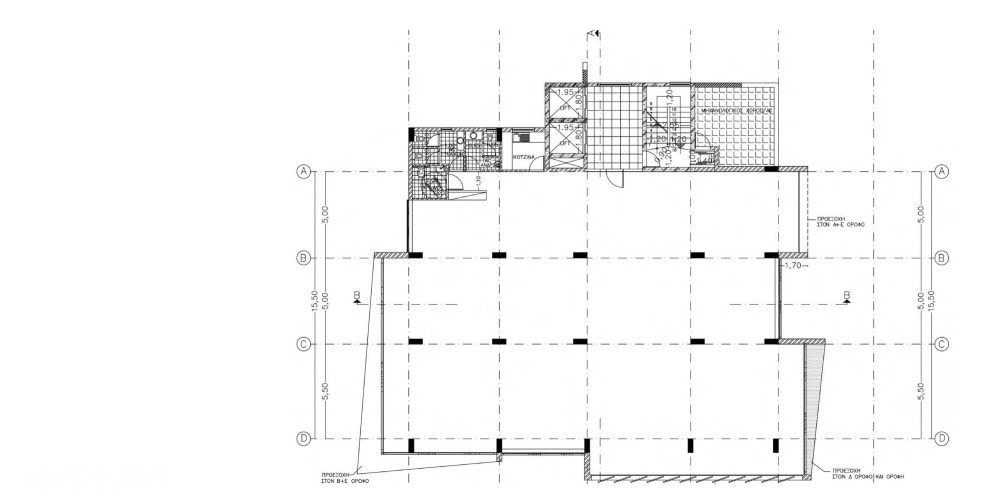
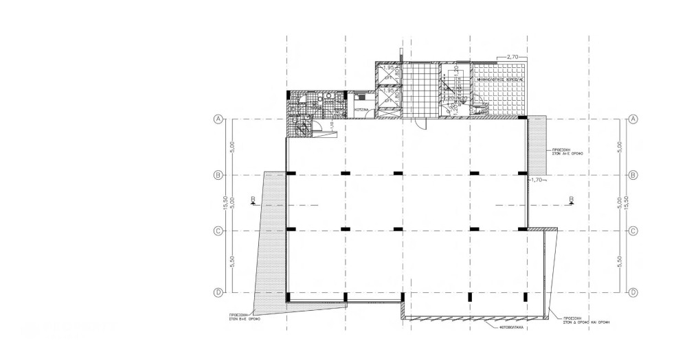
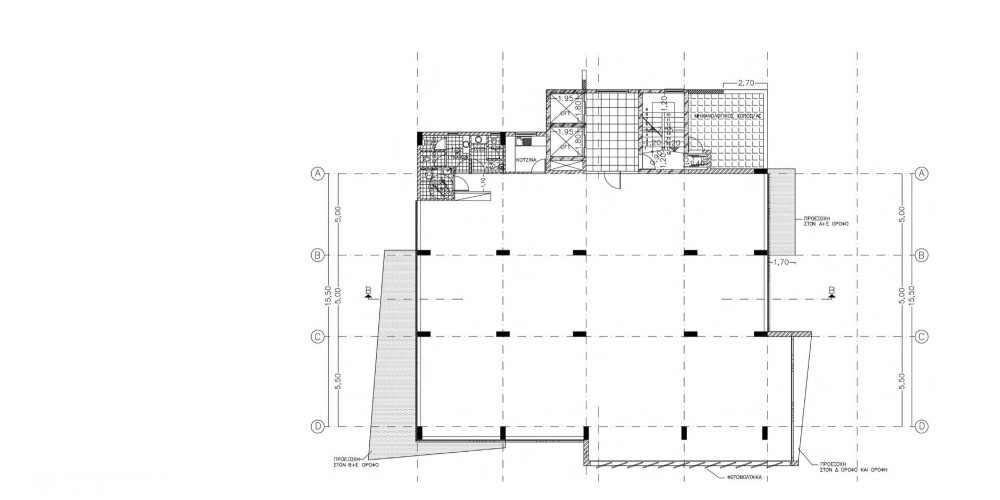
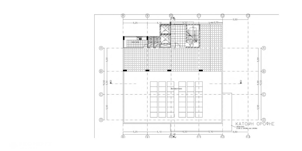
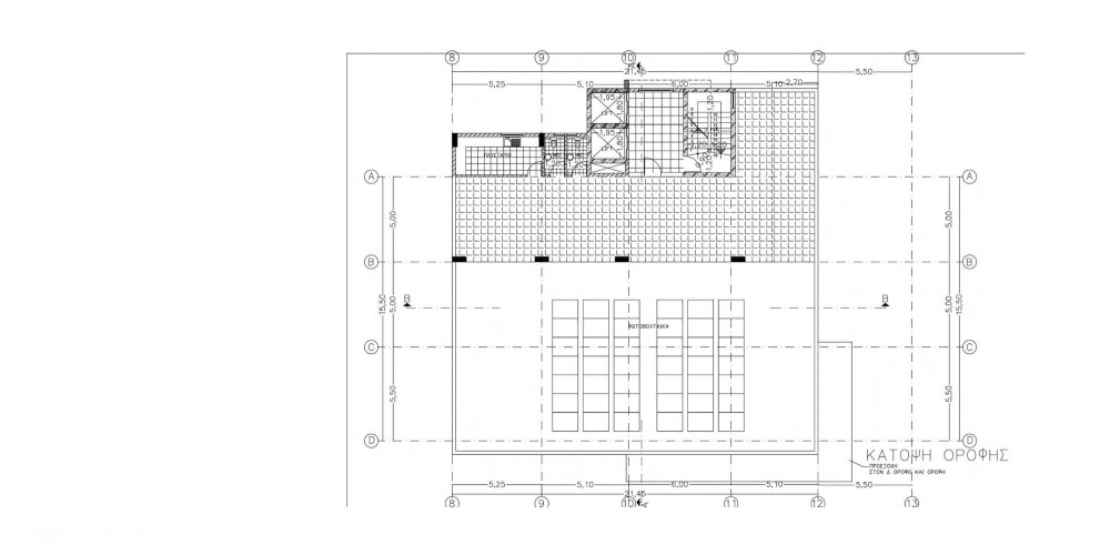
Схемы и планы











