S972 - Жилое здание всего из 4 квартир в Лимассоле
Статус недвижимости:
Завершение строительства - Декабрь 2027г.
Расположение:
Кипр, Лимассол, Айос Апостолос (район недалеко от нового морского порта)
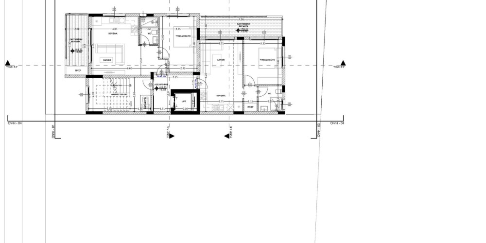
Трехэтажное жилое здание с квартирами с 1 и 2 спальнями, расположенное всего в 10 минутах езды от центра Лимассола. Проект находится в пешей доступности от основных объектов инфраструктуры.
В здании будет всего 4 квартиры с просторными верандами. Каждая квартира будет иметь кладовое помещение и парковочное место.
Проект имеет сертификат эн...
Трехэтажное жилое здание с квартирами с 1 и 2 спальнями, расположенное всего в 10 минутах езды от центра Лимассола. Проект находится в пешей доступности от основных объектов инфраструктуры.
В здании будет всего 4 квартиры с просторными верандами. Каждая квартира будет иметь кладовое помещение и парковочное место.
Проект имеет сертификат энергоэффективности Class "A".
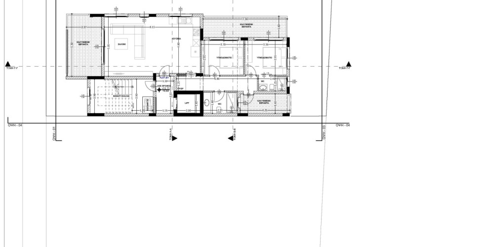
Площади и Цены
101
- Апартаменты
Спальни:
1
Площадь:
60 m2
€ 210,000 + НДС
Внутренняя Площадь:
50 m2
Крытая веранда:
10 m2
Цена за кв.м:
€ 3,500
Кладовая:
Да
Парковка:
1
Дополнительная информация
×
102
- Апартаменты
Спальни:
1
Площадь:
62 m2
€ 210,000 + НДС
Внутренняя Площадь:
50 m2
Крытая веранда:
12 m2
Цена за кв.м:
€ 3,387
Кладовая:
Да
Парковка:
1
Дополнительная информация
×
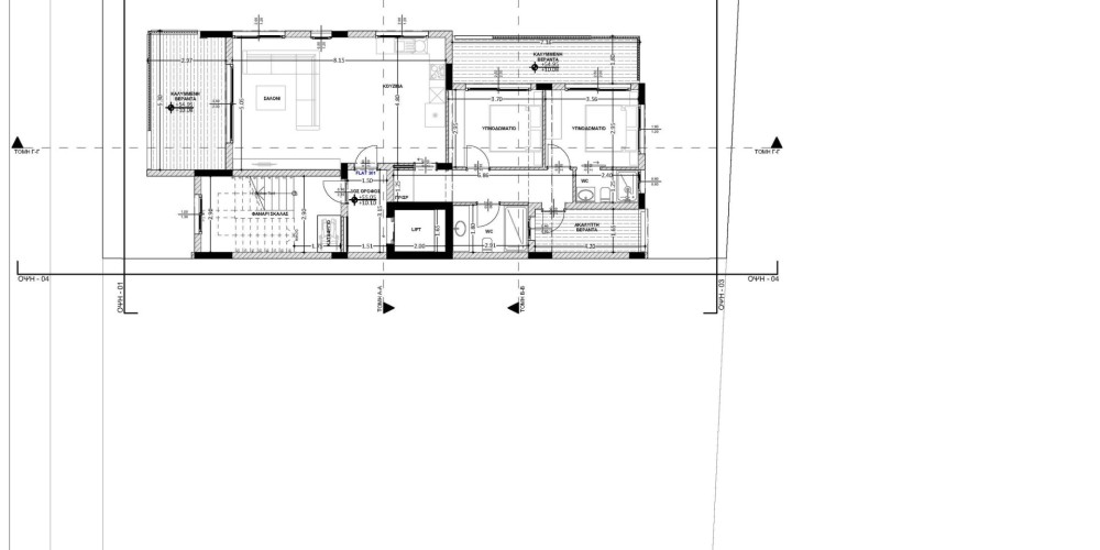
301
- Апартаменты
Спальни:
2
Площадь:
124 m2
€ 360,000 + НДС
Внутренняя Площадь:
90 m2
Крытая веранда:
27 m2
Открытая веранда:
7 m2
Цена за кв.м:
€ 2,903
Кладовая:
Да
Парковка:
1
Дополнительная информация
×
Продано & Зарезервировано
201
- Апартаменты
Спальни:
2
Площадь:
124 m2
Продано
Расположение на карте
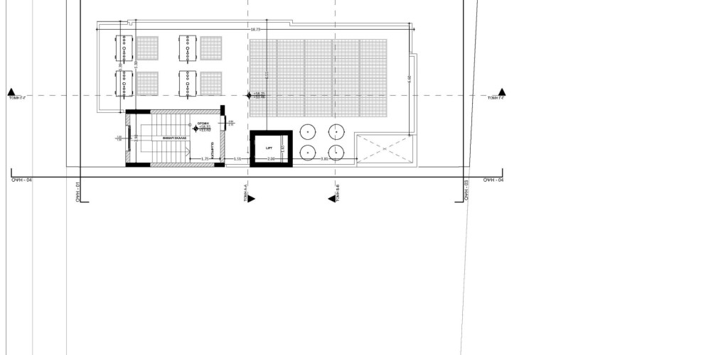
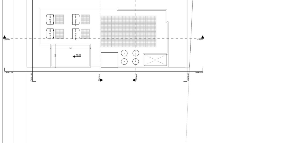
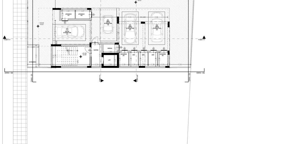
Схемы и планы











