P49 - Apartments in the center of Limassol
The project is situated in the centre of Limassol. Located at the city’s most creative, culturally rich neighbourhoods, the development speaks to those with passion for art and embraces the carefree who enjoy a casually luxurious lifestyle.
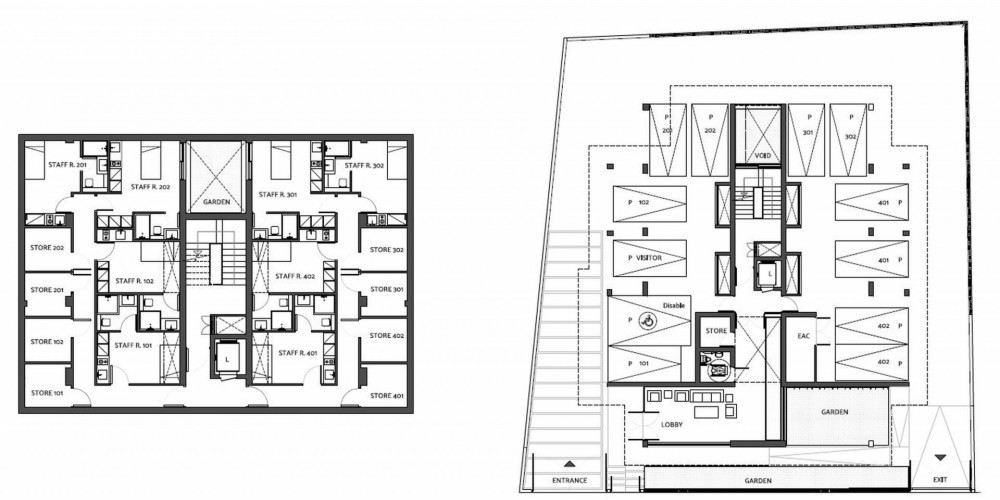
This building has been meticulously designed with quality and elegance in mind. The location gives you access to class shopping, dining, culture and nightlife – offering true city living. This boutique, urban-chic apartment building consists of 6 three-bedroom apartments across the first, second, and third floors, and 2 three-bedroom penthouses with a roof garden and a swimming pool provision on the fourth and fifth floors.
The Project has EPC certificate with "A" Energy Efficiency Rating.
All units sold or reserved.
















