Q18 - Offices in the center of Limassol
Property status:
Project delivered
Location:
Cyprus, Limassol, Columbia (Eastern district of Limassol)
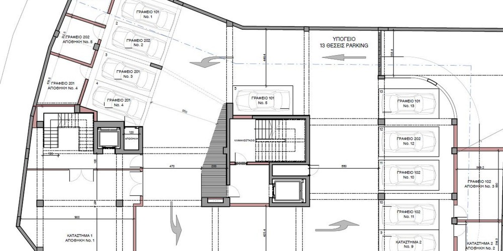
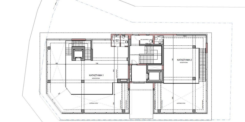
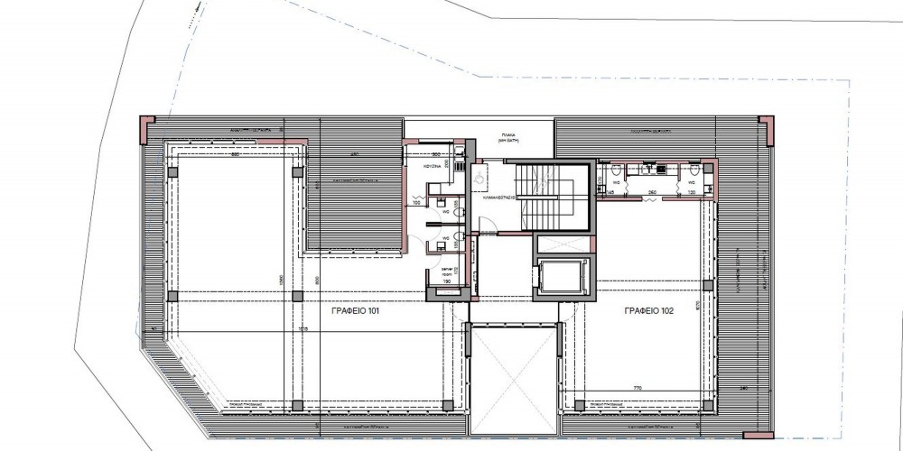
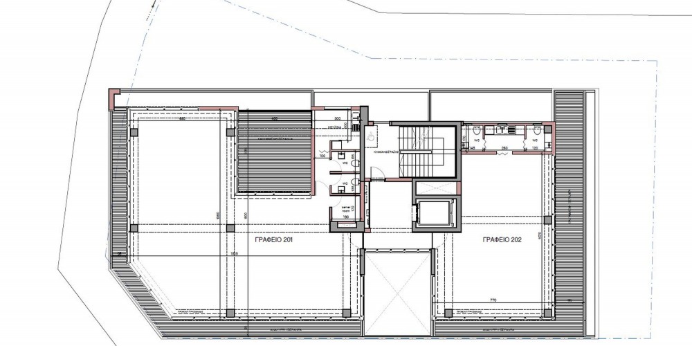
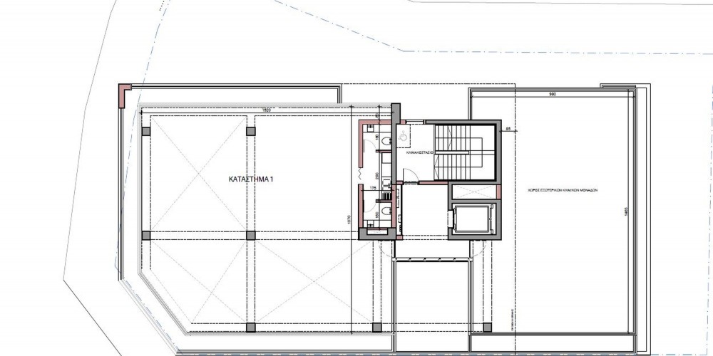
Project consists of shops and offices situated in the center of Limassol. The building will include uncovered and underground parking places and store rooms.
SPECIFICATIONS:• 3 storey building, contemporary design• 2 ground floor shops with mezzanine• 2 floors offices (2 offices each floor)• Underground ...
Project consists of shops and offices situated in the center of Limassol. The building will include uncovered and underground parking places and store rooms.
SPECIFICATIONS:
• 3 storey building, contemporary design
• 2 ground floor shops with mezzanine
• 2 floors offices (2 offices each floor)
• Underground parking places
The Project has EPC certificate with "B" Energy Efficiency Rating.
Area & Prices
All units sold or reserved.
Sold & Reserved Properties
1
- Shop
Beds:
Area:
658 m2
Sold
2
- Shop
Beds:
Area:
243 m2
Sold
101
- Office
Beds:
Area:
321 m2
Sold
102
- Office
Beds:
Area:
197 m2
Sold
201
- Office
Beds:
Area:
305 m2
Sold
202
- Office
Beds:
Area:
168 m2
Sold
Map Location
Site Map & Floor Plans










