B037 - 3-bedroom detached villas with side sea views on a hill in Konia
Property status:
Delivery - December 2026
Location:
Cyprus, Paphos, Konia (the Eastern suburb of Paphos)
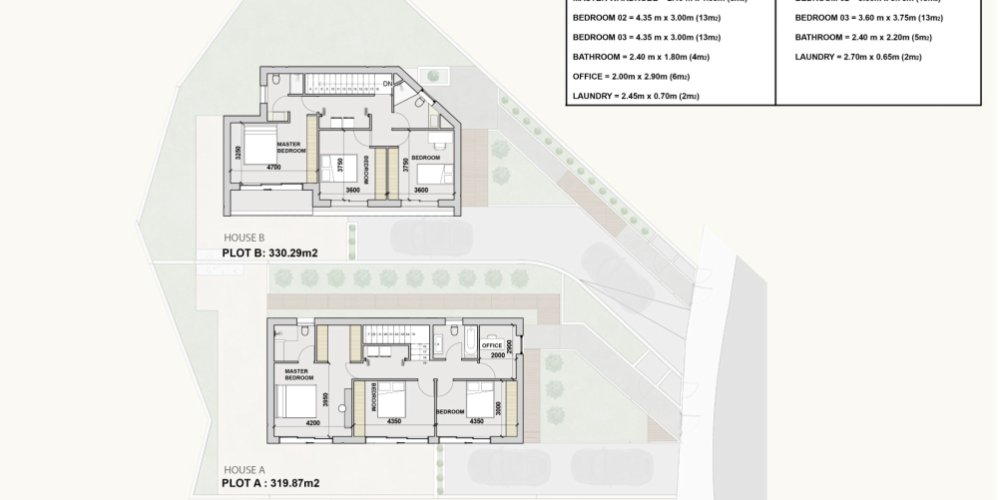
Two detached villas designed for comfort and functionality, each featuring 3 bedrooms and 3 bathrooms. One villa includes an additional study room on the first floor. Located on a peaceful hill in Konia, the project offers sea views, easy highway access, and proximity to key amenities.
...
Two detached villas designed for comfort and functionality, each featuring 3 bedrooms and 3 bathrooms. One villa includes an additional study room on the first floor. Located on a peaceful hill in Konia, the project offers sea views, easy highway access, and proximity to key amenities.
With a focus on energy efficiency and modern living, the villas come with provisions for underfloor heating, split A/C, an electric gate, an alarm system with cameras, and photovoltaics. High-quality materials and thermal-insulated window frames enhance durability and sustainability, making this an excellent choice for families and investors.
The main features of the project and the units:
- 3-bedroom, 3-bathroom detached villas
- Additional study room in one villa
- Sea views and prime location in Konia
- Thermal-insulated window frames
- High-standard woodworks and sanitary ware
- Provisions for underfloor heating, A/C, alarm system, electric gate & camera door
The Project has EPC certificate with "A" Energy Efficiency Rating.
Area & Prices
B
- Villa
Beds:
3
Area:
198 m2
Plot:
330 m2
€ 440,000 + VAT
Inside Area:
153 m2
Covered Veranda:
15 m2
Uncovered Veranda:
30 m2
Price per sq.m:
€ 2,222
Additional Information
×
Sold & Reserved Properties
A
- Villa
Beds:
3
Area:
242 m2
Sold
Map Location
Site Map & Floor Plans
Weather
25
November
2025







