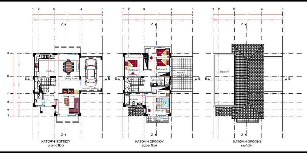
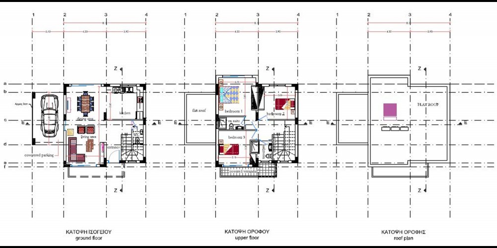
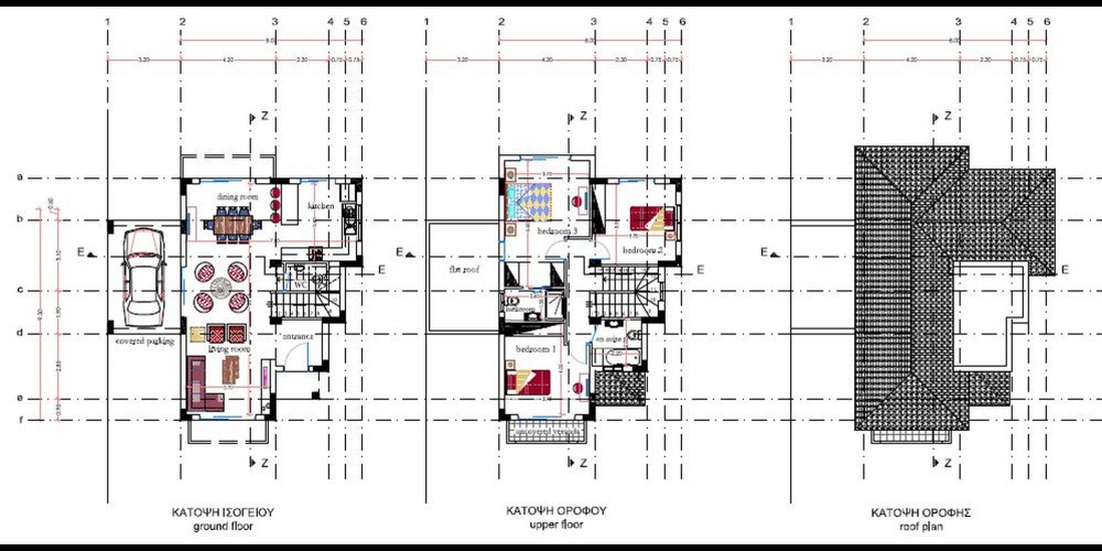
N31 - Complex of contemporary villas in Konia, Paphos
The rural location of these villas ensures tranquillity and seclusion, yet they are just a few minutes’ drive from the city of Paphos. In addition, the location provides easy access to the motorway (2km), easy access to Paphos International Airport and other major towns of the island. Situated on the outskirts of Paphos, the area is surrounded by traditional villages with their selection of local taverns. The schools are also a few minutes away from the project. The complex comprises 20 private detached three-bedroom villas with a large landscaped communal garden. The contemporary designs offer their residents privacy and relaxation. Choice of preferred architectural design with high quality finishes, offers a beautiful home in a unique setting.
The Project has EPC certificate with "A" Energy Efficiency Rating.






















