B162 - 2-bedroom apartments in Lakatamia, near Nicosia Mall
This residential project is situated in a newly developed area of Lakatamia, within walking distance of Nicosia Mall. The location provides convenient urban access while remaining residential in character. The design prioritizes practical layouts, energy efficiency, and contemporary functionality.
The development includes two floors of apartments. The ground level features covered parking with infrastructure for electric vehicle charging, private storage rooms for each unit, a visitor reception area, a landscaped space, and ramp access for people with disabilities.
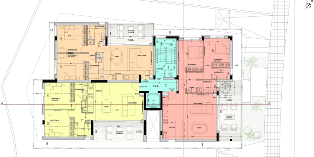
Each of the six apartments across the first and second floors offers two bedrooms and two bathrooms, with an open-plan layout that includes a living and dining area, a kitchen, a laundry zone, and a spacious covered veranda. Apartment 201 also includes private access to a roof garden. All units are designed with infrastructure in place for future photovoltaic panel installation.
The building is classified with an A energy efficiency rating, ensuring reduced utility costs and long-term sustainability.
The main features of the project and the units:
- Under construction
- Located in Lakatamia, near Nicosia Mall
- Two-bedroom, two-bathroom apartments
- Each unit includes a covered veranda
- Apartment 201 includes a private roof garden
- Covered parking space per apartment
- Private storage room per apartment
- Air conditioning (split-unit system) fully installed
- Photovoltaic panels for common areas
- Provisions for photovoltaic panels in each apartment
- Provision for electric vehicle charging in parking area
- High ceilings in all apartments
- Ramp and accessible entrance
The project has an EPC certificate with “A” energy efficiency rating.























