B295 - 3-bedroom detached house in Dali, Nicosia
Located in Kalithea, Dali—southeast of Nicosia and near the archaeological site of ancient Idalion—this residential development offers a balance between access to urban infrastructure and proximity to natural and historical landmarks. The nearest beach in Larnaca is only 25 minutes away.
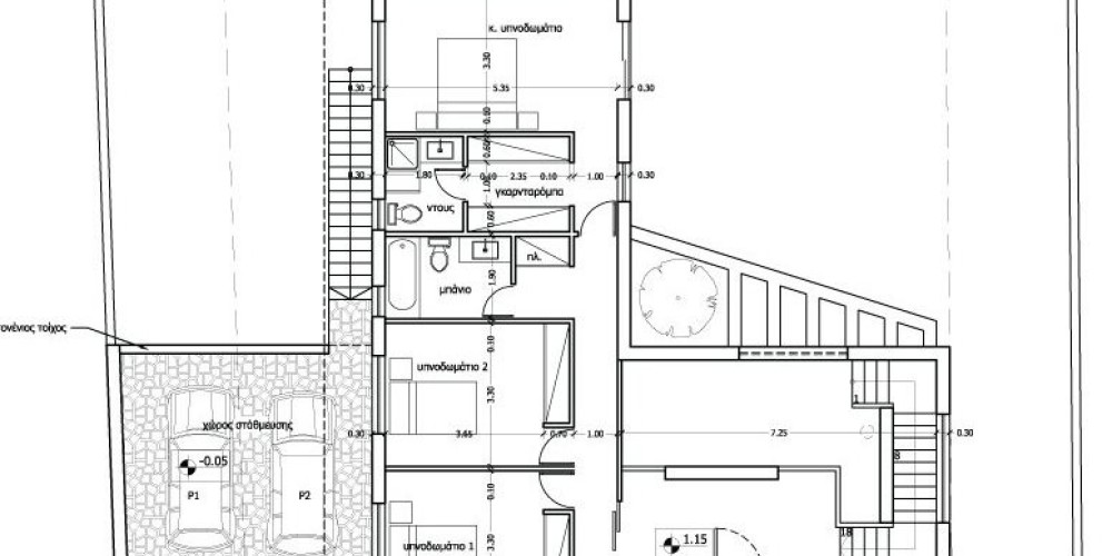
Each unit is designed across two levels and includes three bedrooms and three bathrooms, with the master bedroom featuring an ensuite layout. Interior finishes, such as the kitchen, can be selected according to buyer preferences. The homes are equipped with a video intercom, security cameras, and an alarm system. Two covered verandas and two covered parking spaces are included, as well as a designated storage and boiler area.
Buyers have the option to add extras, such as heating systems (natural gas, oil, underfloor, or storage heaters), air conditioning, electrical appliances, and full furnishing. The total internal area is 186.5 sq.m, with a 14 sq.m storage space and a 527 sq.m plot.
The development supports Net Metering and includes the installation of photovoltaic systems. All homes are certified with A-rated energy efficiency and come with a 2-year warranty from the developer.
The main features:
- Location: Kalithea, Dali
- Total internal area: 186.5 sq.m
- Plot size: 527 sq.m
- Floors: 2
- Bedrooms: 3 (ensuite master)
- Bathrooms: 3
- Verandas: 2 covered
- Parking: 2 covered spaces
- Storage & boiler room: 14 sq.m
- Kitchen: buyer’s choice
- Optional extras: heating, cooling, appliances, furniture
- Security: alarm system, video intercom, security cameras
- Solar water heater: included
- Photovoltaic system: Net Metering supported
- Warranty: 2 years
The project has an EPC certificate with “A” energy efficiency rating.
All units sold or reserved.








