G13 - Villas in Limassol (Mouttayiaka district)
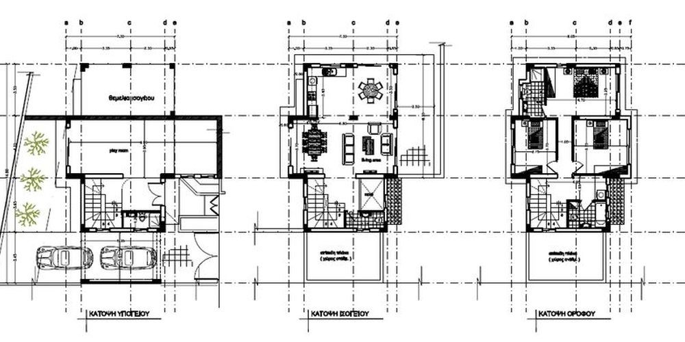
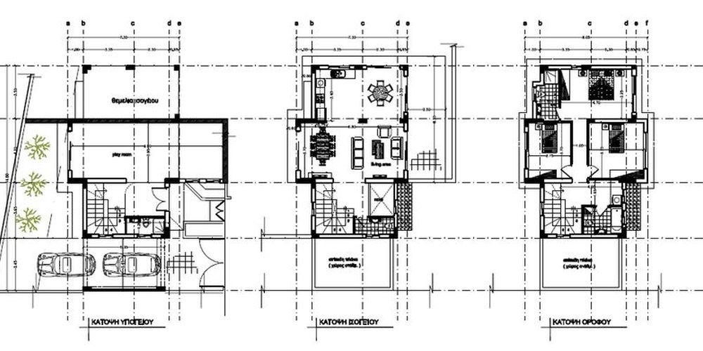
The villas are located in Moutagiaka area, a prime residential area of Limassol. The exclusive location offers lovely views of the sea and surrounding countryside and is close to the beach and all amenities. Supermarket and mini-markets, bakery, K-Cineplex cinema, bowling, beach cafes and restaurants are all within 5 minutes’ drive as well as Limassol City Centre. The complex consists of 12 detached houses, designed on 2 levels, offering sumptuous features and finishes, privacy and security as it is a gated complex. Open floor plans and picture windows provide a luxurious sense of light and space.The villas also enjoys beautiful sea views and communal landscaped gardens.
The Project has EPC certificate with "B+" Energy Efficiency Rating.
All units sold or reserved.


















