I66 - Modern complex with offices and apartments in Limassol, 200m to the sea
Property status:
Project delivered
Location:
Cyprus, Limassol, Potamos Germasogeias district
The building is located in the heart of tourist area with all amenities within a walking distance and the beach less then 200m away.It is constructed from only the finest materials featuring a modern design. The building consist of 5 open plan floors for sale as a whole or individual. Each floor is 413 m2 and could be design...
The building is located in the heart of tourist area with all amenities within a walking distance and the beach less then 200m away.
It is constructed from only the finest materials featuring a modern design.
The building consist of 5 open plan floors for sale as a whole or individual.
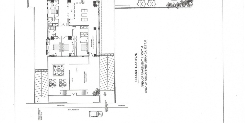
Each floor is 413 m2 and could be designed or into luxurious large offices or into 4 -5 bedroom luxurious apartment.
The building is at the stage that the client should choose his own materials for the finishes.
Can be sold also the hall building!
Area & Prices
All units sold or reserved.
Sold & Reserved Properties
1
- Office
Beds:
Area:
945 m2
Sold
2
- Office
Beds:
Area:
945 m2
Sold
3
- Apartment
Beds:
5
Area:
945 m2
Sold
4
- Apartment
Beds:
5
Area:
945 m2
Sold
5
- Apartment
Beds:
5
Area:
945 m2
Sold
Map Location
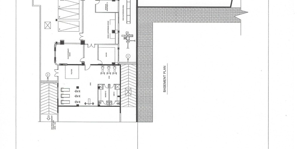
Site Map & Floor Plans










