M47 - 3 bedroom house in a residential area, in 300 meters from the sea
Property status:
Project delivered
Location:
Cyprus, Limassol (the Eastern part of Limassol).
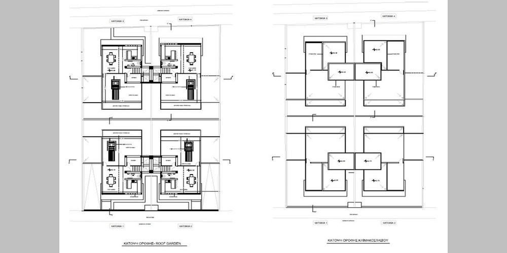
This project of four 3 bedroom houses is situated in Agios Athanasios area. The houses comprise living/dining area, guest toilets, kitchen with dining area on the ground floor and 3 bedrooms (one with en suite shower), a bathroom and balconies on the 1st floor. There is a covered and uncovered parking.
Area & Prices
All units sold or reserved.
Sold & Reserved Properties
1
- House
Beds:
3
Area:
154 m2
Sold
2
- House
Beds:
3
Area:
154 m2
Sold
3
- House
Beds:
3
Area:
154 m2
Sold
4
- House
Beds:
3
Area:
160 m2
Sold
Map Location
Site Map & Floor Plans







