M63 - A private 3 apartment building with mountain and sea views
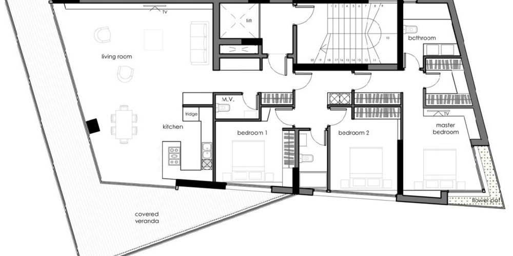
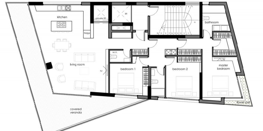
The two-story apartment 101, on the ground floor has an access through a private elevator to the outdoor pool and a private deck with garden, and two garage spaces. On the first floor the residence features a three-bedroom floor plan, with master suite, an open concept living space of modern kitchen and living area with private covered veranda. The apartment 201 on the second floor, also features a three-bedroom floor plan. The residents in this apartment will enjoy living in an open plan space of modern kitchen and living area with private covered veranda. The penthouse 301 features a three-bedroom apartment of open-plan living. On the upper level there is a private rooftop terrace with Jacuzzi type hot tub and outdoor sitting area. All tenants will be able to enjoy panoramic city views and will be able to maintain their health and wellbeing by working out at the communal gym of the residence.
The Project has EPC certificate with "B" Energy Efficiency RatingAll units sold or reserved.










