S523 - A collection of 15 houses with optional swimming pools in Kissonerga village (Paphos)
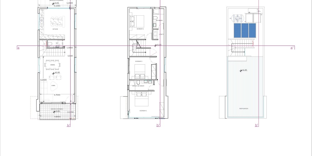
This collection of 15 two storey houses offers a range of 3 bedroom residences, each boasting 3 bathrooms. The properties feature optional swimming pools, adding a touch of luxury to the serene landscape.
The modern architectural approach blends the project seamlessly with the natural environment, creating spacious and efficient interior areas. The location is exceptional, providing unobstructed views of Paphos and the Mediterranean Sea from every single house. The village center is only 2 minutes away, offering convenience without compromising tranquility.
Whether you seek an investment opportunity or your private residence, is the ideal choice.
Embrace a modern lifestyle that harmoniously integrates with the natural beauty of Cyprus, promising not just a home but an exclusive retreat with breathtaking views and easy access to village amenities.
The Project has EPC certificate with "A" Energy Efficiency Rating.
All units sold or reserved.









