S548 - Modern Offices with Residential Units and a warehouse in Parklane area (Limassol)
Property status:
Delivery - December 2027
Location:
Cyprus, Limassol (the Eastern part of Limassol)
Mixed use development in the premier Monte Caputo area, featuring easy highway access, close proximity to the seafront and adjacent to 5-star hotels.
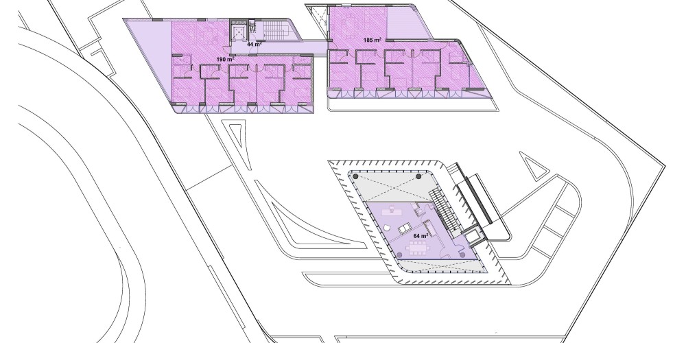
The project consists of office space, residential units and a storage/warehouse.
The whole project is surrounded by beautiful landscapes and green areas.
Some other features:
...
Mixed use development in the premier Monte Caputo area, featuring easy highway access, close proximity to the seafront and adjacent to 5-star hotels.
The project consists of office space, residential units and a storage/warehouse.
The whole project is surrounded by beautiful landscapes and green areas.
Some other features:
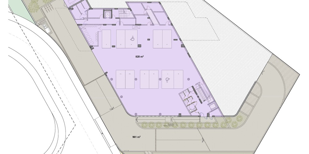
- 200 sq.m. of office space
- 78 sq.m. verandas
- 800 sq.m. residential open plan covered area (this space can be converted for other uses)
- 820 sq.m. professional storage with high ceiling (8 meters).
The Project has EPC certificate with "B" Energy Efficiency Rating.
Area & Prices
MUB
- Commercial building
Area:
1898 m2
€ 9,000,000 + VAT
Inside Area:
1820 m2
Covered Veranda:
78 m2
Price per sq.m:
€ 4,742
Additional Information
×
Map Location
Site Map & Floor Plans
Weather
18
November
2025







