S550 - Commercial building offering premium business environment in Limassol (Kato Polemidia area)
Property status:
Project delivered
Location:
Cyprus, Limassol, Kato Polemidia (a suburb to the northwest of Limassol)
A luxurious commercial building that offers a premium business environment in Parodos Anagnostara, Kato Polemidia.
With its grand architecture and sophisticated design, this center sets the stage for success.
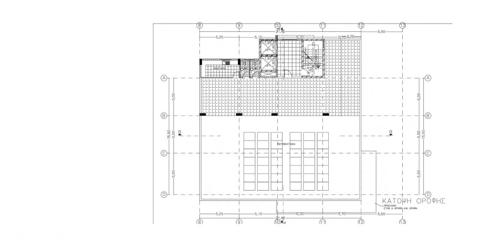
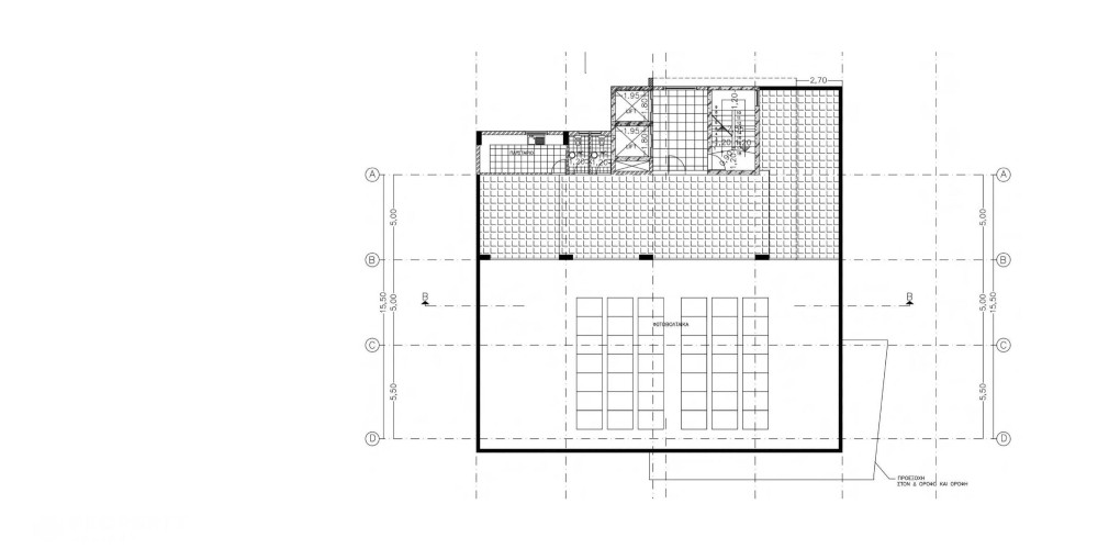
Boasting 95 parking spots, convenience is at your fingertips, ensuring hassle-free visits for you and your clients. Spanning over 25...
A luxurious commercial building that offers a premium business environment in Parodos Anagnostara, Kato Polemidia.
With its grand architecture and sophisticated design, this center sets the stage for success.
Boasting 95 parking spots, convenience is at your fingertips, ensuring hassle-free visits for you and your clients. Spanning over 2500 square meters, the spacious and versatile facilities provide ample room for your business to thrive.
The Project has EPC certificate with "B" Energy Efficiency Rating.
Area & Prices
All units sold or reserved.
Sold & Reserved Properties
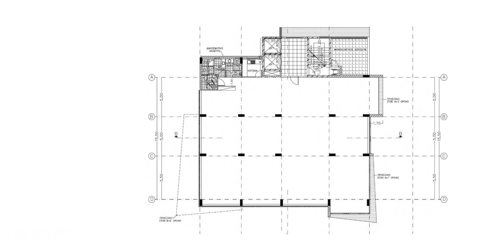
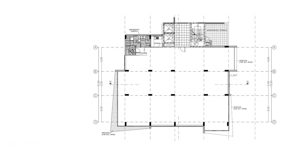
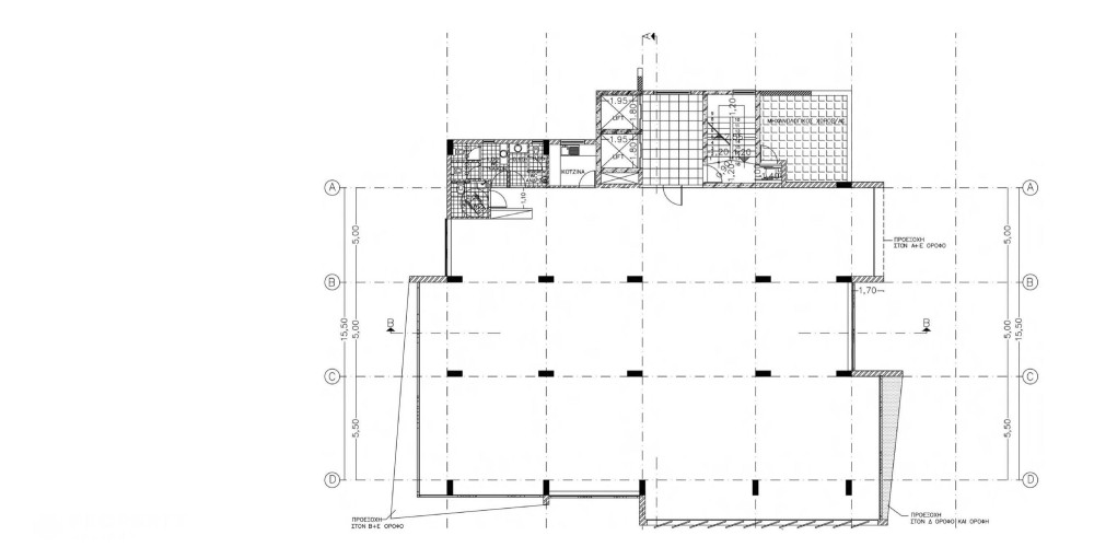
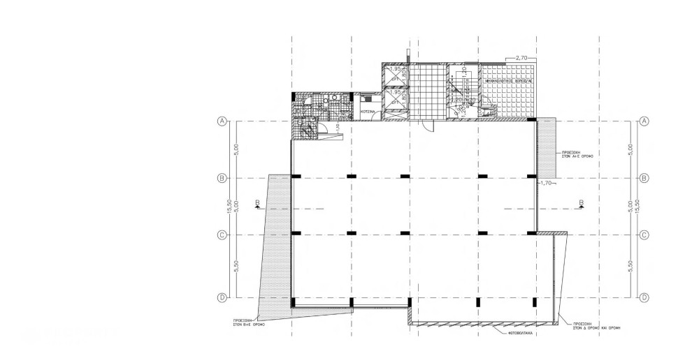
BC
- Commercial building
Beds:
Area:
2450 m2
Sold
1F
- Office
Beds:
Area:
467 m2
Sold
2F
- Office
Beds:
Area:
485 m2
Sold
3F
- Office
Beds:
Area:
480 m2
Sold
4F
- Office
Beds:
Area:
515 m2
Sold
5F
- Office
Beds:
Area:
488 m2
Sold
Map Location
Site Map & Floor Plans











