T066 - A 5-bedroom villa, located in the famous Venus Rock Golf Resort in Paphos
Property status:
Delivery - 24 months from the start from the construction
Location:
Cyprus, Paphos, Kouklia (within 15 minutes east of Paphos, near the sea)
This modern design 5-bedroom villa is set on a large plot, located in the famous Venus Rock Golf Resort.
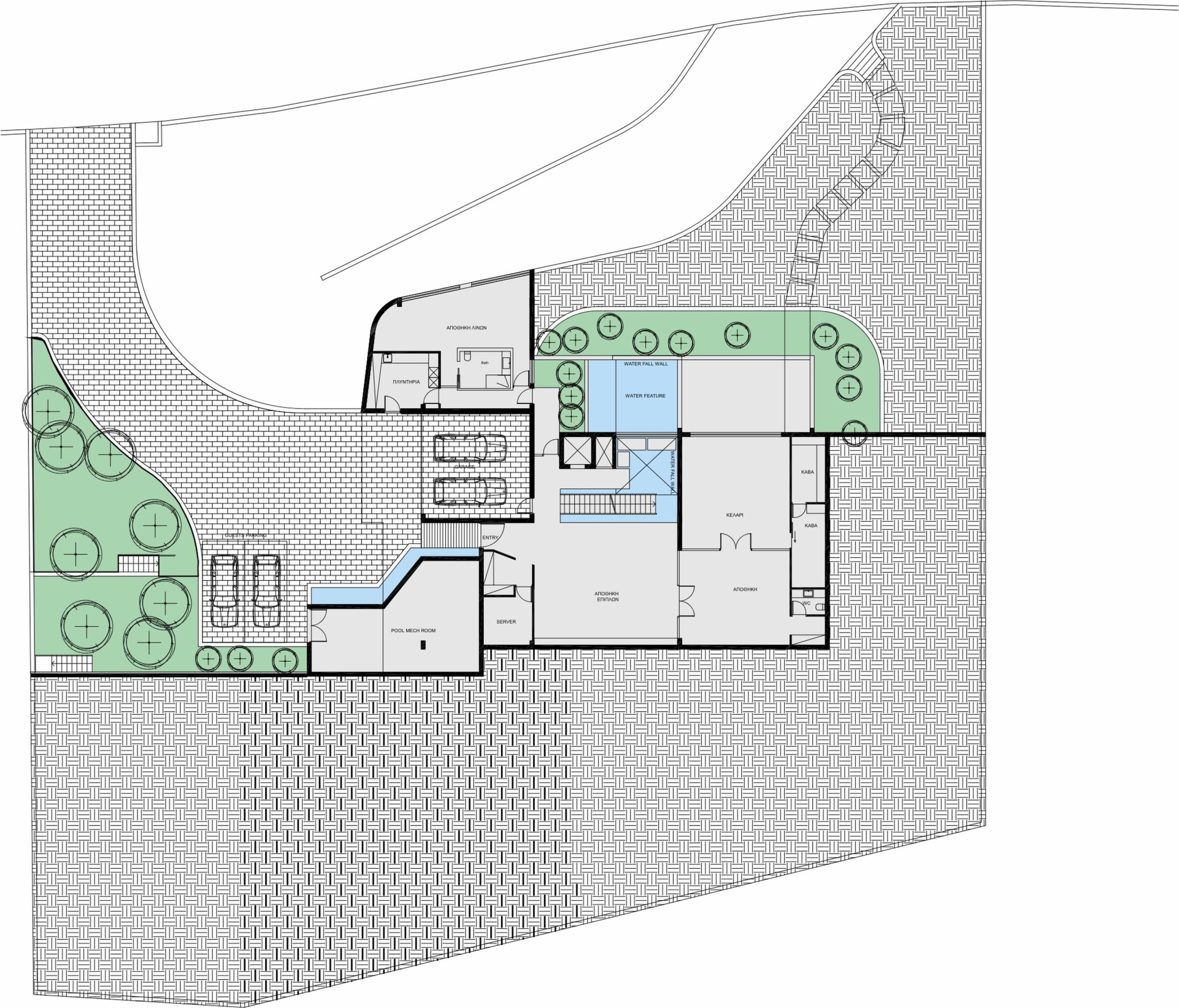
The villa is designed on three levels (basement, ground floor and first floor). The villa enjoys its own private swimming pool surrounded by an outdoor barbecue area, spacious indoor and outdoor areas.
Attention to detail has been given...
This modern design 5-bedroom villa is set on a large plot, located in the famous Venus Rock Golf Resort.
The villa is designed on three levels (basement, ground floor and first floor). The villa enjoys its own private swimming pool surrounded by an outdoor barbecue area, spacious indoor and outdoor areas.
Attention to detail has been given and excellent quality finishes and specifications have been selected. Villa enjoys amazing views of the Mediterranean, the Golf Course and the beautiful surrounding landscapes.
The Project has EPC certificate with "A" Energy Efficiency Rating.
Area & Prices
621-622
- Villa
Beds:
7
Area:
1244 m2
Plot:
2926 m2
€ 3,950,000 + VAT
Inside Area:
882 m2
Covered Veranda:
143 m2
Uncovered Veranda:
219 m2
Price per sq.m:
€ 3,175
Swimming Pool:
private
Additional Information
×
Map Location
Site Map & Floor Plans
















