R60 - Двуспальные квартиры в Лимассоле
Статус недвижимости:
Строительство завершено
Расположение:
Кипр, Лимассол, Columbia (восточный район Лимассола)
Это трехэтажное жилое здание расположено в районе Колумбия. Всего в 5 минутах езды от туристической зоны Лимассола и пляжа.
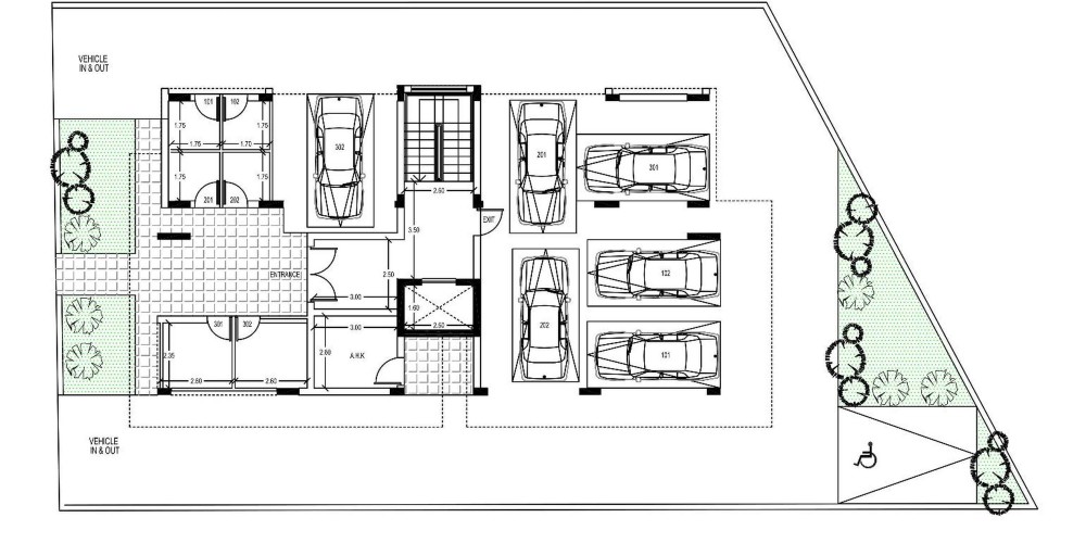
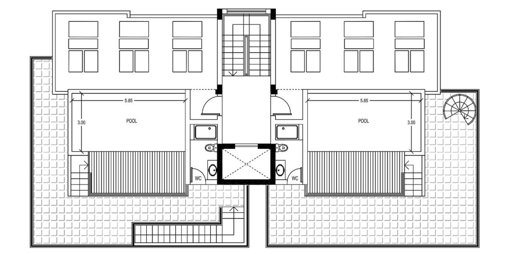
Проект состоит из шести квартир: четырех квартир с 2 спальнями и двух пентхаусов с 2 спальнями, которые имеют частный сад на крыше с бассейном/джакузи.
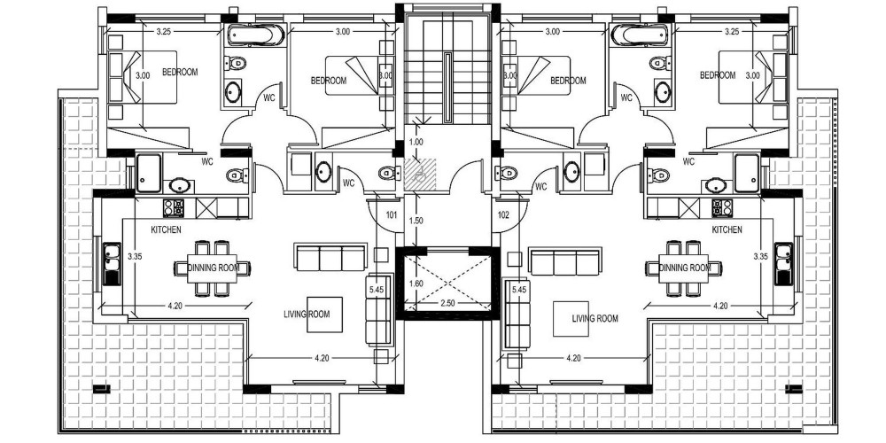
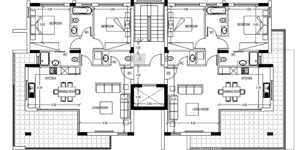
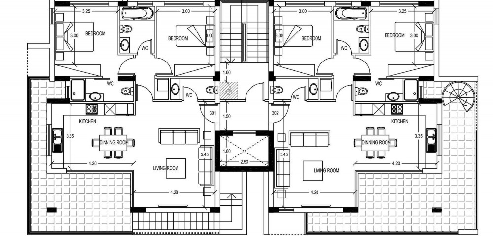
Внутренняя планировка каждой квартиры была тщательно разработана ...
Это трехэтажное жилое здание расположено в районе Колумбия. Всего в 5 минутах езды от туристической зоны Лимассола и пляжа.
Проект состоит из шести квартир: четырех квартир с 2 спальнями и двух пентхаусов с 2 спальнями, которые имеют частный сад на крыше с бассейном/джакузи.
Внутренняя планировка каждой квартиры была тщательно разработана с акцентом на оптимизацию пространства, чтобы сбалансировать просторные внутренние жилые помещения с верандами. Кроме того, каждая квартира имеет собственное парковочное место и кладовую на нижнем этаже.
Проект имеет сертификат энергоэффективности Class "B".
Площади и Цены
Юниты проданы либо зарезервированы.
Продано & Зарезервировано
101
- Апартаменты
Спальни:
2
Площадь:
108 m2
Продано
102
- Апартаменты
Спальни:
2
Площадь:
108 m2
Продано
201
- Апартаменты
Спальни:
2
Площадь:
108 m2
Продано
202
- Апартаменты
Спальни:
2
Площадь:
108 m2
Продано
301
- Пентхаус
Спальни:
2
Площадь:
170 m2
Продано
302
- Пентхаус
Спальни:
2
Площадь:
178 m2
Продано
Расположение на карте
Схемы и планы










