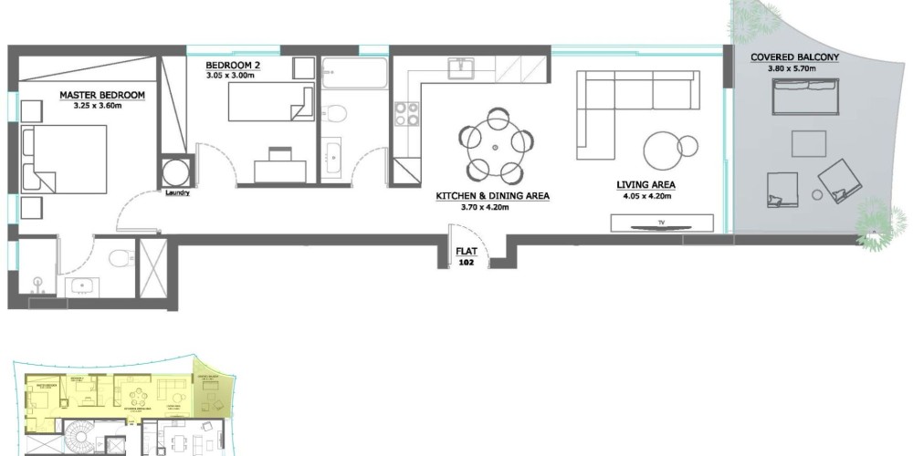
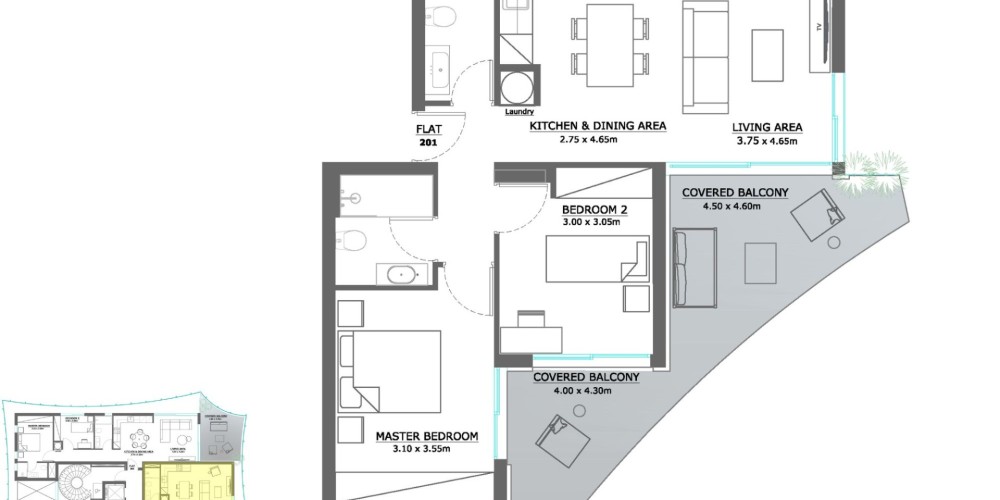
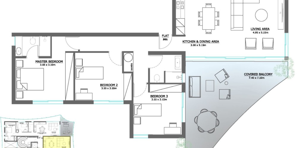
B034 - Современные апартаменты в Энгоми, Никосия
Современный жилой комплекс в Энгоми предлагает двух- и трехкомнатные апартаменты, спроектированные в минималистичном стиле с продуманными функциональными планировками. Архитектура комплекса сочетает современные элементы с японским вдохновением, создавая гармоничное жилое пространство. Удобное расположение обеспечивает легкий доступ к ресторанам, магазинам и культурным достопримечательностям. Просторные интерьеры спроектированы таким образом, чтобы максимально использовать естественное освещение, с высокими потолками и открытыми жилыми зонами.
Каждая квартира оснащена высококачественной отделкой, системой подогрева полов, центральным кондиционированием и электрическими внешними жалюзи. Кухни выполнены по индивидуальному дизайну итальянского бренда Pedini, сочетая стиль и функциональность. Ландшафтные дзен-сады придают комплексу атмосферу спокойствия, создавая уединенное пространство для отдыха в черте города.
Основные характеристики проекта и апартаментов:
- Двух- и трехкомнатные апартаменты
- Современная архитектура с элементами японского дизайна
- Высокие потолки и открытая планировка
- Подогрев полов и центральное кондиционирование
- Электрические внешние жалюзи
- Индивидуально спроектированные итальянские кухни Pedini
- Ландшафтные дзен-сады
- Престижное расположение с доступом к ресторанам, магазинам и культурным объектам
Проект сертифицирован по системе EPC с рейтингом энергоэффективности "A".













