B103 - Апартаменты на холме Пернера, Никосия
Трехэтажный жилой комплекс расположен на холме Пернера, в спокойном районе с широким обзором и удобным доступом к ключевым городским объектам. В здании всего шесть квартир — на каждом этаже по одной трехкомнатной и одной двухкомнатной. Близость к The English School и прилегающему парку обеспечивает одновременно уединение и непосредственную близость к зеленым зонам, что делает проект привлекательным как для семей, так и для профессионалов.
Архитектура выполнена в минималистичном стиле: два симметричных объема из необработанного бетона подчеркивают как функциональность, так и визуальную ясность. Каждое крыло обеспечивает приватность, при этом в проект интегрированы общие и вспомогательные пространства для удобства повседневной жизни. Открытый бетон и тщательно продуманные проемы фасада с металлическими элементами обеспечивают естественное проветривание и освещение, повышая долговечность и энергоэффективность здания.
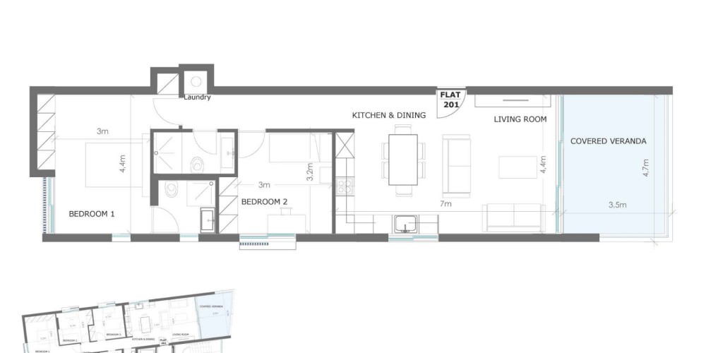
Планировка квартир современная: окна в пол позволяют максимально использовать дневной свет. Пространства спроектированы с учетом практичности и визуального баланса. В отделке используются качественные материалы: современные напольные покрытия, мебель и освещение.
В ванных комнатах установлена сантехника ведущих европейских производителей — это обеспечивает долговечность и визуальную гармонию. Архитектурные решения и материалы регулярно пересматриваются для соответствия современным стандартам.
Жителям предоставляется возможность индивидуального выбора отделки с помощью профессиональных дизайнеров, что позволяет адаптировать квартиру под личный вкус и образ жизни.
Основные характеристики проекта и жилых единиц:
- Расположение на холме Пернера, в тихом жилом районе
- Трехэтажное здание с шестью квартирами
- На каждом этаже одна квартира с тремя спальнями и одна — с двумя
- Пешая доступность до The English School и прилегающего парка
- Архитектура в минималистичном стиле с открытым бетоном и металлическими элементами
- Панорамные окна в пол для естественного освещения
- Качественные отделочные материалы
- Сантехника европейского производства
- Возможность индивидуального выбора отделки с поддержкой дизайнеров
- Удобный доступ к городской инфраструктуре и транспортным маршрутам
Проект имеет сертификат энергетической эффективности класса «A».














