O38 - Современные виллы в районе Строволос, Никосия
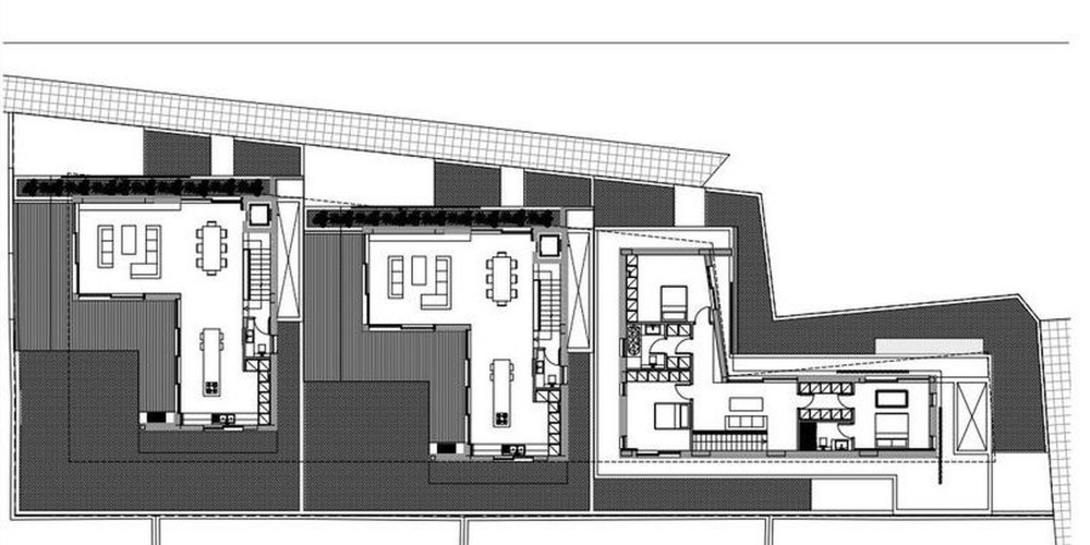
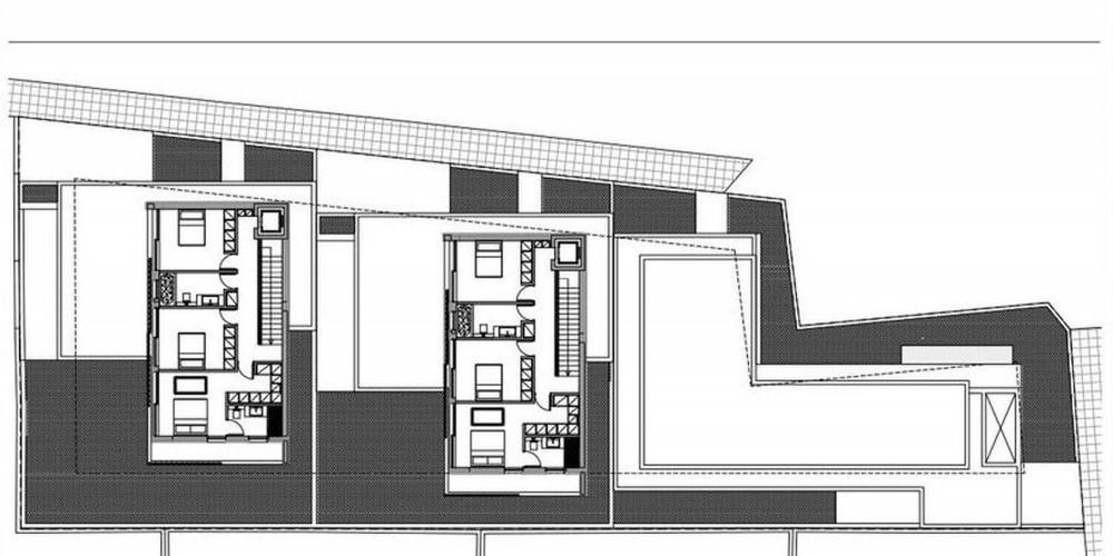
Особенность участка и его окрестности имели ключевое значение для каждого дизайнерского решения, касающегося этих домов. Первые два дома были приспособлены для подвального уровня, который занимал бы важное пространство с более высокого уровня и меньше влиял бы на условия жизни жилых помещений. Это позволило получить максимальную площадь сада. Третий дом устроен с теми же качествами, но без подвала. Принимая во внимание форму последней части участка и будущую возможность иметь пристройку сада, последний дом был также проектирован с бассейном. Проект, выбранный для зданий, идентифицирует гармонию, найденную в простых белых формах с определенными деталями, такими как перфорация, зелень и вертикальные элементы, которые подчеркивают сбалансированные пропорции домов.
Проект имеет сертификат энергоэффективности Class "A".
Юниты проданы либо зарезервированы.















