B125 - Мезонеты с общим бассейном в Агиос Тихонас, Лимассол
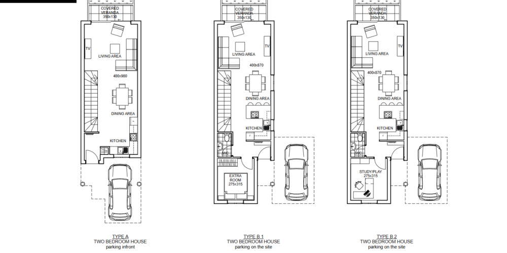
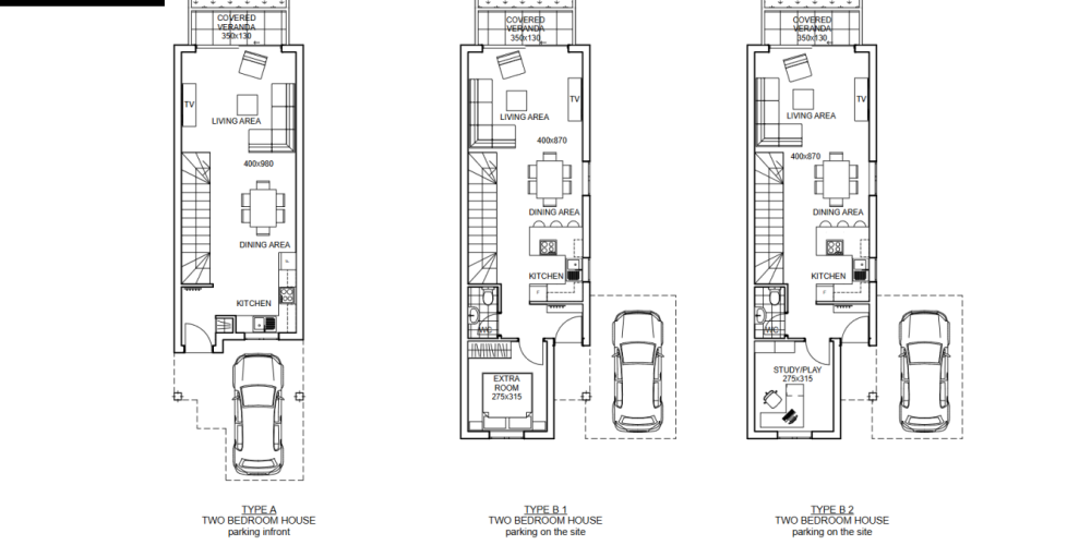
Жилой комплекс расположен в тихом районе Айос Тихонас, Лимассол, и состоит из девяти современных мезонетов. Проект находится всего в нескольких минутах езды от города и предлагает спокойную жилую среду с удобным доступом к основным объектам инфраструктуры и транспортным развязкам. Планировки разработаны с учётом различных сценариев проживания, что делает комплекс подходящим как для постоянного проживания, так и для инвестиционных целей.
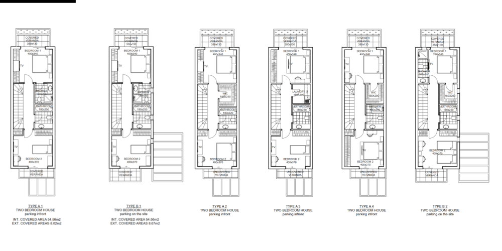
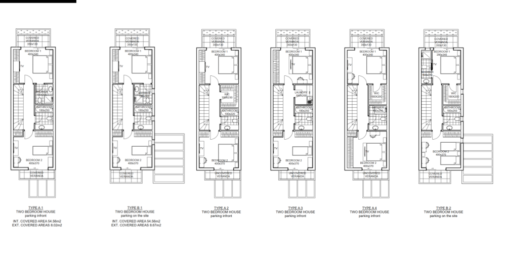
Каждый мезонет включает два основных жилых уровня, а также дополнительное подвальное помещение с подключениями воды и электричества. Это пространство изначально предназначено как вспомогательное, но может быть преобразовано в дополнительную или полностью автономную жилую зону по желанию владельца. Кроме того, на крыше каждого дома предусмотрено помещение для прачечной, которое также может быть переоборудовано, например, в дополнительную спальню.
Жители комплекса имеют доступ к общему бассейну. Все дома спроектированы с практичными внутренними планировками, современными отделочными материалами и индивидуальными открытыми пространствами. Комплекс удобно расположен рядом со школами, супермаркетами, остановками общественного транспорта и недалеко от побережья и центра Лимассола.
Проект реализуется в две стадии строительства. Первая фаза (мезонеты №1–6) планируется к завершению в третьем квартале 2025 года. Вторая (мезонеты №7–9) — к третьему кварталу 2026 года.
Покупателям доступна возможность приобретения жилья в рассрочку. Кроме того, для первичных покупателей жилья может применяться сниженная ставка НДС в размере 5% в соответствии с действующим налоговым законодательством.
Основные характеристики проекта и объектов:
- Расположение: Айос Тихонас, Лимассол
- 9 мезонетов
- Дома с двумя спальнями и дополнительным вспомогательным помещением
- Общий бассейн для всех жителей
- Подвальный уровень с подключениями воды и электричества (пригоден к переоборудованию)
- Прачечная на крыше с возможностью переоборудования (например, в спальню)
- Завершение первой фазы (дома №1–6): 3 квартал 2025 года
- Завершение второй фазы (дома №7–9): 3 квартал 2026 года
- Возможность приобретения в рассрочку
- Сниженный НДС (5%) для первичных покупателей жилья
- Тихий жилой район
- 500 м до ближайшей автобусной остановки
- 500 м до школы
- 700 м до супермаркета
- 3 км до пляжа
- 10 км до центра Лимассола
- Удобный выезд на основные дороги
- Подходит для проживания или инвестиций
- Потенциал арендного дохода и роста стоимости
- Современный дизайн, качественные отделочные материалы и функциональные планировки
Сертификат энергоэффективности класса «A»










