B137 - Апартаменты с быстрым доступом к морю в Гермасогее, Лимассол
Новый жилой проект расположен в тихом районе на восточной окраине Лимассола, в районе Гермасойя, недалеко от Потамоса Гермасойя. Он сочетает в себе современный комфорт, близость к морю и высокое качество строительства. До пляжа можно доехать всего за 5 минут на машине, расстояние до автомагистрали — 1,1 км, а необходимые объекты инфраструктуры, такие как супермаркеты, аптеки и кафе, находятся всего в 400 метрах.
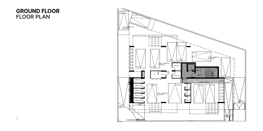
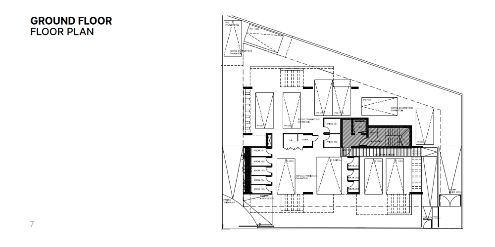
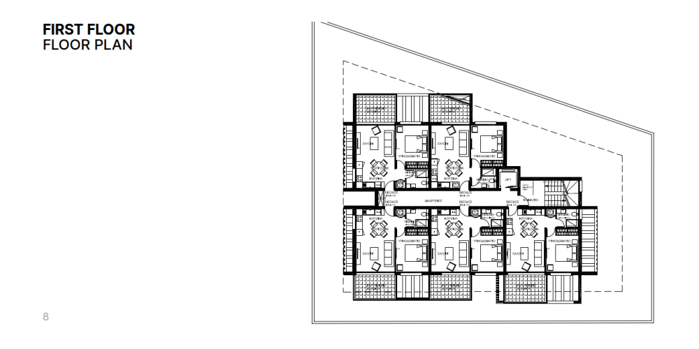
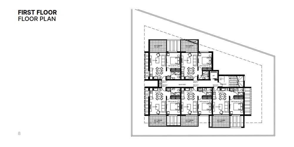
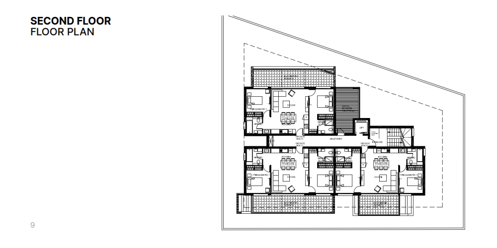
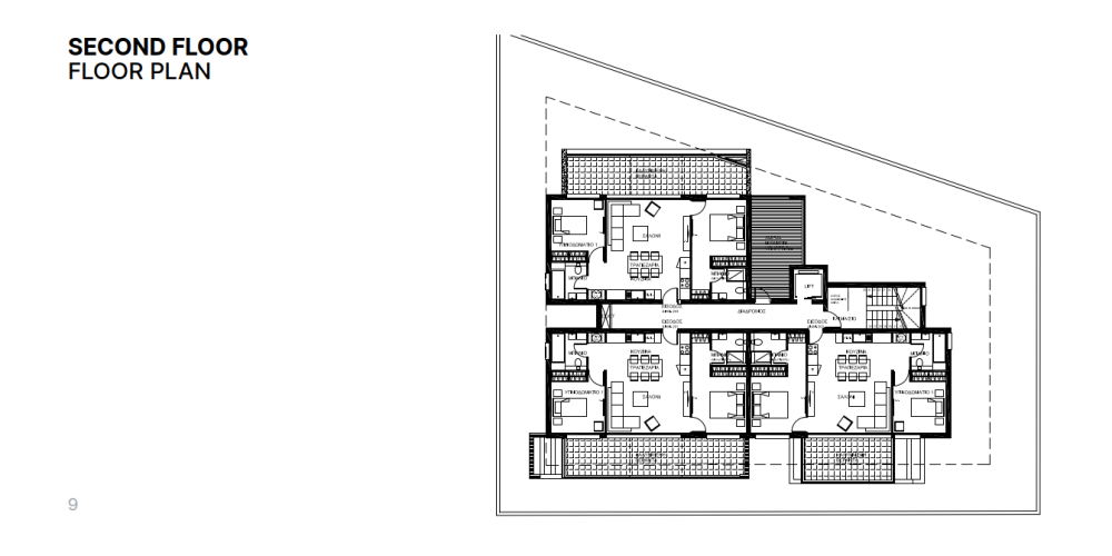
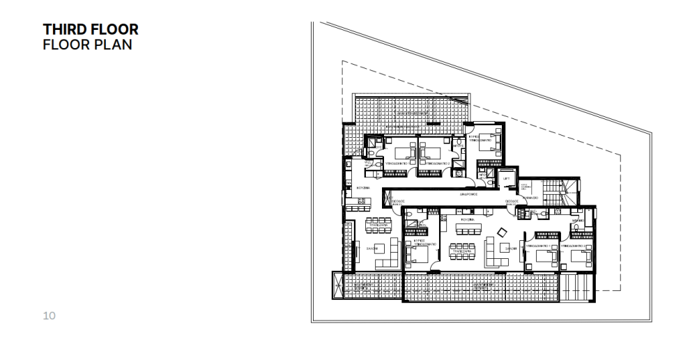
Проект рассчитан на семьи и долгосрочное проживание и включает ограниченное количество объектов — 8 стандартных квартир и 2 пентхауса. Каждая квартира спроектирована с акцентом на удобные планировки, высококачественные отделочные материалы и комфорт.
Здание возводится на железобетонном каркасе с утеплением наружных стен экструдированным пенополистиролом толщиной 8 см, что обеспечивает соответствие классу энергосбережения A. Для окон используются алюминиевые энергосберегающие профили RABEL с двойным остеклением, а внешние элементы декорируются облицовкой из HPL и ALUCOBOND®.
Во всех квартирах укладываются керамические плитки премиум-класса размером 120×60 см, устанавливается сантехника ROCA и смесители GROHE. Кухонные и ванные шкафы выполнены из меламинового дуба, а столешницы на кухнях и в санузлах облицованы гранитом. Внутреннее и внешнее освещение предоставляется компанией DIMCO, а лестничные пролеты отделаны мрамором.
Ворота для парковки управляются дистанционно через Wi-Fi или персональные устройства, а входная калитка контролируется из каждой квартиры.
Основные характеристики проекта и объектов:
- Расположение: Гермасойя, Лимассол
- 8 квартир (1- и 2-спальные) и 2 пентхауса
- 5 минут на машине до пляжа (Дасуди)
- 400 м до супермаркета, аптеки и кафе
- 1,1 км до автомагистрали
- 9,8 км до курорта City of Dreams Mediterranean
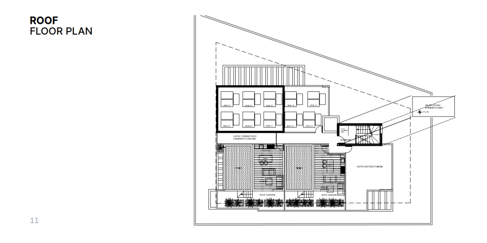
- Бассейн и зона барбекю на крыше
- Частные сады на крыше для пентхаусов
- Крытая парковка и кладовые
- Отделка высокого уровня, система тёплого пола
- Железобетонная конструкция
- Утепление стен экструдированным пенополистиролом (8 см)
- Окна с двойным остеклением RABEL
- Внешняя облицовка HPL и ALUCOBOND®
- Керамическая плитка 120×60 см премиум-класса
- Санфаянс ROCA и смесители GROHE
- Столешницы из гранита на кухнях и ванных комнатах
- Меламиновая отделка кухонь и шкафов
- Освещение от компании DIMCO
- Мраморная отделка лестниц
- Система сигнализации и видеонаблюдения
- Дистанционное управление парковочными воротами и калиткой
- Тихий жилой район, идеально подходит для долгосрочного проживания
The project has an EPC certificate with “A” energy efficiency rating.
























