B157 - Апартаменты с 2 спальнями в трехэтажном здании, Меса Геитония, Лимассол
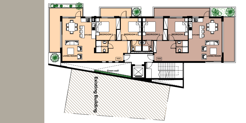
Жилой комплекс представляет собой трехэтажное здание, состоящее из шести апартаментов с двумя спальнями. На каждом этаже расположено по две квартиры, что обеспечивает низкую плотность застройки и спокойную атмосферу для проживания.
На первом этаже предусмотрены крытые парковочные места, частные кладовые, благоустроенная зона отдыха и безопасная детская площадка. Все квартиры имеют потолки высотой 3 метра, современные отделочные материалы и продуманные планировки, соответствующие европейским стандартам. Большие окна открывают панорамные виды на город и горы.
Два пентхауса на третьем этаже имеют просторные частные террасы на крыше с видом на море. По желанию владельцев террасы могут быть дополнены частным бассейном или джакузи. Также для всех жителей доступна общая терраса на крыше.
Проект расположен в районе Меса Гейтония — одном из центральных и развитых районов Лимассола. В шаговой доступности находятся супермаркеты, магазины, рестораны и аптеки. До пляжа и набережной города можно дойти за 15 минут пешком. Поблизости также расположены частная английская школа, торговый центр и развлекательные заведения.
Комплекс построен с использованием высококачественных материалов и современных строительных технологий. Он подходит как для постоянного проживания, так и в качестве инвестиции с перспективой стабильного дохода от аренды в востребованном городском районе.
Основные характеристики проекта и квартир:
- Трехэтажное жилое здание
- 6 квартир с двумя спальнями (по 2 на каждом этаже)
- Первый этаж: крытая парковка и кладовые помещения
- Благоустроенная зона отдыха и безопасная детская площадка
- Потолки высотой 3 метра
- Современные интерьеры, соответствующие европейским стандартам
- Панорамные виды на город и горы
- Пентхаусы с частными террасами на крыше
- Возможность установки частного бассейна или джакузи
- Общая терраса на крыше для всех жильцов
- Расположение в районе Меса Гейтония, Лимассол
- В шаговой доступности от магазинов, ресторанов и пляжа (15 минут пешком)
- Рядом частная английская школа и торговый центр
- Высокое качество строительства и материалов
- Инвестиционный потенциал с возможностью сдачи в аренду
Проект имеет сертификат энергоэффективности класса «A»
Юниты проданы либо зарезервированы.

























