S720 - Новое офисное здание, стратегически расположенное в одном из самых активных районов Лимассола
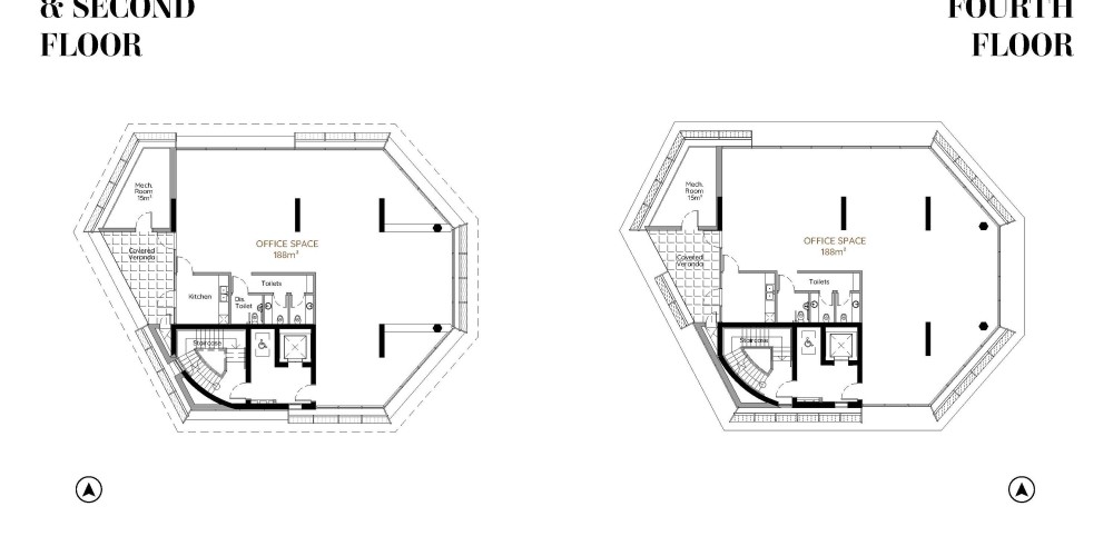
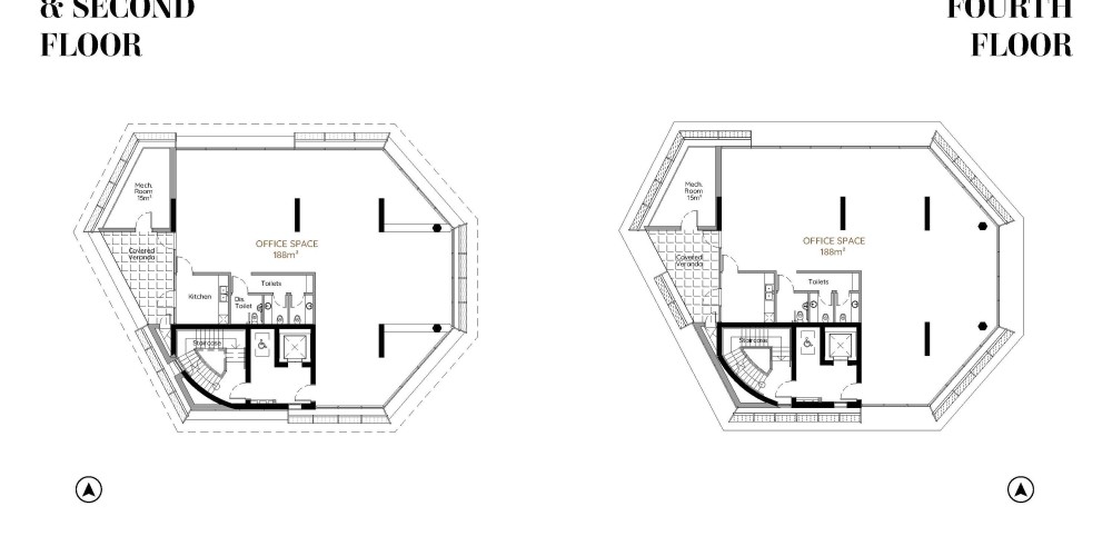
Идеально подходящий для использования в качестве корпоративной штаб-квартиры или инвестиций, проект состоит из четырех этажей адаптируемых и очень универсальных полностью застекленных офисных помещений, а также парковки на подвале и крыши, где можно интегрировать различные удобства.
Спроектированный как концепция полностью функционирующего офисного здания, он содержит все технологии, которые требуются современному бизнесу. С учетом устойчивости и эффективности на переднем крае концептуального дизайна, внутри и снаружи, были интегрированы все возможные энергосберегающие инновации, что обеспечивает низкую стоимость эксплуатации. Вся структура была создана для привлечения высококвалифицированных сотрудников высшего класса, чтобы учитывать комфорт персонала.
Офисы на 4-м этаже открытой планировки, но могут быть разделены в соответствии с индивидуальными корпоративными потребностями. Каждый этаж автономен, с условиями для серверных комнат, «плавающих» полов и подвесных потолков, чтобы гарантировать возможность установки наиболее эффективной технологической инфраструктуры. Туалеты, мини-кухни и открытая веранда удобно расположены рядом с вестибюлем и лестницы. Все этажи, включая крышу и подвал, обслуживаются высокоскоростными лифтами.
Проект имеет сертификат энергоэффективности Class "A".













